Translate with 
MENU ZAVŘÍT

Prodej domu 150 m², Městec Králové (ID 299-NP00269)

ulice Dvořákova, Městec Králové mapa

5 084 000 Kč ( za nemovitost)
GMimořádně
nehospodárná

5+
150 m2
452 m2
2
Exkluzivně

Prodej rodinného domu v Městci Králové, ulice Dvořákova

Nová nabídka. Představujeme vám dvoupodlažní rodinný dům se suterénem a garáží, postavený na počátku 80. let. Nemovitost je v původním stavu bez zásadních úprav, a poskytuje tak ideální příležitost pro úpravu dle vlastních představ – modernizaci exteriéru i interiéru, technologií i energetického standardu.

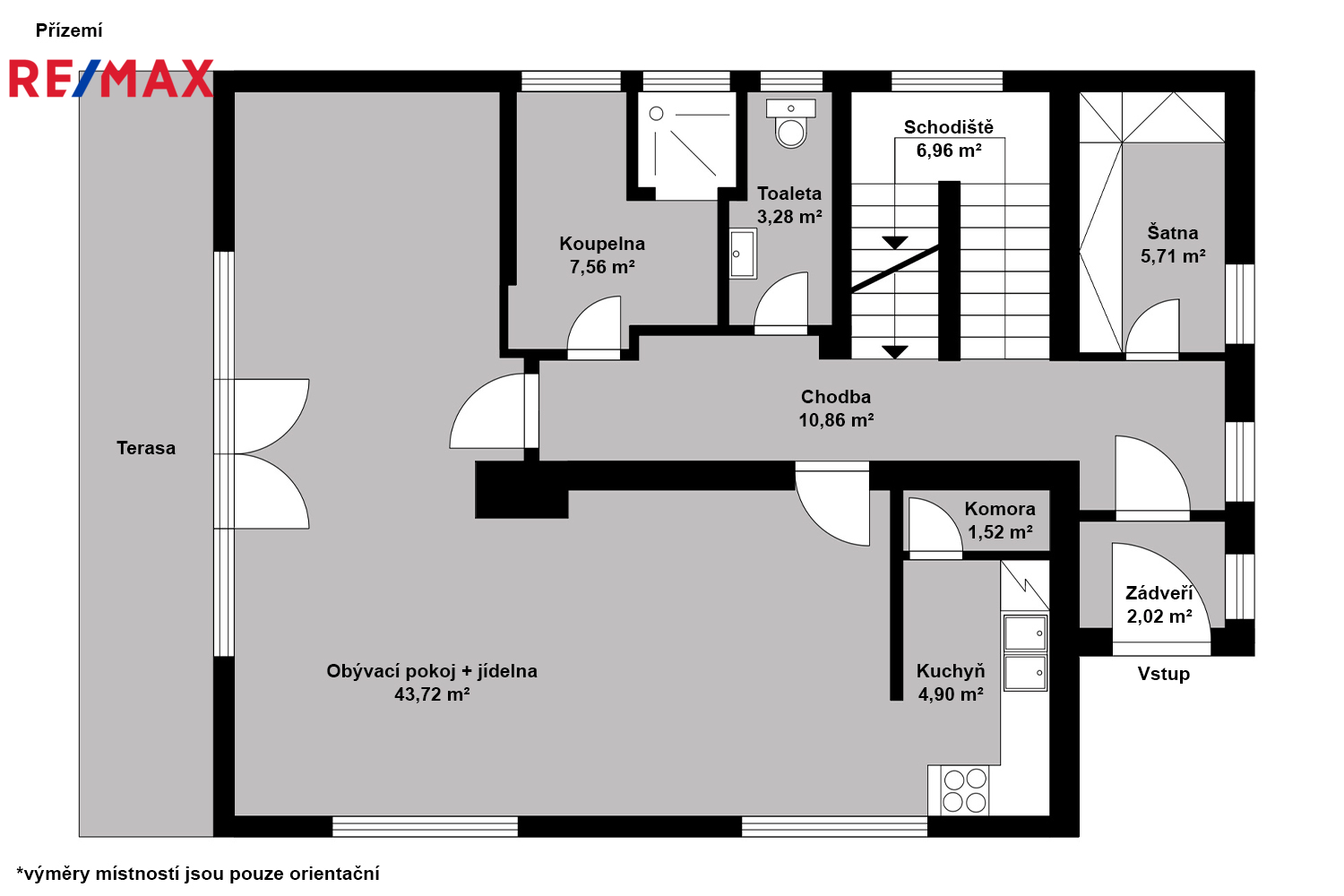
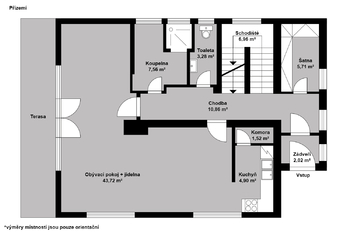
Dům má velmi praktickou vnitřní strukturu a dispozice domu odpovídá dnešním požadavkům. V přízemí se nachází prostorný obývací pokoj (43,72 m²), navazující kuchyň, komora, chodba, koupelna, samostatná toaleta a vstupní zádveří a šatnou. Z obývací části je přímý vstup na terasu orientovanou do západní části pozemku.

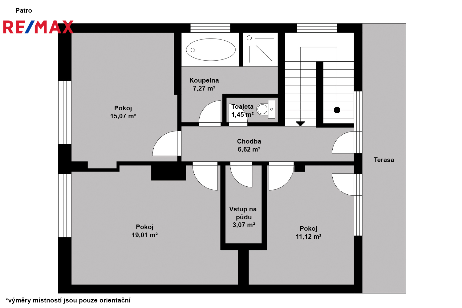
V patře se nachází tři pokoje, koupelna, chodba a samostatný vstup na půdu. Patro je navíc propojeno s další venkovní terasou nad východní částí domu.

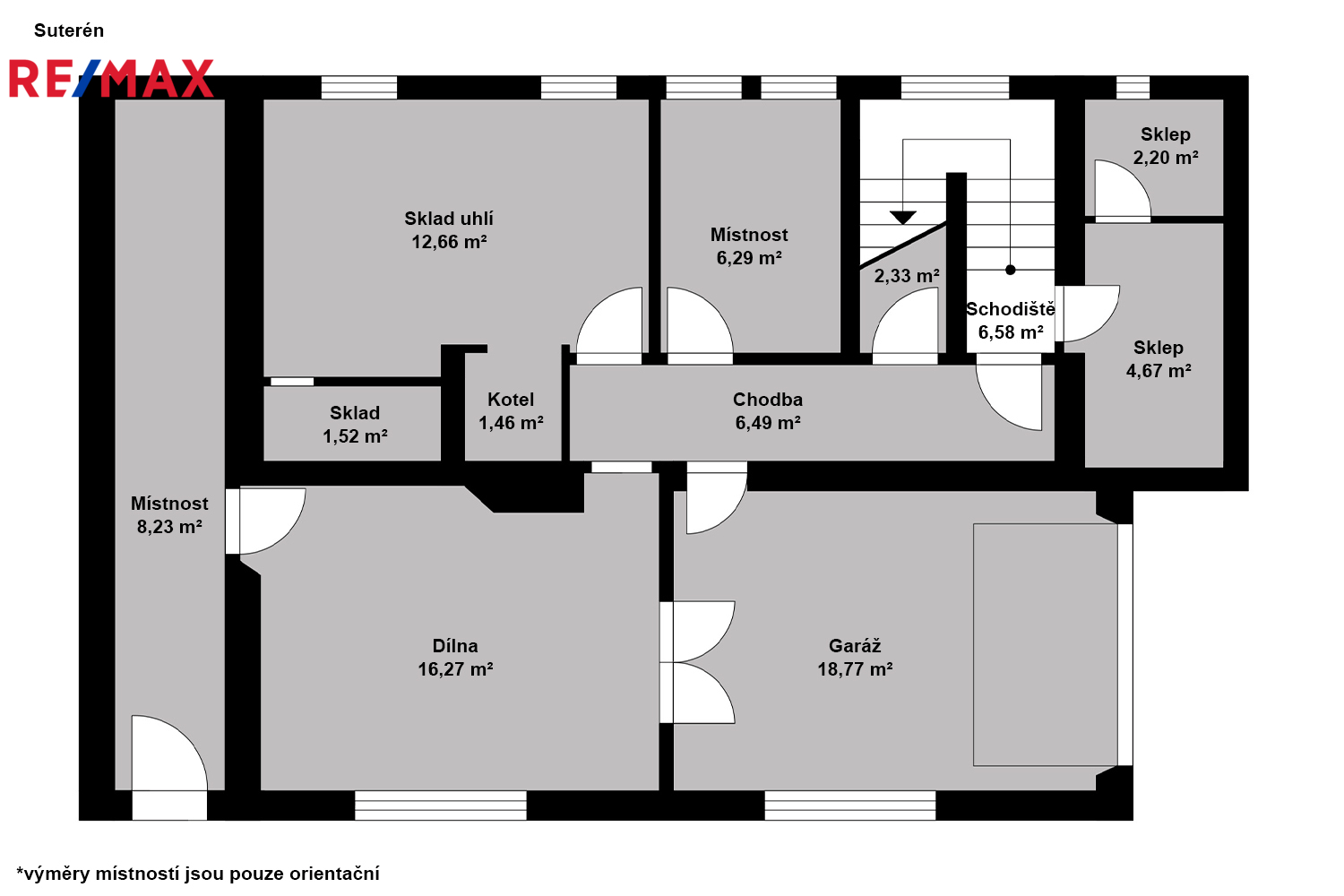
Suterén nabízí velkorysé užitné zázemí: garáž (18,77 m²), dílnu, dvě menší sklepy, sklad uhlí, kotelnu i další místnosti využitelné jako úložné prostory nebo hobby zázemí.

Konstrukčně jde o dům z období robustní tradiční výstavby. Dle projektové dokumentace se má jednat o tyto materiály: základy domu z prostého betonu prokládaného kamenem, obvodové nosné zdivo je z plynosilikátových (porobetonových) tvárnic v kombinaci s cihelnými prvky, suterénní konstrukce z plných pálených cihel, příčky duté cihelné, komínová tělesa z plných ostře pálených cihel.

Střešní krytina je plechová. K vytápění sloužil původní kotel na tuhá paliva a elektrokotel, k ohřevu vody bojler (vše bez ověření funkčnosti).
Celková velikost pozemku i se zastavěnou plochou je 452 m², zastavěná plocha domu činí 128 m², vnitřní plocha nemovitosti včetně celého suterénu činí 231m² (patro 80,89 m2, přízemí 86,53 m2 a suterén dalších 80,89 m²).

Tvar domu a plochy jednotlivých místností naleznete v orientačních půdorysech ve fotogalerii, kde máte také možnost si prohlídnout nemovitost ve virtuální prohlídce.

Dům je napojen na el. energii, odpady jsou svedeny do kanalizace. Na hranici pozemku je přivedena plynová přípojka (plynoměr není osazen), jako zdroj vody slouží vlastní studna. Městský vodovod je veden v ulici před domem. Na pozemku je i původní septik.

Městec Králové je klidné menší město s kompletní občanskou vybaveností, ideální pro rodinné bydlení. Najdete zde základní i mateřskou školu, zdravotní středisko s lůžkovou péčí a poliklinikou, lékárny, poštu a několik menších i větších obchodů včetně supermarketů (např. COOP, Penny, další služby v docházkové vzdálenosti). Město nabízí dobré dopravní spojení směrem na Poděbrady, Nymburk a dálnici D11. Nechybí ani sportoviště, knihovna, menší kulturní zařízení a aktivní komunitní život. Městec tak spojuje výhody poklidného prostředí s dostupností všeho, co rodina k běžnému životu potřebuje.

Nemovitost je bez zatížení a její koupi lze řešit pomocí hypotečního úvěru. V případě, že si vyberete financování přes naši společnost, máme pro vás připraven jak výhodný úrok (od 4,29 %), tak i další benefity. Pro více informací nás neváhejte kontaktovat. Těším se na setkání!
Cena:
5 084 000 CZK / za nemovitost
Poznámka k ceně:
Cena včetně provize a právních služeb
Upozornění:
Prodávající si vyhrazuje právo vybrat kupujícího na základě jím zvolených kritérií.
RX finance

Spočítejte si splátku hypotéky

Na kolik vás vyjde pořízení vlastního bydlení? Zadejte pár informací do naší hypoteční kalkulačky a hned si prohlédněte výsledek.

Kupní cena nemovitosti

5 084 000 Kč

Výše hypotéky

Doba splácení

Vypočítaná měsíční splátka

Úroková sazba 3.6%

260 990 Kč

Hypotéku zařídíme za vás

Ušetřete svůj čas i nervy. Naši makléři zařídí veškeré papírování a dovedou vás až k úspěšnému podpisu smlouvy v bance.

Nechte nám kontakt, náš makléř se v pracovní dny ozve do 24 hodin

* – toto pole je nutné vyplnit
Ivo Hendrych
RE/MAX Happy
Palackého 69
Poděbrady, 29001
Česká republika
Tel. na makléře: +420 608 663 366
Tel. do kanceláře: +420 608 663 366
E-mail: ivo.hendrych@re-max.cz

Potřebujete poradit/máte zájem o prohlídku?

* – toto pole je nutné vyplnit

Podrobné informace

Číslo zakázky:
ID 299-NP00269
Poloha objektu:
Samostatný
Počet podlaží v objektu:
2
Užitná plocha:
150 m²
Plocha parcely:
452 m²
Druh objektu:
Smíšená
Stav objektu:
Před rekonstrukcí
Typ nemovitosti:
Domy a vily
Charakter okolní zástavby:
Obytná
K nastěhování:
1. 1. 2026
Doprava:
Vlak, Dálnice, Silnice, Autobus
Garáž:
Ano
Odpad:
Kanalizace
Plocha zahrady:
324 m²
Zastavěná plocha:
128 m²
Počet podlaží pod zemí:
1
Typ domu:
Patrový
Umístění objektu:
Centrum obce
Voda:
Dálkový rozvod
Energetická náročnost budovy:
G
Měrná vypočtená roční spotřeba energie v kWh/m²/rok:
741