Translate with 
MENU ZAVŘÍT

Prodej domu 145 m², Praha 8 - Kobylisy (ID 020-NP10657)

ulice Březová, Praha 8 – Kobylisy mapa

15 900 000 Kč ( za nemovitost)
GMimořádně
nehospodárná

5+
145 m2
120 m2
3
Exkluzivně

Nabízíme k prodeji řadový rodinný dům o dispozici 5+2 na adrese Březová, Praha 8 – Kobylisy.

Nabízíme k prodeji řadový rodinný dům o dispozici 5+2 na adrese Březová, Praha 8 – Kobylisy.
Dům je vhodný i pro dvougenerační bydlení a nabízí klidné rodinné zázemí v jedné z nejvyhledávanějších lokalit Prahy 8.
Dispozice domu:
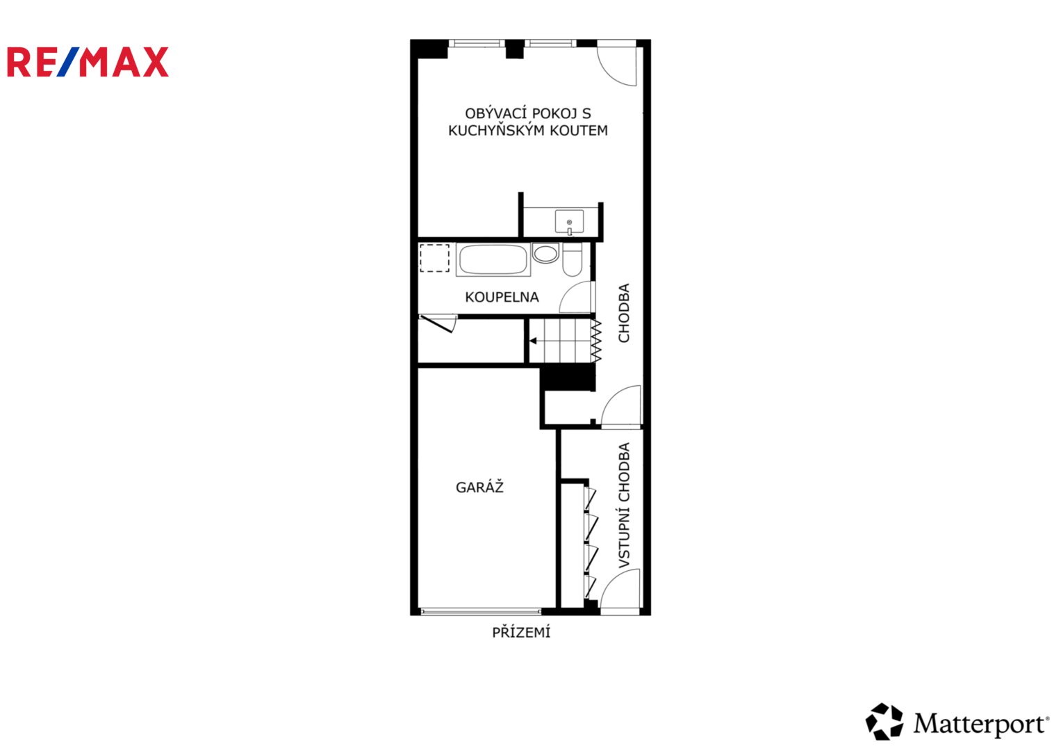
Přízemí:
Garáž (13,1 m²), předsíň (6 m²), chodba (3,6 m²), koupelna s WC (5,2 m²), úložný prostor (3,1 m²) a ateliér s kuchyní (19,1 m²) se vstupem na zadní zahradu o velikosti 32 m²; přední část pozemku má 24 m².
1. patro:
Prostorný obývací pokoj (27,5 m²), samostatná kuchyň (10,5 m²), jídelna (10,1 m²) a schodiště do 2. patra.
2. patro:
Ložnice (15,4 m²), dva pokoje (každý 9,2 m²), chodba (9,7 m²), koupelna s vanou (2,2 m²), samostatné WC (1,4 m²) a půda (54,7 m²).Celková obytná plocha: 145 m² (včetně garáže).
Parkování je zajištěno garáží a druhým parkovacím stáním na pozemku.
Technické informace
Dům je napojen na vodu, kanalizaci, elektřinu i plyn.
Vytápění a ohřev TUV zajišťuje kondenzační plynový kotel.
Konstrukce a výstavba
Rezidenční zástavba v této části Kobylis vznikala kolem roku 1970 - 1980.
V okolních domech se běžně nachází tyto konstrukční prvky:
• nosná konstrukce: železobetonové panely,
• stropy: železobetonové prefabrikované dílce,
• příčky: lehké příčkovky (pórobeton, duté cihly).
Lokalita – Kobylisy, Praha 8
Modřínová ulice nabízí klidné rodinné bydlení s kompletní občanskou vybaveností v docházkové vzdálenosti – obchody, restaurace, školy, školky, služby, zeleň.
Výborná dopravní dostupnost zajišťuje pohodlné spojení po celé Praze.
• Tramvajová zastávka Ďáblický hřbitov – pouhé 3 minuty chůze.
• Autobusová zastávka Ďáblický hřbitov – rovněž 3 minuty, autobus jede na metro C – Ládví cca 5 minut.
• Metro C – Kobylisy v docházkové vzdálenosti.
• Rychlé napojení autem na Libereckou a Městský okruh.
Cena:
15 900 000 CZK / za nemovitost
Poznámka k ceně:
Upozornění:
Prodávající si vyhrazuje právo vybrat kupujícího na základě jím zvolených kritérií.
RX finance

Spočítejte si splátku hypotéky

Na kolik vás vyjde pořízení vlastního bydlení? Zadejte pár informací do naší hypoteční kalkulačky a hned si prohlédněte výsledek.

Kupní cena nemovitosti

15 900 000 Kč

Výše hypotéky

Doba splácení

Vypočítaná měsíční splátka

Úroková sazba 3.6%

260 990 Kč

Hypotéku zařídíme za vás

Ušetřete svůj čas i nervy. Naši makléři zařídí veškeré papírování a dovedou vás až k úspěšnému podpisu smlouvy v bance.

Nechte nám kontakt, náš makléř se v pracovní dny ozve do 24 hodin

* – toto pole je nutné vyplnit
Josef Vencovský
RE/MAX G8 Reality
Rohanské nábřeží 678/27
Praha 8 - Karlín, 18600
Česká republika
Tel. na makléře: +420 777 092 407
Tel. do kanceláře: +420 703 180 388
E-mail: josef.vencovsky@re-max.cz

Potřebujete poradit/máte zájem o prohlídku?

* – toto pole je nutné vyplnit

Podrobné informace

Číslo zakázky:
ID 020-NP10657
Poloha objektu:
Řadový
Počet podlaží v objektu:
3
Užitná plocha:
145 m²
Plocha parcely:
120 m²
Druh objektu:
Smíšená
Stav objektu:
Dobrý
Typ nemovitosti:
Domy a vily
Doprava:
Silnice, MHD
Elektřina:
230 V
Garáž:
Ano
Odpad:
Kanalizace
Plocha zahrady:
56 m²
Zastavěná plocha:
65 m²
Plyn:
Plynovod
Telekomunikace:
Internet
Typ domu:
Patrový
Umístění objektu:
Klidná část obce
Vybaveno:
Ano
Energetická náročnost budovy:
G