Translate with 
MENU ZAVŘÍT

Pronájem domu 147 m², Kostelec nad Labem (ID 352-NP00078)

ulice K Jahodovce, Kostelec nad Labem mapa

45 000 Kč ( za měsíc)
BVelmi
úsporná

4x
147 m2
663 m2
1
Exkluzivně

Pronájem novostavby rodinného domu 4kk s terasou a zahradou, ul. K Jahodovce, Kostelec nad Labem

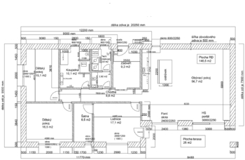
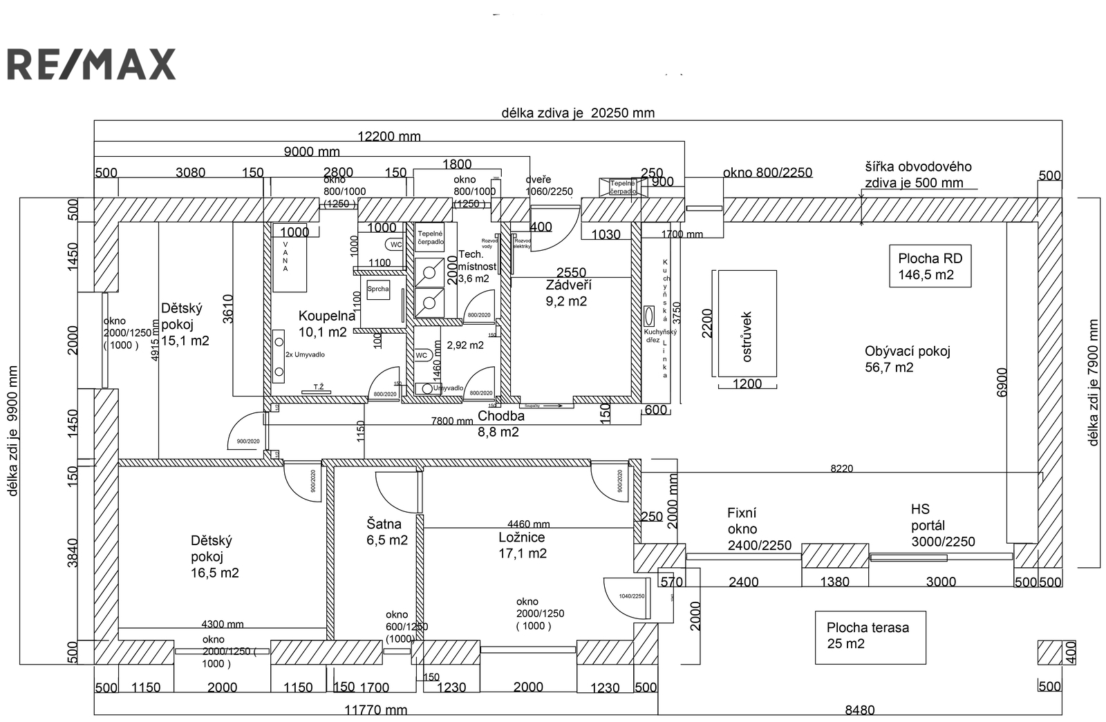
V exkluzivním zastoupení majitele nemovitosti Vám nabízíme dlouhodobý pronájem novostavby samostatného rodinného domu o dispozici 4+kk a užitnou plochou domu 146,5 m2, v obci Kostelec n/L. Součástí pronájmu je RD, půda přístupná s chodby, terasa u domu, zahrada, zahradní domek, zpevněné plochy včetně parkovacího stání, oplocení, branka a vjezdová brána.

Rodinný dům Vám nabízí velmi prostornou vstupní chodbu včetně luxusní vestavěné šatní skříně a botníkem vyrobené na míru, samostatnou toaletu se vstupem do technické místnosti s tepelným čerpadlem, místem na pračku, sušičku a úklidové prostředky. Dále velmi atraktivní koupelnu se sprchovým koutem, vanou, toaletou a dvoj umyvadlem s kosmetickou skříňkou a zrcadlem. Niky v obkladu koupelny tvoří praktický i designový prvek. Tato koupelna je praktická, maximálně prosvětlená a nabízí dostatek místa pro odpočinek i úložné prostory. V domě naleznete tři samostatné neprůchozí ložnice, z toho hlavní ložnice 17 m2 má svou vlastní šatnu 6,5 m2. Dominantou nemovitosti je obývací pokoj s kuchyňským a jídelním koutem. Kuchyně je vybavena moderními vestavěnými spotřebiči zn. Electrolux včetně myčky, indukční varné desky a velkoobjemové lednice s mrazákem. Obývací pokoj s jídelním a kuchyňským koutem tvoří jeden otevřený prostor, kde jednotlivé zóny plynule navazují a celek působí maximálně prostorně, nadčasově a vzdušně. Celý interiér je laděn v moderních tónech, které podporují pocit tepla. Prostor je ideální pro rodinný život i relaxaci, s důrazem na funkčnost, estetiku i propojení s exteriérem. Z obývacího pokoje naleznete vstup na terasu a zahradu. V oknech a balkónových dveří do zahrady jsou instalovány venkovní žaluzie, které zajišťují soukromí. Součástí pronájmu je kompletní osvětlení a sedací souprava. Nemovitost je řešena s důrazem na světlost, prostor a eleganci. Dům je bez předchozího užívání, čeká na prvního nájemce a již probíhají dokončovací práce (zahradní domek zakoupen, branka a brána cca konec ledna, zatravnění pozemku atd). Výplně plotu a podlahové lišty jsou již namontovány.

Měsíční náklady na bydlení:
- nájemné ve výši 45.000,- Kč
- záloha elektřina/ doporučená záloha cca 5 - 6 tis. Kč dle počtu osob a vlastní spotřeby, elektřina se převádí na nájemce u společnosti ČEZ
- záloha vodné a stočné ve výši 300,- Kč/osoba
Internet, TV a rozhlasové poplatky si řeší nájemce individuálně. Nájemce je povinen zřídit si pojištění odpovědnosti. Dům k dispozici ihned.

Rodinný dům je postaven v klidné části města s kompletní občanskou vybaveností a výbornou dostupností do Prahy, autobusové zastávky (bus č. 377 Letňany, 471, 476 Neratovice, 478 Brandýs nL). V docházkové vzdálenosti MŠ, ZŠ, pošta, zdravotní středisko, lékárna, Jídelna na Marjánce s potravinami, TJ Sokol a rozsáhlé dětské hřiště. Dále také Penny Market, ostatní potraviny, obchody, restaurace, cukrárna, galanterie atd. a vysoká nabídka služeb.

Chcete si prohlédnout nemovitost, potřebujete více informací, neváhejte nás kontaktovat.
Cena:
45 000 CZK / za měsíc
Poznámka k ceně:
Kauce je splatná k podpisu Smlouvy o nájmu. Nájemce hradí provizi RK.
Upozornění:
Pronajímající si vyhrazuje právo vybrat nájemce na základě jím zvolených kritérií.
Ing. Mgr. Veronika Černá
RE/MAX Ambassador
Cíglerova/metro Rajská zahrada
Praha 9, 19800
Česká republika
Tel. na makléře: +420 603 841 020
Tel. do kanceláře: +420 777 557 700
E-mail: veronika.cerna@re-max.cz

Potřebujete poradit/máte zájem o prohlídku?

* – toto pole je nutné vyplnit

Podrobné informace

Číslo zakázky:
ID 352-NP00078
Poloha objektu:
Samostatný
Počet podlaží v objektu:
1
Užitná plocha:
147 m²
Plocha parcely:
663 m²
Druh objektu:
Cihlová
Stav objektu:
Novostavba
Typ nemovitosti:
Domy a vily
Charakter okolní zástavby:
Obytná
K nastěhování:
1. 1. 2026
Doprava:
Vlak, Silnice, MHD, Autobus
Odpad:
Kanalizace
Plocha zahrady:
480 m²
Zastavěná plocha:
183 m²
Počet parkovacích míst:
2
Typ domu:
Přízemní
Umístění objektu:
Klidná část obce
Voda:
Zdroj pro celý objekt, Dálkový rozvod
Vybaveno:
Ano
Energetická náročnost budovy:
B