Translate with 
MENU ZAVŘÍT

Pronájem bytu 3+1 v osobním vlastnictví 55 m², Praha 8 - Kobylisy (ID 205-NP12289)

ulice Paláskova, Praha 8 – Kobylisy mapa

22 000 Kč ( za měsíc)
DMéně
úsporná

1x
3x
55 m2
4/13
Exkluzivně

Pronájem 3+1, Paláskova

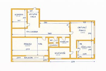
Byt 3+1 o ploše 55,25 m2 + balkon ve 4. patře panelového domu s výtahem v širším centru v klidné části Praha 8 – Kobylisy s veškerou občanskou vybaveností a výbornou dostupností do centra města.

Byt je po kompletní rekonstrukci. Moderní kuchyňská linka s vestavěnými spotřebiči, el. sporák, el. trouba, m. trouba a digestoř. Prostorná koupelna s vanou. Vytápění a ohřev vody je řešeno dálkově. Byt je částečně vybaven a svou dispozicí a velikostí je nejvhodnější pro dva lidi. Místnost označena na plánku jako jídelna se hodí spíše pro tyto účely či jako pracovna, jako místnost na spaní není zcela vhodná, jelikož je menších rozměrů, klasická jednolůžková postel pro dospělého 90 x 200 se tam však vejde.

Metro C – Kobylisy cca 6–8 minut pěšky, přímé spojení do centra, Letňan i na Pražský okruh. Tramvajové a autobusové linky v okolí, rychlé spojení na Ládví, Holešovice či Troju. Výborná občanská vybavenost, obchody, lékárny, pošta, kavárny i restaurace – vše v běžném dosahu.

Poplatky: 6.700 Kč, el. bude převedena na nájemce, kauce 22.000 Kč. Provize RK 22.000 Kč bez DPH.

Osobní vlastnictví. Ukazatel energetické náročnosti: D Pronajímající si vyhrazuje právo vybrat nájemce na základě jím zvolených kritérií.
Cena:
22 000 CZK / za měsíc
Poznámka k ceně:
Upozornění:
Pronajímající si vyhrazuje právo vybrat nájemce na základě jím zvolených kritérií.
David Majer
RE/MAX Alfa
Spálená 97/29
Praha 1 - Nové Město, 11000
Česká republika
Tel. na makléře: +420 730 542 484
Tel. do kanceláře: +420 296 240 400
E-mail: david.majer@re-max.cz

Potřebujete poradit/máte zájem o prohlídku?

* – toto pole je nutné vyplnit

Podrobné informace

Číslo zakázky:
ID 205-NP12289
Dispozice:
3+1
Číslo podlaží:
4
Počet podlaží v objektu:
13
Podlahová plocha:
55 m²
Druh objektu:
Panelová
Stav objektu:
Velmi dobrý
Vlastnictví:
Osobní
Typ nemovitosti:
Byty
K nastěhování:
4. 12. 2025
Odpad:
Kanalizace
Užitná plocha:
55 m²
Plyn:
Plynovod
Umístění objektu:
Sídliště
Voda:
Dálkový rozvod
Vybaveno:
Ano
Výtah:
Ano
Energetická náročnost budovy:
D