Translate with 
MENU ZAVŘÍT

Prodej bytu 3+kk v osobním vlastnictví 64 m², Otnice (ID 277-NP00455)

Otnice, okres Vyškov mapa

5 890 000 Kč ( za nemovitost)
AMimořádně
úsporná

kk
3x
64 m2
1/0
Exkluzivně

Prodej bytu 3kk, 64 m² – přízemí, novostavba, Otnice

Ve výhradním zastoupení majitele vám nabízím bytovou jednotku v novostavbě rezidenčního projektu Byty Otnice. V rámci projektu je k dispozici více bytových jednotek různých dispozic. Kompletní informace o projektu a dalších jednotkách naleznete na www.bytyotnice.cz

Základní popis bytu
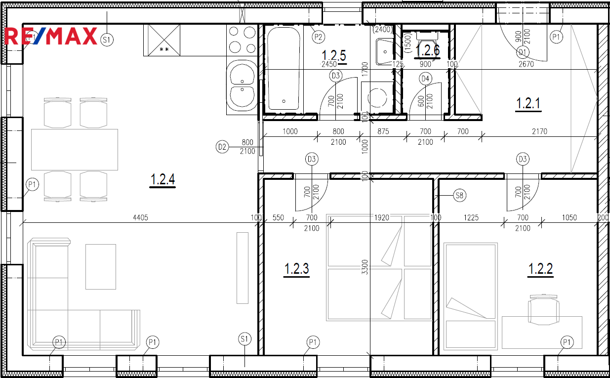
Nabízený byt o dispozici 3kk a výměře 64 m² se nachází v přízemí rodinného domu. Dispozice nabízí obývací pokoj s kuchyňským koutem, dvě samostatné ložnice, koupelnu a samostatné WC, což zajišťuje vysoký komfort bydlení.
Byt je vhodný pro rodinu, pár i zájemce hledající bezbariérové bydlení.

Technické parametry
• novostavba zděného domu z tvárnic Porotherm
• plastová okna v odstínu světlého dřeva s 3D špaletou
• podlahové vytápění
• centrální zdroj tepla a TUV – tepelné čerpadlo (vzduch/voda)
• energetická třída A – velmi úsporná
• napojení na veřejný vodovod, kanalizaci a elektřinu

Zařízení a vybavení
• kompletně dokončená koupelna
• samostatné WC
• laminátové podlahy v obytných místnostech (mimo koupelnu a WC)
• interiérové dveře s obložkami
• kuchyňská linka není součástí – možnost realizace dle vlastních představ

Termín kolaudace 4/2026

Lokalita
Nemovitost se nachází v centru obce Otnice, v klidné zástavbě rodinných domů s dobrou dostupností a základní občanskou vybaveností v dosahu.

Závěr
Pro více informací nebo sjednání osobní prohlídky mě neváhejte kontaktovat. Rád vám představím tento byt i další jednotky v rámci projektu.
Cena:
5 890 000 CZK / za nemovitost
Poznámka k ceně:
včetně provize a právních služeb
Upozornění:
Prodávající si vyhrazuje právo vybrat kupujícího na základě jím zvolených kritérií.
RX finance

Spočítejte si splátku hypotéky

Na kolik vás vyjde pořízení vlastního bydlení? Zadejte pár informací do naší hypoteční kalkulačky a hned si prohlédněte výsledek.

Kupní cena nemovitosti

5 890 000 Kč

Výše hypotéky

Doba splácení

Vypočítaná měsíční splátka

Úroková sazba 3.6%

260 990 Kč

Hypotéku zařídíme za vás

Ušetřete svůj čas i nervy. Naši makléři zařídí veškeré papírování a dovedou vás až k úspěšnému podpisu smlouvy v bance.

Nechte nám kontakt, náš makléř se v pracovní dny ozve do 24 hodin

* – toto pole je nutné vyplnit
Bc. Petr Novotný
RE/MAX Permanentia
Střední 622/34a
Brno, 61200
Česká republika
Tel. na makléře: +420 728 249 964
Tel. do kanceláře: +420 603 260 651
E-mail: petr.novotny@re-max.cz

Potřebujete poradit/máte zájem o prohlídku?

* – toto pole je nutné vyplnit

Podrobné informace

Číslo zakázky:
ID 277-NP00455
Dispozice:
3+kk
Číslo podlaží:
1
Podlahová plocha:
64 m²
Druh objektu:
Cihlová
Stav objektu:
Novostavba
Vlastnictví:
Osobní
Typ nemovitosti:
Byty
Doprava:
Autobus
Elektřina:
400 V
Odpad:
Kanalizace
Užitná plocha:
64 m²
Počet parkovacích míst:
1
Voda:
Dálkový rozvod
Energetická náročnost budovy:
A