Translate with 
MENU ZAVŘÍT

Prodej bytu 3+kk v osobním vlastnictví 94 m², Kolín (ID 059-NP07761)

ulice Na Pršíně, Kolín – část obce Kolín III mapa

7 450 000 Kč ( za nemovitost)
GMimořádně
nehospodárná

kk
3x
94 m2
2/2
Exkluzivně

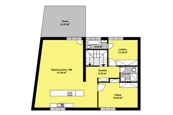
Prodej bytové jednotky 3+kk o výměře 94 m2 + terasa 22 m2 v rodinném domě v centru Kolína.

Prostorný byt 3+kk s terasou, krbem a klimatizací v centru Kolína.

Nabízíme vám jedinečnou příležitost ke koupi prostorné bytové jednotky o velikosti 94 m², která se nachází v prvním patře rodinného domu se dvěma bytovými jednotkami, přímo v centru Kolína – v klidné a vyhledávané ulici Na Pršíně.

Byt působí velmi vzdušně, je stylově řešen jako 3+kk a zaujme nejen svou rozlohou, ale i nadstandardní výbavou. Dominantou obytného prostoru je obývací pokoj propojený s kuchyní, ze kterého se pohodlně dostanete na prostornou terasu orientovanou do vnitrobloku o výměře 22 m2. Součástí obývacího pokoje je také krb, který přináší útulnou atmosféru a možnost přitápění v chladnějších měsících nebo vytvoření romantických večerů.

Byt je vybaven klimatizačními jednotkami pro maximální komfort v létě a zabezpečovacím systémem pro vaše bezpečí. Vytápění i ohřev vody zajišťuje moderní plynový kotel s kombinovanou funkcí. Celý interiér je zpracován z kvalitních materiálů, které podtrhují moderní a přitom domácký charakter tohoto bydlení.

Díky své poloze v samotném centru Kolína je veškerá občanská vybavenost i dopravní dostupnost v docházkové vzdálenosti – vlakové a autobusové nádraží, obchody, restaurace i úřady máte doslova na dosah.

Tato bytová jednotka je ideálním řešením pro ty, kteří hledají kvalitní, pohodlné a zároveň klidné městské bydlení v exkluzivní lokalitě. V případě zájmu mě neváhejte kontaktovat.
Cena:
7 450 000 CZK / za nemovitost
Poznámka k ceně:
cena včetně provize a právního servisu
Upozornění:
Prodávající si vyhrazuje právo vybrat kupujícího na základě jím zvolených kritérií.
RX finance

Spočítejte si splátku hypotéky

Na kolik vás vyjde pořízení vlastního bydlení? Zadejte pár informací do naší hypoteční kalkulačky a hned si prohlédněte výsledek.

Kupní cena nemovitosti

7 450 000 Kč

Výše hypotéky

Doba splácení

Vypočítaná měsíční splátka

Úroková sazba 3.6%

260 990 Kč

Hypotéku zařídíme za vás

Ušetřete svůj čas i nervy. Naši makléři zařídí veškeré papírování a dovedou vás až k úspěšnému podpisu smlouvy v bance.

Nechte nám kontakt, náš makléř se v pracovní dny ozve do 24 hodin

* – toto pole je nutné vyplnit
Marcela Kvízová
RE/MAX G8 Reality 4
Václavská 864
Kolín, 28002
Česká republika
Tel. na makléře: +420 603 392 336
Tel. do kanceláře: +420 603 392 333
E-mail: marcela.kvizova@re-max.cz

Potřebujete poradit/máte zájem o prohlídku?

* – toto pole je nutné vyplnit

Podrobné informace

Číslo zakázky:
ID 059-NP07761
Dispozice:
3+kk
Číslo podlaží:
2
Počet podlaží v objektu:
2
Podlahová plocha:
94 m²
Druh objektu:
Cihlová
Stav objektu:
Velmi dobrý
Vlastnictví:
Osobní
Typ nemovitosti:
Byty
Charakter okolní zástavby:
Obytná
Doprava:
Vlak, Dálnice, Silnice, MHD, Autobus
Elektřina:
230 V
Odpad:
Kanalizace
Užitná plocha:
94 m²
Zastavěná plocha:
137 m²
Plyn:
Plynovod
Telekomunikace:
Internet
Umístění objektu:
Centrum obce
Voda:
Zdroj pro celý objekt, Dálkový rozvod
Vybaveno:
Ano
Energetická náročnost budovy:
G