Translate with 
MENU ZAVŘÍT

Prodej bytu 1+kk v osobním vlastnictví 28 m², Praha 3 - Žižkov (ID 218-NP06912)

ulice Hartigova, Praha 3 – Žižkov mapa

4 700 000 Kč ( za nemovitost)
GMimořádně
nehospodárná

kk
1x
28 m2
3/4
Exkluzivně Rezervace

Prodej bytu 1+kk (garsonka), 28 m² + balkon + sklep, Praha 3 – Žižkov, Hartigova

*** PROHLÍDKY UKONČENY - PROBÍHÁ REZERVACE***
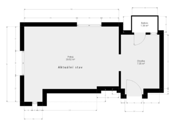
Nabízím ke koupi světlý byt 1+kk po rekonstrukci ve stavu shell & core v ulici Hartigova na pražském Žižkově. Byt o celkové výměře 28 m2 se nachází ve 3. NP domu a disponuje balkonem 1,5 m² a sklepem 6 m² v suterénu. Celková plocha se sklepem a balkonem 35 m2.

Dispozice a výměry:
Celková plocha bytu: 28 m²
Hlavní obytná místnost: 21 m²
Chodba celkem: 7 m²
Balkon: 1,5 m2

Po rozdělení chodby příčkou vznikne:
Koupelna + wc: 3 m²
Chodba: 4 m²
Pokoj: 21 m2

Byt má nové rozvody elektřiny a vody, připravené jádro i napojení pro budoucí kuchyňskou linku.

Aktuálně je potřeba: zvolit podlahu, rozhodnout umístění kuchyňského koutu, dokončit koupelnu a příčku, vymalovat a případně vybavit.
Poté je byt ihned vhodný k bydlení nebo pronájmu.

Ideální využití: pro studenta, jednotlivce, jako investiční byt s vysokým výnosem z pronájmu.

Lokalita – Praha 3, Žižkov:
Vyhledávaná městská čtvrť s výbornou dostupností do centra, kompletní občanskou vybaveností, parky i sportovišti v okolí. Lokalita je dlouhodobě velmi silná na nájemní poptávku.

K dispozici je půdorys aktuálního stavu + 2 varianty půdorysů (návrhy) možného dokončení bytu.
Finální řešení je plně na budoucím majiteli.

S výhodným úvěrem na míru pomohou naši RX hypoteční specialisté.

PENB je ve zpracování, proto uvádíme třídiú "G"
Cena:
4 700 000 CZK / Rezervováno
Poznámka k ceně:
Včetně provize RK a kompletních právních služeb.
Upozornění:
Prodávající si vyhrazuje právo vybrat kupujícího na základě jím zvolených kritérií.
RX finance

Spočítejte si splátku hypotéky

Na kolik vás vyjde pořízení vlastního bydlení? Zadejte pár informací do naší hypoteční kalkulačky a hned si prohlédněte výsledek.

Kupní cena nemovitosti

4 700 000 Kč

Výše hypotéky

Doba splácení

Vypočítaná měsíční splátka

Úroková sazba 3.6%

260 990 Kč

Hypotéku zařídíme za vás

Ušetřete svůj čas i nervy. Naši makléři zařídí veškeré papírování a dovedou vás až k úspěšnému podpisu smlouvy v bance.

Nechte nám kontakt, náš makléř se v pracovní dny ozve do 24 hodin

* – toto pole je nutné vyplnit
Lubomír Polášek
RE/MAX Anděl
Ostrovského 253/3
Praha 5 - Smíchov, 15000
Česká republika
Tel. na makléře: +420 725 293 031
Tel. do kanceláře: +420 725 293 030
E-mail: lubomir.polasek@re-max.cz

Potřebujete poradit/máte zájem o prohlídku?

* – toto pole je nutné vyplnit

Podrobné informace

Číslo zakázky:
ID 218-NP06912
Dispozice:
1+kk
Číslo podlaží:
3
Počet podlaží v objektu:
4
Podlahová plocha:
28 m²
Druh objektu:
Cihlová
Stav objektu:
Po rekonstrukci
Vlastnictví:
Osobní
Typ nemovitosti:
Byty
Charakter okolní zástavby:
Obytná
Doprava:
Vlak, Dálnice, Silnice, MHD, Autobus
Elektřina:
230 V
Odpad:
Kanalizace
Ostatní rozvody:
Kabelová televize
Užitná plocha:
28 m²
Zastavěná plocha:
182 m²
Plyn:
Plynovod
Počet podlaží pod zemí:
1
Telekomunikace:
Internet
Voda:
Dálkový rozvod
Energetická náročnost budovy:
G