Translate with 
MENU ZAVŘÍT

Pronájem bytu 2+1 v osobním vlastnictví 57 m², Brno (ID 077-NP06911)

ulice Ondrouškova, Brno – městská část Brno-Bystrc mapa

17 000 Kč ( za měsíc)
GMimořádně
nehospodárná

1x
2x
57 m2
3/9
Exkluzivně

Pronájem bytu 2+1 s balkonem, Brno – Bystrc, ulice Ondrouškova

Hledáte moderní a kvalitně zařízené bydlení v klidné části Brna? Chcete byt po rekonstrukci, plně vybavený a připravený k okamžitému nastěhování? Vyhovuje vám dům s výtahem a příjemný balkon pro chvíle odpočinku?

Pak právě pro vás mám nabídku bytu 2+1 ve vyhledávané lokalitě Brno – Bystrc, ulice Ondrouškova. Byt se nachází ve 3. nadzemním podlaží revitalizovaného panelového domu s výtahem a jeho součástí je balkon.

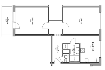
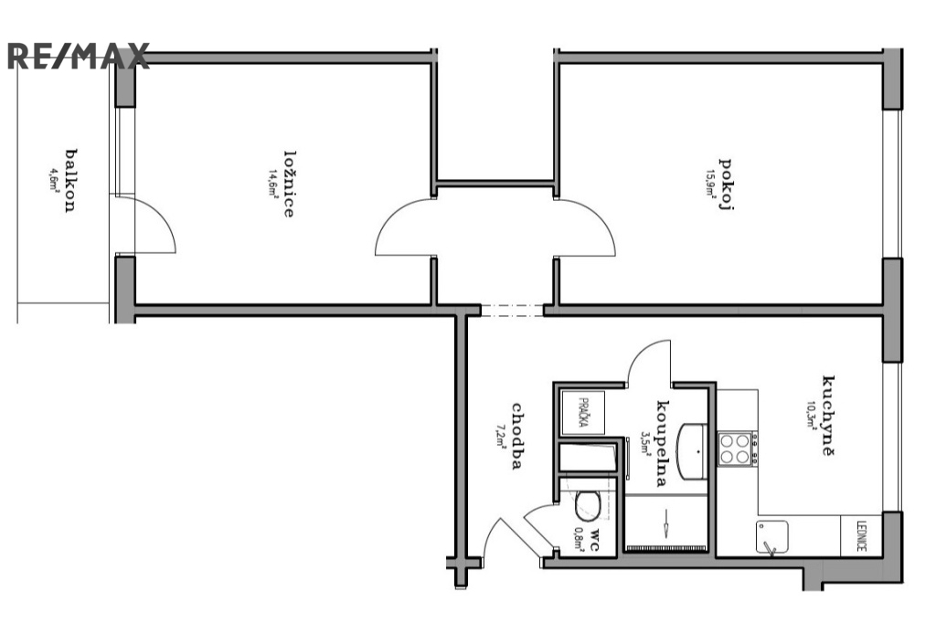
Celková plocha je 56,9 m² (podlahová plocha 52,3 m² + balkon 4,6 m²). Dispozice bytu a velikosti jednotlivých místností jsou jasně patrné z půdorysu.

Byt je po kompletní rekonstrukci a je zařízen moderně, kvalitně a velmi vkusně. Vybavení je součástí pronájmu – viz fotografie. Nabídka je přednostně určena pro jednu osobu, v případě zájmu páru je možné pronájem realizovat za upravených cenových podmínek.

Velkou výhodou je kuchyně navržená s důrazem na praktičnost a každodenní komfort. Kuchyňská linka je vybavena vestavnými spotřebiči: kombinovanou lednicí s mrazákem, indukční varnou deskou, elektrickou troubou, myčkou nádobí, mikrovlnnou troubou a varnou konvicí. Ostatní vybavení bytu (obývací část, ložnice, pracovní kout, koupelna, předsíň i balkon) je k dispozici dle fotodokumentace.

Nájemné: 17.000 Kč / měsíc
Zálohy na služby: 3.500 Kč / měsíc

Byt je vhodný maximálně pro dvě osoby, nekuřáky, bez domácích mazlíčků.
K dispozici od 1.2.2026.

Lokalita Bystrc nabízí kompletní občanskou vybavenost, výborné spojení MHD, rychlou dostupnost do centra města a zároveň blízkost přírody i Brněnské přehrady.

V případě zájmu o více informací nebo domluvení prohlídky mě neváhejte kontaktovat.
Cena:
17 000 CZK / za měsíc
Poznámka k ceně:
Upozornění:
Pronajímající si vyhrazuje právo vybrat nájemce na základě jím zvolených kritérií.
Hana Všetičková, DiS.
RE/MAX Pro
Blatného 3
Brno, 61600
Česká republika
Tel. na makléře: +420 604 278 690
Tel. do kanceláře: +420 732 299 929
E-mail: hana.vsetickova@re-max.cz

Potřebujete poradit/máte zájem o prohlídku?

* – toto pole je nutné vyplnit

Podrobné informace

Číslo zakázky:
ID 077-NP06911
Dispozice:
2+1
Číslo podlaží:
3
Počet podlaží v objektu:
9
Podlahová plocha:
57 m²
Druh objektu:
Panelová
Stav objektu:
Velmi dobrý
Vlastnictví:
Osobní
Typ nemovitosti:
Byty
K nastěhování:
1. 2. 2026
Užitná plocha:
52 m²
Zastavěná plocha:
593 m²
Výtah:
Ano
Energetická náročnost budovy:
G