Translate with 
MENU ZAVŘÍT

Prodej komerčního prostoru 225 m², Břeclav (ID 077-NP06926)

ulice U Nemocnice, Břeclav mapa

Cena na vyžádání v kanceláři
BVelmi
úsporná

225 m2
Exkluzivně

Prodej bezbariérových nebytových prostor vhodných pro ordinace či lékárnu 224,6 m², Břeclav

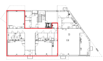
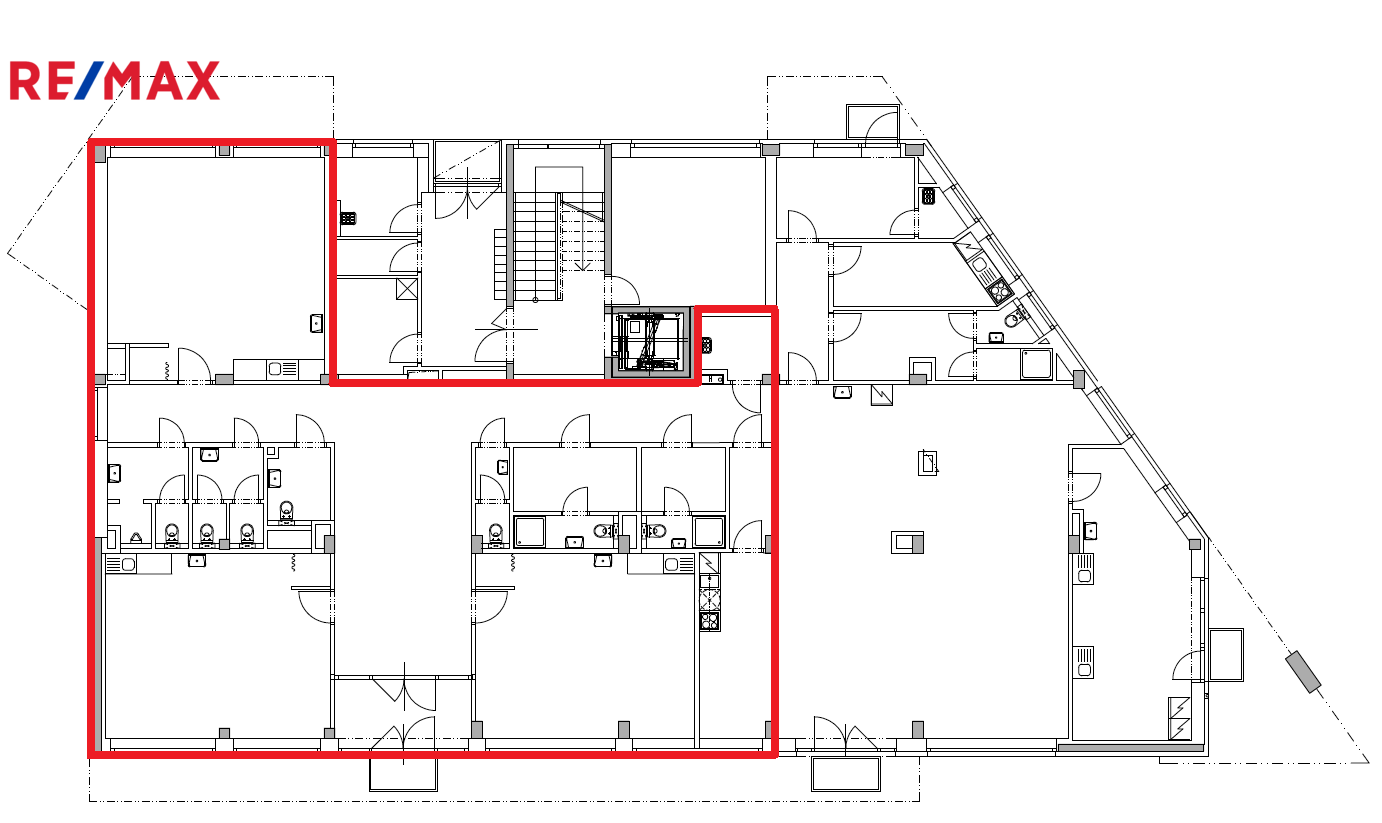
Nabízíme k prodeji nové komerční prostory umístěné v přízemí polyfunkčního domu SLOVAN II. na ulici U Nemocnice v Břeclavi. Jedná se o bezbariérovou nebytovou jednotku o výměře 224,6 m², která je samostatně funkční, zároveň však nabízí možnost rozšíření o sousední jednotku a vytvoření většího celku dle potřeb provozu.

Jednotka má vlastní vstup přímo z ulice, velké prosklené výlohy orientované k hlavní komunikaci a samostatné měření energií. Dispozice je navržena s důrazem na praktičnost, přehlednost a plynulý pohyb klientů i personálu. Prostory jsou zkolaudovány pro využití v oblasti zdravotnictví, zejména pro ordinace a navazující služby, a jsou připraveny k okamžitému provozu. Aktuálně jsou dispozičně řešeny jako tři samostatné ordinace se zázemím, přičemž uspořádání zároveň umožňuje i využití části prostoru například pro lékárnu nebo obdobný provoz.

Součástí projektu je fotovoltaická elektrárna o výkonu 40 kW umístěná na střeše domu, která se pozitivně promítá do provozních nákladů. K jednotce náleží dvě vyhrazená parkovací místa. Budova splňuje nároky na energetickou úspornost, je zařazena do třídy B a nabízí moderní technické zázemí včetně optického připojení k internetu a systému vytápění a chlazení pomocí tepelného čerpadla.

Umístění nemovitosti patří k jejím hlavním přednostem. Prostory se nacházejí přímo u příjezdové komunikace k nemocnici a poliklinice, naproti velkému veřejnému parkovišti pro návštěvníky nemocnice a v bezprostřední blízkosti centra města. Lokalita zajišťuje výbornou viditelnost, snadnou dostupnost a stabilní pohyb lidí po celý den, což je zásadní výhoda pro zdravotnické i jiné komerční provozy.

Prostor je ideální zejména pro ordinace praktických i specializovaných lékařů, kliniky, rehabilitaci, fyzioterapii, stomatologii, laboratoře či lékárnu. Díky variabilnímu dispozičnímu řešení je však možné jednotku přizpůsobit i jinému typu komerčního využití, případně ji v budoucnu rozšířit podle rozvoje podnikání nebo investičního záměru.

Jedná se o atraktivní příležitost jak pro vlastní provoz, tak i pro dlouhodobou investici v lokalitě s trvale vysokou poptávkou po kvalitních komerčních prostorech. Rád vám poskytnu podrobné informace a domluvím osobní prohlídku.
Cena:
Cena na vyžádání v kanceláři
Poznámka k ceně:
včetně provize, právního a poprodejního servisu + DPH
Upozornění:
Prodávající si vyhrazuje právo vybrat kupujícího na základě jím zvolených kritérií.
Ing. Michal Stehlík
RE/MAX Pro
Blatného 3
Brno, 61600
Česká republika
Tel. na makléře: +420 733 679 940
Tel. do kanceláře: +420 732 299 929
E-mail: michal.stehlik@re-max.cz

Potřebujete poradit/máte zájem o prohlídku?

* – toto pole je nutné vyplnit

Podrobné informace

Číslo zakázky:
ID 077-NP06926
Typ nemovitosti:
Komerční prostory
Číslo podlaží:
1
Počet podlaží v objektu:
8
Plocha kanceláří:
225 m²
Druh objektu:
Cihlová
Stav objektu:
Novostavba
Bezbariérový byt:
Ano
Charakter okolní zástavby:
Obytná
Doprava:
Vlak, Dálnice, Silnice, MHD, Autobus
Elektřina:
230 V
Odpad:
Kanalizace
Celková plocha:
225 m²
Počet parkovacích míst:
2
Telekomunikace:
Internet
Typ domu:
Patrový
Umístění objektu:
Centrum obce
Voda:
Dálkový rozvod
Energetická náročnost budovy:
B