Translate with 
MENU ZAVŘÍT

Prodej bytu 3+1 v osobním vlastnictví 69 m², Praha 4 - Nusle (ID 218-NP06863)

ulice K podjezdu, Praha 4 – Nusle mapa

8 750 000 Kč ( za nemovitost)
CÚsporná

1x
3x
69 m2
3/7
Exkluzivně Rezervace

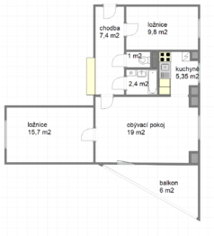
Příjemný byt 3+1s balkonem, sklepem, 60,7 m2 v Nuslích

Nabízíme k prodeji příjemný byt 3+1 o celkové velikosti 69,7 m2 (z toho je 6 m2 balkon a 3 m2 sklepní kóje). Byt má k dispozici balkon orientovaný do zahrádky u domu, nachází se na třetím podlaží cihlového domu s výtahem. Byt je šikovně rozložen, ve vstupní chodbě jsou vestavěné úložné skříně, vstup do ložnice (9,8 m2), koupelny s vanou a WC zvlášť a dveře do obývacího pokoje (19,25 m2). Z obývacího pokoje lze vstoupit na trojúhelníkový balkon (6 m2), do kuchyňky a do další ložnice (15,7 m2). Okna vedou na JV (ložnice), SZ (obývák, kuchyně a ložnice) , balkon je orientován na SV. V pokojích jsou na podlaze původní dřevěné parkety, ostatní plochy jsou kryté dlažbou či linem. V bytě je zaveden plyn (sporák), topení a teplá voda je řešena centrálně, z výměníku vedle domu. K dispozici je sklepní koje v suterénu domu. Pro obyvatele domu je možné využít i společné sušárny, mandl či kočárkárnu.
Dům je nově zateplen, je ve výborném stavu, nachází se v jednosměrné ulici v Nuslích. Pár metrů od domu je stanice autobusů (124, 139, 188, 196, 914), nedaleko má zastávku i tramvaj č. 11, 14, 17, noční spojení 93, 96. Ke stanici metra Pankrác jsou to 3 zastávky busem, stejně vzdálené je nákupní centrum Arkády. V lokalitě poblíž lze najít spoustu malých obchodů, mateřskou školku i polikliniku. Na procházku lze vyrazit do parku Jezerka, na Tyršův vrch či na Kapitol, kde je možné využít dětské hřiště, skatepark či discgolfové hřiště.

V případě více zájemců dostane přednost nejlepší nabídka.
Cena:
8 750 000 CZK / Rezervováno
Poznámka k ceně:
Upozornění:
Prodávající si vyhrazuje právo vybrat kupujícího na základě jím zvolených kritérií.
RX finance

Spočítejte si splátku hypotéky

Na kolik vás vyjde pořízení vlastního bydlení? Zadejte pár informací do naší hypoteční kalkulačky a hned si prohlédněte výsledek.

Kupní cena nemovitosti

8 750 000 Kč

Výše hypotéky

Doba splácení

Vypočítaná měsíční splátka

Úroková sazba 3.6%

260 990 Kč

Hypotéku zařídíme za vás

Ušetřete svůj čas i nervy. Naši makléři zařídí veškeré papírování a dovedou vás až k úspěšnému podpisu smlouvy v bance.

Nechte nám kontakt, náš makléř se v pracovní dny ozve do 24 hodin

* – toto pole je nutné vyplnit
Ing. Lucie Svobodová
RE/MAX Anděl
Ostrovského 253/3
Praha 5 - Smíchov, 15000
Česká republika
Tel. na makléře: +420 605 721 944
Tel. do kanceláře: +420 725 293 030
E-mail: lucie.svobodova@re-max.cz

Potřebujete poradit/máte zájem o prohlídku?

* – toto pole je nutné vyplnit

Podrobné informace

Číslo zakázky:
ID 218-NP06863
Dispozice:
3+1
Číslo podlaží:
3
Počet podlaží v objektu:
7
Podlahová plocha:
69 m²
Druh objektu:
Cihlová
Stav objektu:
Dobrý
Vlastnictví:
Osobní
Typ nemovitosti:
Byty
K nastěhování:
15. 1. 2026
Užitná plocha:
61 m²
Zastavěná plocha:
1 541 m²
Plyn:
Plynovod
Umístění objektu:
Klidná část obce
Energetická náročnost budovy:
C