Translate with 
MENU ZAVŘÍT

Prodej domu 83 m², Jevíčko (ID 020-NP10705)

ulice Okružní II, Jevíčko mapa

2 690 000 Kč ( za nemovitost)
GMimořádně
nehospodárná

3x
83 m2
227 m2
2
Exkluzivně

Prodej rodinného domu 3+1 s dvorkem a zahrádkou, Jevíčko

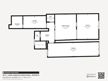
Nabízíme k prodeji řadový rodinný dům s dispozicí 3+1 na ulici Okružní II v Jevíčku.

V přízemí domu se nachází 2 pokoje, kuchyň, spíž, koupelna a samostatné WC. Vchod do domu vede z ulice přes prostorná velká vrata, za kterými se nachází průjezd. V přední části průjezdu je možné parkování menšího vozidla, zadní část nabízí chodbu s úložným prostorem. Z průjezdu jsou pak dveře do domu a výstup na dvorek a zahradu.

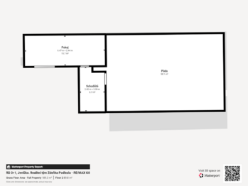
Ve 2. nadzemním podlaží se nachází pokoj a půda, která umožňuje případné vybudování dalších místností podle Vašich potřeb.

Celková užitná plocha k bydlení je 83 m², navíc průjezd 23 m², půda 58 m² a sklepní prostor, který je v současnosti nevyužitý. Ze dvorku je přístup do místnosti, kterou lze využít jako dílna či druhý sklep.

Technické vybavení domu:
Napojení na elektřinu 230 V i 400 V, veřejný vodovod a kanalizaci.
Plyn do domu není zaveden.
Vytápění zajišťuje elektrický kotel s radiátory, ohřev TUV elektrickým bojlerem.
Střešní krytina z roku 2016 na sedlové i šikmé části střechy.
Elektrický kotel z roku 2015, plastová okna z roku 2017.
Elektroinstalace je původní, přívody k elektrickému kotli jsou v mědi.

Jevíčko je menší, historicky významné město s kompletní občanskou vybaveností a příjemnou atmosférou. Nabízí školy, zdravotní péči, obchody, služby, restaurace i kulturní vyžití. Historické centrum je městskou památkovou zónou a okolí města potěší milovníky přírody, cyklovýletů a klidného životního stylu.

Součástí nabídky je 3D virtuální prohlídka, která vám umožní projít si celý dům z pohodlí domova. Fotografie jsou doplněny o vizualizace, které napoví, jak může nemovitost vypadat po modernizaci.

Hledáte dům, který není jen nemovitostí, ale příležitostí? Tento dům v Jevíčku vám dává prostor vytvořit si domov přesně podle sebe.

Neváhejte nás kontaktovat pro více informací nebo sjednání osobní prohlídky. Financování zajistíme naším hypotečním partnerem.
Cena:
2 690 000 CZK / za nemovitost
Poznámka k ceně:
včetně provize a právního servisu
Upozornění:
Prodávající si vyhrazuje právo vybrat kupujícího na základě jím zvolených kritérií.
RX finance

Spočítejte si splátku hypotéky

Na kolik vás vyjde pořízení vlastního bydlení? Zadejte pár informací do naší hypoteční kalkulačky a hned si prohlédněte výsledek.

Kupní cena nemovitosti

2 690 000 Kč

Výše hypotéky

Doba splácení

Vypočítaná měsíční splátka

Úroková sazba 3.6%

260 990 Kč

Hypotéku zařídíme za vás

Ušetřete svůj čas i nervy. Naši makléři zařídí veškeré papírování a dovedou vás až k úspěšnému podpisu smlouvy v bance.

Nechte nám kontakt, náš makléř se v pracovní dny ozve do 24 hodin

* – toto pole je nutné vyplnit
Zdeněk Podlezl
RE/MAX G8 Reality
Rohanské nábřeží 678/27
Praha 8 - Karlín, 18600
Česká republika
Tel. na makléře: +420 608 134 358
Tel. do kanceláře: +420 703 180 388
E-mail: zdenek.podlezl@re-max.cz

Potřebujete poradit/máte zájem o prohlídku?

* – toto pole je nutné vyplnit

Podrobné informace

Číslo zakázky:
ID 020-NP10705
Poloha objektu:
Řadový
Počet podlaží v objektu:
2
Užitná plocha:
83 m²
Plocha parcely:
227 m²
Druh objektu:
Cihlová
Stav objektu:
Dobrý
Typ nemovitosti:
Domy a vily
Charakter okolní zástavby:
Obytná
Elektřina:
230 V, 400 V
Odpad:
Kanalizace
Zastavěná plocha:
115 m²
Plyn:
Plynovod
Počet podlaží pod zemí:
1
Typ domu:
Přízemní
Umístění objektu:
Centrum obce
Voda:
Dálkový rozvod
Energetická náročnost budovy:
G