Translate with 
MENU ZAVŘÍT

Prodej domu 108 m², Jevišovka (ID 077-NP06951)

Jevišovka, okres Břeclav mapa

7 700 000 Kč ( za nemovitost)
GMimořádně
nehospodárná

5+
108 m2
312 m2
1
Exkluzivně

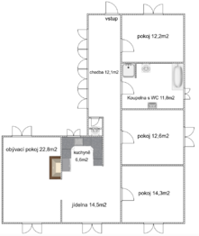
Rodinný dům po kompletní rekonstrukci v obci Jevišovka 108m2

Nabízíme k prodeji prostorný rodinný dům o dispozici 5+kk v klidné obci Jevišovka, který zaujme nejen vizuálně, ale také kvalitním technickým stavem a nadstandardním zázemím.
Součástí nabídky je také rozsáhlý venkovní prostor s celkovou využitelnou plochou až 1 183 m², který poskytuje dostatek soukromí, prostoru pro zahradu, relaxaci i hospodářské využití.Z toho 579 m² tvoří pozemky ve vlastnictví majitelů (dům-312 m² a zahrada-267 m²) a další navazující pozemky jsou dlouhodobě užívány na základě nájemních smluv, což výrazně rozšiřuje reálně využitelný prostor kolem domu.
Nemovitost prošla kompletní rekonstrukcí, v jejímž rámci byla provedena také kompletní hydroizolační sanace zdiva. Dům má masivní zdivo o tloušťce 60 cm a je zateplen 15cm vrstvou polystyrenu po celém obvodu, což zajišťuje výborné tepelněizolační vlastnosti a nízké provozní náklady.
Vytápění domu je řešeno plynovým kotlem, alternativně lze využít krb, který poskytuje nejen tepelný komfort, ale i příjemnou atmosféru. Na pozemku se nachází vlastní studna s rozvodem pro hospodářské účely, ideální pro zalévání zahrady či další využití.

Hlavní přednosti nemovitosti:

dispozice 5+kk
užitná plocha 108 m²
zahrada 267 m²
reálně využívaná plocha až 1 183 m²
kompletní rekonstrukce
hydroizolační sanace zdiva
masivní zdivo + zateplení
plynový kotel + krb
vlastní studna
klidná lokalita obce Jevišovka

Tato nemovitost je ideální volbou pro klienty hledající kvalitní, prostorné a technicky dobře řešené bydlení bez nutnosti dalších investic, s výhodou velkého pozemku a venkovského klidu.
Cena:
7 700 000 CZK / za nemovitost
Poznámka k ceně:
včetně provize RK a právního servisu
Upozornění:
Prodávající si vyhrazuje právo vybrat kupujícího na základě jím zvolených kritérií.
RX finance

Spočítejte si splátku hypotéky

Na kolik vás vyjde pořízení vlastního bydlení? Zadejte pár informací do naší hypoteční kalkulačky a hned si prohlédněte výsledek.

Kupní cena nemovitosti

7 700 000 Kč

Výše hypotéky

Doba splácení

Vypočítaná měsíční splátka

Úroková sazba 3.6%

260 990 Kč

Hypotéku zařídíme za vás

Ušetřete svůj čas i nervy. Naši makléři zařídí veškeré papírování a dovedou vás až k úspěšnému podpisu smlouvy v bance.

Nechte nám kontakt, náš makléř se v pracovní dny ozve do 24 hodin

* – toto pole je nutné vyplnit
Miroslav Fobl
RE/MAX Pro
Blatného 3
Brno, 61600
Česká republika
Tel. na makléře: +420 774 062 324
Tel. do kanceláře: +420 732 299 929
E-mail: miroslav.fobl@re-max.cz

Potřebujete poradit/máte zájem o prohlídku?

* – toto pole je nutné vyplnit

Podrobné informace

Číslo zakázky:
ID 077-NP06951
Poloha objektu:
Řadový
Počet podlaží v objektu:
1
Užitná plocha:
108 m²
Plocha parcely:
312 m²
Druh objektu:
Cihlová
Stav objektu:
Velmi dobrý
Typ nemovitosti:
Domy a vily
Charakter okolní zástavby:
Venkovská
K nastěhování:
31. 1. 2026
Doprava:
Vlak, Silnice, Autobus
Elektřina:
230 V, 400 V
Odpad:
Kanalizace
Plocha zahrady:
267 m²
Zastavěná plocha:
167 m²
Typ domu:
Přízemní
Umístění objektu:
Klidná část obce
Voda:
Dálkový rozvod
Vybaveno:
Ano
Energetická náročnost budovy:
G