Translate with 
MENU ZAVŘÍT

Prodej domu 177 m², Praha 6 - Ruzyně (ID 205-NP12432)

ulice Možného, Praha 6 – Ruzyně mapa

18 900 000 Kč ( za nemovitost)
DMéně
úsporná

5+
177 m2
376 m2
3
Exkluzivně

Rodinný dům Možného Praha 6 Ruzyně

Rodinný dům, který se přizpůsobí Vašemu životnímu stylu.
V klidné rezidenční části Prahy 6 – Ruzyně nabízím prostorný rodinný dům o celkové ploše 294 m², který je ideální nejen pro komfortní rodinné bydlení, ale i pro kombinaci s podnikáním, home office nebo vícegenerační využití.
Právě variabilita dispozice je jedním z hlavních benefitů této nemovitosti – jednotlivá podlaží lze funkčně oddělit a vytvořit tak soukromou i pracovní zónu bez kompromisů.

Co tento dům opravdu nabízí:
- dostatek prostoru pro rodinu i vlastní projekty
- možnost odděleného zázemí (hosté / kancelář / podnikání)
- samostatná garáž pro 2 vozy + další úložné prostory
- kombinace tepelného čerpadla a krbu s výměníkem
- klidná lokalita s rychlou dostupností do centra

Dispozice:
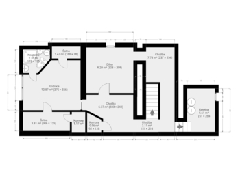
Dům je rozdělen do několika podlaží, což přirozeně umožňuje oddělení jednotlivých funkcí bydlení:
1. PP - technické zázemí, dílna, pokoj pro hosty s vlastní koupelnou a šatnou
1. NP - ložnice, pracovna, koupelna s vanou, samostatná toaleta
2. NP (hlavní obytná část) - prostorný obývací pokoj s kuchyňským koutem, komora, toaleta
3. NP - pokoj, šatna, koupelna, samostatná toaleta
Podkroví - další pokoj nebo pracovna
Celková plocha: 294 m² (245,5 m² dům + 48,5 m² garáž)

Technický stav:
Dům je ve velmi dobrém, udržovaném stavu a připraven k okamžitému užívání:
- plastová okna s izolačním dvojsklem a před okenními žaluziemi
- zateplená fasáda
- vytápění tepelným čerpadlem + krbová vložka s výměníkem
- elektroinstalace v mědi
Zároveň nabízí potenciál modernizace dle vlastního vkusu.

Parkování a zázemí:
- samostatná garáž pro 2 vozy na hranici pozemku poskytuje nejen parkování, ale i praktické úložné prostory pro každodenní život.

Lokalita:
Praha 6 – Ruzyně je dlouhodobě vyhledávanou lokalitou díky kombinaci klidu a výborné dostupnosti:
- rychlé spojení do centra i na městský okruh
- blízkost Letiště Václava Havla
- Obora Hvězda, cyklostezky, retenční nádrž Jiviny
- kompletní občanská vybavenost (OC Šestka, Kaufland, OBI, Hornbach)

Financovaní:
Možnost financování hypotečním úvěrem, s jehož zajištěním Vám rádi pomohou naši finanční specialisté.

Závěr:
Doporučuji osobní prohlídku, při které nejlépe oceníte logiku dispozice, variabilitu a celkový potenciál této nemovitosti.
Prodávající si vyhrazuje právo vybrat kupujícího na základě jím zvolených kritérií.
Cena:
18 900 000 CZK / za nemovitost
Poznámka k ceně:
Vč. provize RK a kompletního právního servisu
RX finance

Spočítejte si splátku hypotéky

Na kolik vás vyjde pořízení vlastního bydlení? Zadejte pár informací do naší hypoteční kalkulačky a hned si prohlédněte výsledek.

Kupní cena nemovitosti

18 900 000 Kč

Výše hypotéky

Doba splácení

Vypočítaná měsíční splátka

Úroková sazba 3.6%

260 990 Kč

Hypotéku zařídíme za vás

Ušetřete svůj čas i nervy. Naši makléři zařídí veškeré papírování a dovedou vás až k úspěšnému podpisu smlouvy v bance.

Nechte nám kontakt, náš makléř se v pracovní dny ozve do 24 hodin

* – toto pole je nutné vyplnit
Vlastimil Raška
REMAX Alfa
Spálená 97/29
Praha 1 - Nové Město, 11000
Česká republika
Tel. na makléře: +420 733 691 145
Tel. do kanceláře: +420 296 240 400
E-mail: vlastimil.raska@re-max.cz

Potřebujete poradit/máte zájem o prohlídku?

* – toto pole je nutné vyplnit

Podrobné informace

Číslo zakázky:
ID 205-NP12432
Poloha objektu:
V bloku
Počet podlaží v objektu:
3
Užitná plocha:
177 m²
Plocha parcely:
376 m²
Druh objektu:
Cihlová
Stav objektu:
Velmi dobrý
Typ nemovitosti:
Domy a vily
Charakter okolní zástavby:
Obytná
K nastěhování:
1. 4. 2026
Doprava:
Silnice, MHD
Elektřina:
230 V, 400 V
Garáž:
Ano
Odpad:
Kanalizace
Plocha zahrady:
127 m²
Zastavěná plocha:
249 m²
Počet podlaží pod zemí:
1
Rok rekonstrukce:
1990
Typ domu:
Patrový
Umístění objektu:
Klidná část obce
Voda:
Dálkový rozvod
Vybaveno:
Ano
Energetická náročnost budovy:
D
Měrná vypočtená roční spotřeba energie v kWh/m²/rok:
126