Translate with 
MENU ZAVŘÍT

Prodej bytu 3+kk v osobním vlastnictví 75 m², Praha 9 - Hloubětín (ID 205-NP12384)

ulice Poděbradská, Praha 9 – Hloubětín mapa

13 295 000 Kč ( za nemovitost)
BVelmi
úsporná

kk
3x
75 m2
5/6
Exkluzivně

Světlé 3+kk v novostavbě s lodžií, sklepem a vlastní garáží, Praha – Hloubětín

Pokud hledáte světlý a chytře řešený byt v novostavbě kousek od centra Prahy, jistě vás zaujme toto jihovýchodně orientované 3+kk v Hloubětíně. K bytu patří prostorná lodžie, sklep i vlastní uzavíratelná garáž – vše je zahrnuto v ceně.

Samotný byt má 75 m² podlahové plochy a nachází se v 5. nadzemním podlaží šestipodlažního domu z roku 2025. Dům vznikl v rámci velmi úspěšného rezidenčního projektu Tesla Hloubětín od renomovaného developera Central Group.

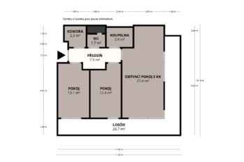
Dispozice: obývací pokoj s kuchyňským koutem (27,4 m²), dva pokoje (13,1 m² a 12,4 m²), koupelna (3,9 m²), samostatné WC (1,7 m²), předsíň (7,5 m²) a komora (3,3 m²). Kuchyňská linka je vybavena vestavěnými spotřebiči, okna mají izolační trojskla. Vytápění řeší podlahové konvektory, přísun čerstvého vzduchu rekuperace. Díky moderním technologiím tak nabízí byt maximální komfort a nízké měsíční náklady.

Lodžie o velikosti 26,7 m² je orientovaná na jih a východ, s výhledem do klidného vnitrobloku. Lodžie je přístupná ze všech tří pokojů. K bytu náleží uzavíratelná garáž a sklep v prvním podzemním podlaží. Dále v domě naleznete společnou kočárkárnu.

Hloubětín je vyhledávanou a rychle se rozvíjející lokalitou s kompletní občanskou vybaveností a rychlou dostupností do centra Prahy. Přímo před domem je tramvajová i autobusová zastávka „Nademlejnská“ – na metro B Hloubětín dojedete zhruba za 3 minuty, na B Českomoravská přibližně za 5 minut. V blízkém okolí najdete též spoustu krásných míst pro relaxaci i aktivní odpočinek.

Pokud vás nabídka zaujala, ozvěte se mi.
Budu se těšit na prohlídce!
Vojtěch Piruchta
Cena:
13 295 000 CZK / za nemovitost
Poznámka k ceně:
Cena je konečná - zahrnuje garáž, sklep a poplatky spojené se službou RE/MAX.
Upozornění:
Prodávající si vyhrazuje právo vybrat kupujícího na základě jím zvolených kritérií.
RX finance

Spočítejte si splátku hypotéky

Na kolik vás vyjde pořízení vlastního bydlení? Zadejte pár informací do naší hypoteční kalkulačky a hned si prohlédněte výsledek.

Kupní cena nemovitosti

13 295 000 Kč

Výše hypotéky

Doba splácení

Vypočítaná měsíční splátka

Úroková sazba 3.6%

260 990 Kč

Hypotéku zařídíme za vás

Ušetřete svůj čas i nervy. Naši makléři zařídí veškeré papírování a dovedou vás až k úspěšnému podpisu smlouvy v bance.

Nechte nám kontakt, náš makléř se v pracovní dny ozve do 24 hodin

* – toto pole je nutné vyplnit
Bc. Vojtěch Piruchta
RE/MAX Alfa
Spálená 97/29
Praha 1 - Nové Město, 11000
Česká republika
Tel. na makléře: +420 604 668 666
Tel. do kanceláře: +420 296 240 400
E-mail: vojtech.piruchta@re-max.cz

Potřebujete poradit/máte zájem o prohlídku?

* – toto pole je nutné vyplnit

Podrobné informace

Číslo zakázky:
ID 205-NP12384
Dispozice:
3+kk
Číslo podlaží:
5
Počet podlaží v objektu:
6
Podlahová plocha:
75 m²
Druh objektu:
Cihlová
Stav objektu:
Novostavba
Vlastnictví:
Osobní
Typ nemovitosti:
Byty
Charakter okolní zástavby:
Obchodní a obytná
Doprava:
Vlak, Dálnice, Silnice, MHD, Autobus
Garáž:
Ano
Odpad:
Kanalizace
Užitná plocha:
75 m²
Umístění objektu:
Centrum obce
Voda:
Dálkový rozvod
Vybaveno:
Ano
Výtah:
Ano
Energetická náročnost budovy:
B