Translate with 
MENU ZAVŘÍT

Pronájem bytu 1+kk v osobním vlastnictví 45 m², Brno (ID 268-NP03428)

ulice Bratislavská, Brno – městská část Brno-sever mapa

15 500 Kč ( za měsíc)
GMimořádně
nehospodárná

kk
1x
45 m2
1/6
Exkluzivně

Pronájem bytu 1,5+kk v Brně

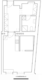
Ve výhradním zastoupení majitele vám nabízíme k dlouhodobému pronájmu moderní novostavbu - byt o velikosti 1 + kk (díky oddělené nice na spaní -nebo pracovně, jde spíše o byt 1,5 +1) nacházející se na ulici Bratislavská , v Brně. Tento prostorný a světlý byt je umístěn v cihlové novostavbě ve zvýšeném přízemí.

Celková plocha bytu činí 45,2 m², což nabízí dostatečný prostor pro pohodlné bydlení. Užitná plocha je srovnatelná, což zajišťuje praktické využití každého centimetru prostoru. Byt je částečně vybaven, což přispívá k jeho atraktivitě pro nové nájemníky.

Prostorná předsíň do písmene T umožňuje uložit veškeré svršky, pokoj s kuchyňským koutem má oddělenou niku, která velikostí odpovídá manželské posteli, a tím umožní spaní mimo obytnou část bytu.

V prostorné koupelně se sprchovým koutem, toaletou a skříňkou je dostatek prostoru pro pračku i uložení čistících prostředků.

Objekt je napojen na veškeré potřebné inženýrské sítě. Přívod vody zajišťuje vodovod, odpad je sveden do kanalizace. Vytápění bytu probíhá prostřednictvím radiátorů, které zajišťují příjemnou atmosféru v chladnějších měsících.

Poloha nemovitosti je výhodná nejen z hlediska dostupnosti, ale také díky okolní infrastruktuře. Místo je dobře dostupné jak autem po asfaltové vozovce, tak i veřejnou dopravou, což usnadňuje každodenní dojíždění a přístup k městským službám. Do středu města je to městskou dopravou jen 5 minut jízdy.

Tento byt v Brně je ideální volbou pro jednotlivce nebo páry, kteří hledají komfortní a praktické bydlení v blízkosti centra města.
Fotky byly pořízeny v době stěhování současných nájemců.

Byt je k nastěhování od 1.3.2026.

Majitel požaduje kauci 16.000,- Kč, RK 15.500,- + DPH.

V případě zájmu o prohlídku neváhejte kontaktovat makléřku nabídky a domluvit si osobní prohlídku, aby jste ocenili všechny přednosti tohoto bytu.
Cena:
15 500 CZK / za měsíc
Poznámka k ceně:
+ zálohy na energie 3.500,-/měsíc
Upozornění:
Pronajímající si vyhrazuje právo vybrat nájemce na základě jím zvolených kritérií.
Bohdana Polgárová
RE/MAX Delux
Křenová 538/22
Brno, 60200
Česká republika
Tel. na makléře: +420 774 231 266
Tel. do kanceláře: +420 602 703 897
E-mail: bohdana.polgarova@re-max.cz

Potřebujete poradit/máte zájem o prohlídku?

* – toto pole je nutné vyplnit

Podrobné informace

Číslo zakázky:
ID 268-NP03428
Dispozice:
1+kk
Číslo podlaží:
1
Počet podlaží v objektu:
6
Podlahová plocha:
45 m²
Druh objektu:
Cihlová
Stav objektu:
Velmi dobrý
Vlastnictví:
Osobní
Typ nemovitosti:
Byty
Charakter okolní zástavby:
Obytná
K nastěhování:
13. 1. 2026
Doprava:
Silnice, MHD
Elektřina:
230 V
Odpad:
Kanalizace
Užitná plocha:
45 m²
Zastavěná plocha:
368 m²
Plyn:
Plynovod
Umístění objektu:
Centrum obce
Voda:
Dálkový rozvod
Vybaveno:
Ano
Energetická náročnost budovy:
G