Translate with 
MENU ZAVŘÍT

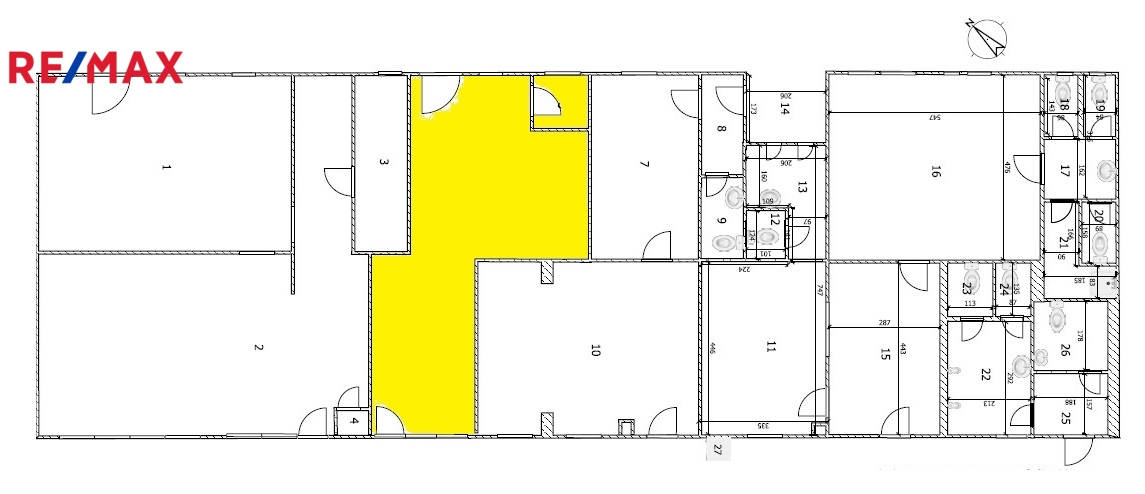
Pronájem obchodních prostor 64 m², Hustopeče (ID 077-NP06942)

Hustopeče – část obce Hustopeče u Brna mapa

12 900 Kč (bez DPH, za měsíc)
GMimořádně
nehospodárná

64 m2
Exkluzivně

Pronájem obchodních prostor, Hustopeče

Nabízíme k dlouhodobému pronájmu obchodní prostory ve výborné lokalitě v Hustopečích, přímo na autobusovém nádraží. Prostory jsou v současnosti využívány jako rychlé občerstvení. Je možné odkoupit vybavení od stávajícího nájemce, samotný prostor je však pronajímán nevybavený.

Jednou z hlavních výhod je vynikající viditelnost – prostory jsou velmi dobře viditelné pro všechny projíždějící, což přináší vysoký potenciál zákazníků. Dalším benefitem je blízkost vlakového nádraží, která zajišťuje snadnou dostupnost nejen z Hustopečí, ale i z okolních měst a obcí.

Tyto prostorné komerční prostory jsou vhodné pro široké spektrum podnikání. Ideální jsou například pro:
• Rychlé občerstvení
• prodejnu zboží,
• kancelář nebo konzultační centrum,
• služby jako kosmetický, masážní či jiný salon.
Možnosti využití jsou velmi široké a záleží jen na Vašem podnikatelském záměru.

Podmínky pronájmu:
• nájemné: 12.900 Kč / měsíc + DPH + energie,
• vratná kauce: 2× měsíční nájemné (25.800 Kč),
• provize RK: 1× měsíční nájemné + DPH (15.609 Kč).

Prostory jsou k dispozici ihned.

V případě zájmu o více informací nebo domluvení prohlídky nás neváhejte kontaktovat. Rádi Vám vše osobně ukážeme.
Cena:
12 900 CZK / za měsíc
Poznámka k ceně:
+ DPH a energie
Upozornění:
Pronajímající si vyhrazuje právo vybrat nájemce na základě jím zvolených kritérií.
Ing. Michal Stehlík
RE/MAX Pro
Blatného 3
Brno, 61600
Česká republika
Tel. na makléře: +420 733 679 940
Tel. do kanceláře: +420 732 299 929
E-mail: michal.stehlik@re-max.cz

Potřebujete poradit/máte zájem o prohlídku?

* – toto pole je nutné vyplnit

Podrobné informace

Číslo zakázky:
ID 077-NP06942
Typ nemovitosti:
Komerční prostory
Druh prostor:
Obchodní
Plocha kanceláří:
64 m²
Druh objektu:
Cihlová
Stav objektu:
Dobrý
Bezbariérový byt:
Ano
Charakter okolní zástavby:
Obchodní
K nastěhování:
1. 2. 2026
Doprava:
Vlak, Dálnice, Silnice, MHD, Autobus
Elektřina:
230 V
Občanská vybavenost:
Škola, Školka, Zdravotnická zařízení, Pošta, Supermarket, Kompletní síť obchodů a služeb
Odpad:
Kanalizace
Celková plocha:
64 m²
Plyn:
Plynovod
Typ domu:
Přízemní
Umístění objektu:
Rušná část obce
Voda:
Dálkový rozvod
Vybavení kanceláří:
Ano
Vybaveno:
Ano
Výška stropu:
3,2
Energetická náročnost budovy:
G