Translate with 
MENU ZAVŘÍT

Pronájem bytu 1+kk v osobním vlastnictví 37 m², Praha 5 - Motol (ID 205-NP12616)

ulice Jeřabinová, Praha 5 – Motol mapa

18 000 Kč ( za měsíc)
CÚsporná

kk
1x
37 m2
2/6
Exkluzivně

Pronájem bytu 1+kk 31 m² s terasou, Praha 5-Motol

Hledáte pěkný byt k dlouhodobému pronájmu na klidném místě s rychlou dostupností do centra?

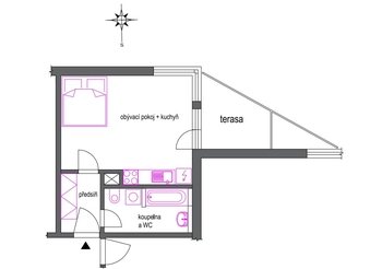
Ve výhradním zastoupení majitele vám nabízíme krásný světlý byt o dispozici 1+kk, v klidné rezidenční lokalitě obklopené zelení, v blízkosti nemocnice Na Homolce. Byt je ve velmi dobrém stavu, čistý, udržovaný, vymalovaný, s novými žaluziemi. Nachází se v 1. patře bytového domu s výtahem, s orientací na jihozápad. Součástí je příjemná rohová terasa (6 m²) a vybavení dle fotografií: šatní skříň ve vstupní chodbě; prostorná koupelna s toaletou a dále vana, umyvadlo, žebříkové topení, pračka; obývací pokoj s kuchyňským koutem - kuchyňská linka, elektrický sporák se sklokeramickou deskou, digestoř, lednice. Byt je připraven ihned k nastěhování.

Měsíční náklady:
Nájemné: 18.000 Kč/měsíc
Poplatky: 4.000 Kč/měsíc včetně elektřiny
Kauce: 30.000 Kč
Preferujeme dlouhodobý pronájem bez zvířat pro 1 osobu, maximálně 2 osoby.

Jezdíte na kole, in-line bruslích, běháte, chodíte na procházky, hrajete golf nebo se rádi kocháte výhledy na Prahu? Zázemí pro tyto aktivity poskytne hned několik míst v nejbližším okolí (parky Ladronka, Košíře-Motol, Cibulka, přírodní památka Skalka, Poštovka, Golf Motol, přírodní koupaliště). Autobusová zastávka (Weberova) se nachází 400 m od domu (metro B-Anděl a nákupní centrum OC Nový Smíchov do 10 minut, metro A-Motol do 6 minut), zastávka tramvaje chůzí do 10 minut, letiště Václava Havla do 20 minut autem.

Vážné zájemce rádi přivítáme na prohlídce. Neváhejte kontaktovat makléře telefonicky nebo prostřednictvím formuláře. Těšíme se na vás.
Cena:
18 000 CZK / za měsíc
Poznámka k ceně:
+ 4.000 služby, 30.000 kauce, neplatíte provizi RK
Upozornění:
Pronajímající si vyhrazuje právo vybrat nájemce na základě jím zvolených kritérií.
Veronika Makásková
RE/MAX Alfa
Spálená 97/29
Praha 1 - Nové Město, 11000
Česká republika
Tel. na makléře: +420 739 379 540
Tel. do kanceláře: +420 296 240 400
E-mail: veronika.makaskova@re-max.cz

Potřebujete poradit/máte zájem o prohlídku?

* – toto pole je nutné vyplnit

Podrobné informace

Číslo zakázky:
ID 205-NP12616
Dispozice:
1+kk
Číslo podlaží:
2
Počet podlaží v objektu:
6
Podlahová plocha:
37 m²
Druh objektu:
Cihlová
Stav objektu:
Velmi dobrý
Vlastnictví:
Osobní
Typ nemovitosti:
Byty
Charakter okolní zástavby:
Obytná
K nastěhování:
9. 3. 2026
Doprava:
Dálnice, Silnice, MHD, Autobus
Užitná plocha:
31 m²
Umístění objektu:
Klidná část obce
Vybaveno:
Ano
Výtah:
Ano
Energetická náročnost budovy:
C