Translate with 
MENU ZAVŘÍT

Prodej domu 210 m², Praha 9 - Horní Počernice (ID 114-NP10524)

ulice Češovská, Praha 9 – Horní Počernice mapa

17 900 000 Kč ( za nemovitost)
DMéně
úsporná

5+
210 m2
370 m2
3
Exkluzivně Zlevněno

Prodej RD 6+2/G 210m² s pozemkem 370m²

Exkluzivně nabízíme k prodeji samostatně stojící rodinný dům v žádané lokalitě Praha – Horní Počernice, ulice Češovská 1863.

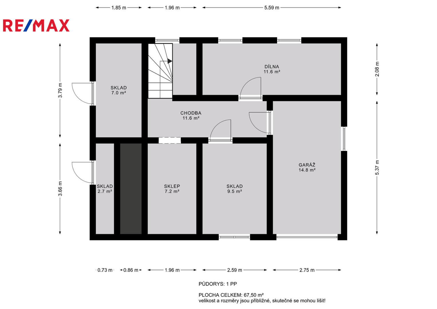
Cihlový dům o dispozici 6+2 s garáží nabízí komfortní rodinné bydlení s celkovou užitnou plochou 210 m². Zastavěná plocha činí 97 m² a k domu náleží udržovaný pozemek o výměře 370 m².

Dům je dvoupodlažní, plně podsklepený a disponuje také prostornou půdou, která nabízí další potenciál využití. V suterénu se nachází sklepní prostory o ploše 52 m², vhodné jako technické zázemí, sklad či dílna, a dále garáž. Před garáží je k dispozici další parkovací stání.

Vytápění je řešeno radiátory napojenými na elektrokotel, k dispozici je rovněž plynový kotel. Ohřev teplé vody zajišťuje elektrický bojler. Na střeše je instalována fotovoltaická elektrárna, která významně snižuje provozní náklady domácnosti.

Dům je napojen na veškeré inženýrské sítě – vodovod, kanalizaci, plyn a elektřinu (230 V). Samozřejmostí je internetové připojení a telekomunikační služby.

Lokalita nabízí výbornou dopravní dostupnost – v blízkosti se nachází vlakové spojení, zastávky MHD, rychlé napojení na dálnici i hlavní silniční tahy. Centrum Prahy je tak pohodlně dostupné autem i veřejnou dopravou.

Nemovitost představuje ideální volbu pro vícečlennou rodinu i zajímavou investiční příležitost.

Financování hypotečním úvěrem je samozřejmostí a s jeho vyřízením vám rádi bezplatně pomůžeme. Pro více informací nebo sjednání prohlídky zavolejte makléři nabídky. Prodávající si vyhrazuje právo vybrat kupujícího na základě jím zvolených kritérií.
Cena:
17 900 000 CZK / za nemovitost
Poznámka k ceně:
Včetně provize RK, právního a hypotečního servisu
Upozornění:
Prodávající si vyhrazuje právo vybrat kupujícího na základě jím zvolených kritérií.
RX finance

Spočítejte si splátku hypotéky

Na kolik vás vyjde pořízení vlastního bydlení? Zadejte pár informací do naší hypoteční kalkulačky a hned si prohlédněte výsledek.

Kupní cena nemovitosti

17 900 000 Kč

Výše hypotéky

Doba splácení

Vypočítaná měsíční splátka

Úroková sazba 3.6%

260 990 Kč

Hypotéku zařídíme za vás

Ušetřete svůj čas i nervy. Naši makléři zařídí veškeré papírování a dovedou vás až k úspěšnému podpisu smlouvy v bance.

Nechte nám kontakt, náš makléř se v pracovní dny ozve do 24 hodin

* – toto pole je nutné vyplnit
Martin Drlička
RE/MAX Horizont
Třebešovská 2869/94
Praha 9 - Horní Počernice, 19300
Česká republika
Tel. na makléře: +420 606 796 657
Tel. do kanceláře: +420 733 149 056
E-mail: martin.drlicka@re-max.cz

Potřebujete poradit/máte zájem o prohlídku?

* – toto pole je nutné vyplnit

Podrobné informace

Číslo zakázky:
ID 114-NP10524
Poloha objektu:
Samostatný
Počet podlaží v objektu:
3
Užitná plocha:
210 m²
Plocha parcely:
370 m²
Druh objektu:
Cihlová
Stav objektu:
Velmi dobrý
Typ nemovitosti:
Domy a vily
K nastěhování:
1. 3. 2026
Doprava:
Vlak, Dálnice, Silnice, MHD, Autobus
Elektřina:
230 V
Garáž:
Ano
Odpad:
Kanalizace
Zastavěná plocha:
97 m²
Plyn:
Plynovod
Počet parkovacích míst:
1
Telekomunikace:
Telefon, Internet
Typ domu:
Přízemní
Umístění objektu:
Klidná část obce
Voda:
Dálkový rozvod
Energetická náročnost budovy:
D