Translate with 
MENU ZAVŘÍT

Pronájem bytu 2+1 v osobním vlastnictví 55 m², Praha 8 - Kobylisy (ID 205-NP12503)

ulice Paláskova, Praha 8 – Kobylisy mapa

22 000 Kč ( za měsíc)
DMéně
úsporná

1x
2x
55 m2
4/13
Exkluzivně

Pronájem 2+1, Paláskova

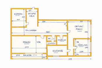
Byt 2+1 o ploše 55,25 m² s balkonem se nachází ve 4. patře panelového domu v klidné části Prahy 8 – Kobylis. Celý byt prošel kompletní rekonstrukcí a nabízí příjemné, moderní bydlení s výbornou dostupností do přírody i do města.

Metro C – Kobylisy je dostupné za 6–8 minut chůze. Lokalita poskytuje kompletní občanskou vybavenost. Dvě minuty chůze od domu je supermarket Albert, lékárna, trafika, Alzabox, Zásilkovna, PPL Parcel Box, restaurace, cukrárna, kadeřnictví a skatepark. V blízkosti se nachází také Poliklinika Čumpelíkova a tenisové kurty. Okolí nabízí kavárny, další restaurace, obchody, poštu a další služby. V domě i okolí jsou klidní, bezproblémoví sousedé.

Nedaleko leží přírodní park Čimický háj, který je ideálním místem pro procházky, běh nebo relaxaci v zeleni. Kousek od domu, několik minut jízdy tramvají, se nachází cyklostezka podél Vltavy. Je vhodná na procházky, jízdu na kole, bruslení či delší výlety. Po stezce je možné přejít přes lávku do parku Stromovka – jednoho z nejkrásnějších pražských parků s rozlehlými zelenými plochami, rybníky a místy pro odpočinek. Stezka pokračuje směrem k Troji, Zoo, až na Podbabu, kde se nachází lodní přívoz a atraktivní místa na letní procházky s točenou zmrzlinou či chlazeným nápojem zakoupeným v nedalekých stáncích s občerstvením.

Kuchyňská linka je vybavena vestavěnými spotřebiči: myčkou nádobí, indukční varnou deskou, elektrickou troubou se samočisticí funkcí, mikrovlnnou troubou, digestoří s odtahem a vestavěnou lednicí s mrazákem s technologií No Frost.

Samostatná místnost naproti kuchyni může sloužit jako jídelna nebo pracovna. Díky své poloze a přirozenému světlu působí velmi útulně a lze ji snadno zařídit jako příjemné místo pro stolování či domácí práci.

Z ložnice je vstup na balkon s výhledem do zeleně. Pohled do stromů vytváří klidnou atmosféru a balkon je ideální pro ranní kávu i večerní posezení. Koupelna prošla rekonstrukcí spolu se zbytkem bytu a je vybavena vanou. Vytápění i ohřev vody jsou řešeny dálkově.

V domě jsou dva výtahy – jeden menší a druhý větší, prostorný, vhodný i pro přepravu objemnějších předmětů.

Poplatky činí 6 700 Kč. Elektřina se převádí na nájemce. Kauce 22 000 Kč, provize RK 22 000 Kč bez DPH. Energetická náročnost: D.
Cena:
22 000 CZK / za měsíc
Poznámka k ceně:
Upozornění:
Pronajímající si vyhrazuje právo vybrat nájemce na základě jím zvolených kritérií.
David Majer
RE/MAX Alfa
Spálená 97/29
Praha 1 - Nové Město, 11000
Česká republika
Tel. na makléře: +420 730 542 484
Tel. do kanceláře: +420 296 240 400
E-mail: david.majer@re-max.cz

Potřebujete poradit/máte zájem o prohlídku?

* – toto pole je nutné vyplnit

Podrobné informace

Číslo zakázky:
ID 205-NP12503
Dispozice:
2+1
Číslo podlaží:
4
Počet podlaží v objektu:
13
Podlahová plocha:
55 m²
Druh objektu:
Panelová
Stav objektu:
Velmi dobrý
Vlastnictví:
Osobní
Typ nemovitosti:
Byty
K nastěhování:
4. 12. 2025
Odpad:
Kanalizace
Užitná plocha:
55 m²
Plyn:
Plynovod
Umístění objektu:
Sídliště
Voda:
Dálkový rozvod
Vybaveno:
Ano
Výtah:
Ano
Energetická náročnost budovy:
D