Translate with 
MENU ZAVŘÍT

Pronájem domu 115 m², Kladno (ID 201-NP03343)

ulice Dr. Vrbenského, Kladno mapa

35 000 Kč ( za měsíc)
GMimořádně
nehospodárná

5+
115 m2
96 m2
2
Exkluzivně

Pronájem řadového rodinného domu po rekonstrukci – centrum Kladna (u náměstí Starosty Pavla)

Exkluzivně nabízíme k pronájmu řadový rodinný dům po kompletní rekonstrukci, který se nachází v samém centru Kladna, v těsné blízkosti náměstí Starosty Pavla. Dům stojí v bezprostřední blízkosti autobusového nádraží a supermarketu Lidl. Má výbornou dopravní dostupnost a možnost vyhrazeného parkovacího místa přímo před domem.

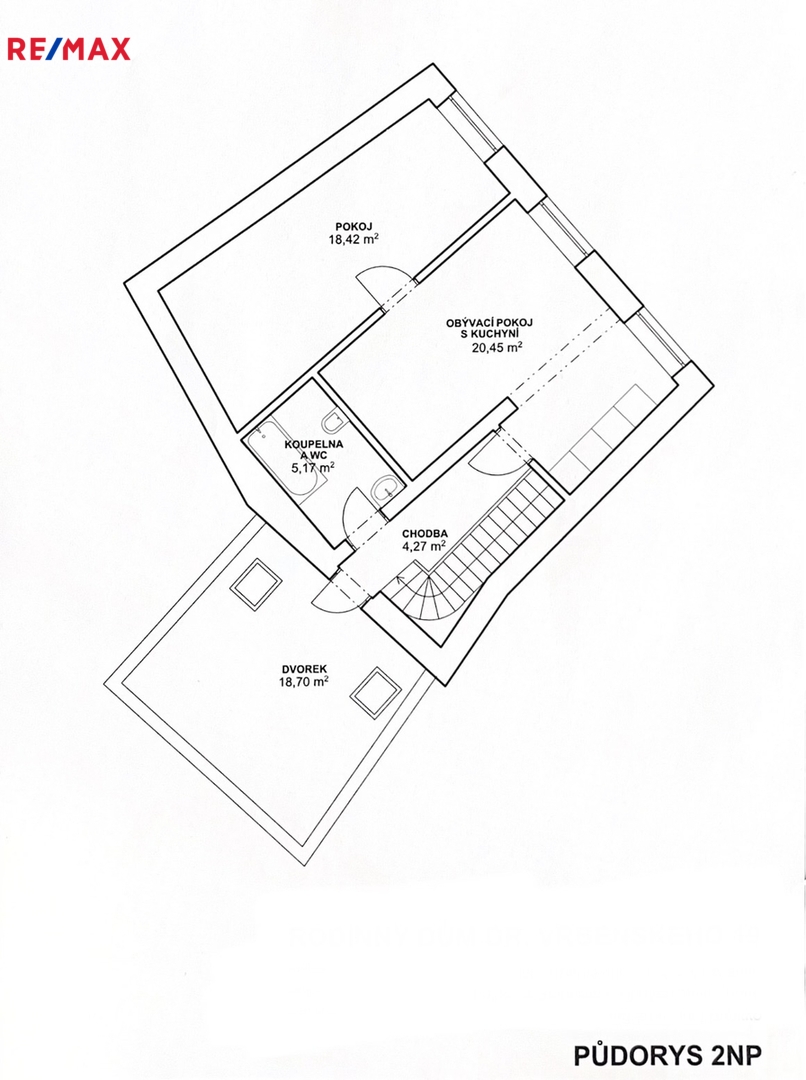
Dům je rozdělen na dvě samostatné bytové jednotky.
V přízemí se nachází byt o velikosti 67 m², dispozičně řešený jako 2+1, s prostornou koupelnou a samostatným WC.
V patře je byt o velikosti 48 m² s dispozicí 2+1, novou moderní kuchyňskou linkou a klidnou terasou o rozloze téměř 19 m², ideální pro odpočinek a relax.

Okolí nabízí kompletní občanskou vybavenost – v docházkové vzdálenosti se nachází obchody, kavárny, restaurace, pošta, banky, poliklinika i sportovní centrum. Přímo za rohem je oblíbené náměstí Starosty Pavla s pravidelnými trhy, kulturními akcemi a příjemnými podniky k posezení. V blízkosti je také několik mateřských a základních škol, parky i možnosti pro volnočasové aktivity. Díky blízkému autobusovému nádraží je zajištěno rychlé spojení do Prahy i okolních měst.

Dům je vhodný jak pro vícegenerační bydlení, tak i pro kombinaci bydlení a podnikání díky své atraktivní poloze v centru města. V případě více informací, neváhejte kontaktovat makléře nabídky.

Celkové měsíční náklady:
Nájem: 35.000 Kč
Služby: 6.860 Kč
Celkem: 41.860 Kč

V případě pronájmu nehradíte provizi. Provize je hrazena ze strany majitele.
Cena:
35 000 CZK / za měsíc
Poznámka k ceně:
+ služby 6.860 Kč
Upozornění:
Pronajímající si vyhrazuje právo vybrat nájemce na základě jím zvolených kritérií.
Bc. Tom Nguyen
RE/MAX Atrium
Podolská 811/138
Praha 4 - Podolí, 14700
Česká republika
Tel. na makléře: +420 778 055 568
Tel. do kanceláře: +420 606 726 515
E-mail: tom.nguyen@re-max.cz

Potřebujete poradit/máte zájem o prohlídku?

* – toto pole je nutné vyplnit

Podrobné informace

Číslo zakázky:
ID 201-NP03343
Poloha objektu:
Řadový
Počet podlaží v objektu:
2
Užitná plocha:
115 m²
Plocha parcely:
96 m²
Druh objektu:
Cihlová
Stav objektu:
Po rekonstrukci
Typ nemovitosti:
Domy a vily
Charakter okolní zástavby:
Obytná
K nastěhování:
12. 2. 2026
Doprava:
Silnice, Autobus
Odpad:
Kanalizace
Zastavěná plocha:
96 m²
Plyn:
Plynovod
Typ domu:
Patrový
Umístění objektu:
Centrum obce
Voda:
Dálkový rozvod
Energetická náročnost budovy:
G