Translate with 
MENU ZAVŘÍT

Prodej bytu 2+kk v osobním vlastnictví 46 m², Praha 8 - Bohnice (ID 205-NP12552)

ulice Zelenohorská, Praha 8 – Bohnice mapa

5 850 000 Kč ( za nemovitost)
GMimořádně
nehospodárná

kk
2x
46 m2
11/13
Exkluzivně

Prodej bytu 2kk, 46,3 m2, ul. Zelenohorská, Praha 8 - Bohnice

Přijďte se podívat na den otevřených dveří v pátek 6.3.2026. Pro přesný čas prohlídky mne, prosím, kontaktujte e-mailem či telefonem.
Nemovitost bude prodána metodou realitní aukce RE/MAX a majitel má výhradní právo si budoucího kupujícího vybrat.

Dovoluji si Vám nabídnout prodej bytu 2+kk, 46 m2 + 2 sklepní kóje, na adrese Zelenohorská 499/31, Praha 8 – Bohnice.
Byt je v osobním vlastnictví a nachází se v 11.NP panelového domu s výtahem.

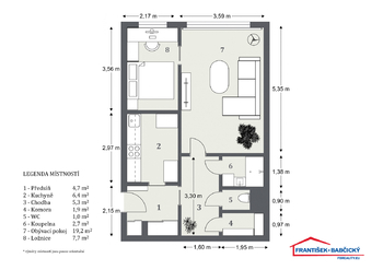
Dispozice bytu tvoří obytný pokoj, samostatná ložnice, kuchyňský kout, koupelna, samostatné WC, předsíň a komora. K bytu náleží dvě sklepní kóje na patře.

Byt je určen ke kompletní rekonstrukci. Měsíční předpis plateb je 4.171,- Kš + zálohy na elektřinu.

Dům je průběžně udržován. V minulých letech proběhlo zateplení obvodového pláště včetně střechy, výměna dlažby na lodžiích a instalace nového zábradlí, dále byla provedena obnova podlahových krytin ve společných prostorách domu. Společenství vlastníků je stabilní, bez úvěrového zatížení a bez evidovaných dluhů. V letošním roce je plánována modernizace osvětlení ve sklepních prostorách.

Lokalita nabízí dobrou dopravní dostupnost a plnou občanskou vybavenost. V blízkosti domu se nachází zastávky MHD s napojením na metro Kobylisy, dále obchody, školy, školky, zdravotnická zařízení a další služby. V okolí je dostatek zeleně a možností pro volnočasové aktivity.

Byt je vhodný jak pro vlastní bydlení, tak jako investice s potenciálem dlouhodobého pronájmu.
Cena:
5 850 000 CZK / za nemovitost
Poznámka k ceně:
vč. provize a právních služeb
Upozornění:
Prodávající si vyhrazuje právo vybrat kupujícího na základě jím zvolených kritérií.
RX finance

Spočítejte si splátku hypotéky

Na kolik vás vyjde pořízení vlastního bydlení? Zadejte pár informací do naší hypoteční kalkulačky a hned si prohlédněte výsledek.

Kupní cena nemovitosti

5 850 000 Kč

Výše hypotéky

Doba splácení

Vypočítaná měsíční splátka

Úroková sazba 3.6%

260 990 Kč

Hypotéku zařídíme za vás

Ušetřete svůj čas i nervy. Naši makléři zařídí veškeré papírování a dovedou vás až k úspěšnému podpisu smlouvy v bance.

Nechte nám kontakt, náš makléř se v pracovní dny ozve do 24 hodin

* – toto pole je nutné vyplnit
František Babčický
RE/MAX Alfa
Spálená 97/29
Praha 1 - Nové Město, 11000
Česká republika
Tel. na makléře: +420 733 679 995
Tel. do kanceláře: +420 296 240 400
E-mail: frantisek.babcicky@re-max.cz

Potřebujete poradit/máte zájem o prohlídku?

* – toto pole je nutné vyplnit

Podrobné informace

Číslo zakázky:
ID 205-NP12552
Dispozice:
2+kk
Číslo podlaží:
11
Počet podlaží v objektu:
13
Podlahová plocha:
46 m²
Druh objektu:
Panelová
Stav objektu:
Před rekonstrukcí
Vlastnictví:
Osobní
Typ nemovitosti:
Byty
Doprava:
Silnice, MHD, Autobus
Elektřina:
230 V
Odpad:
Kanalizace
Užitná plocha:
46 m²
Plyn:
Plynovod
Umístění objektu:
Sídliště
Voda:
Dálkový rozvod
Výtah:
Ano
Energetická náročnost budovy:
G

Aukce

Do konce aukce zbývá:

Chci se do aukce zapojit

Zapojit se do aukce je možné vyplněním on-line formuláře, nebo vložením dokumentu „závazná nabídka ke koupi nemovitosti“.

Vyberte si prosím níže jednu z variant.

*
*
*
*
*
*

V případě, že máte zájem o tuto nemovitost, chcete se zúčastnit aukce, ale nemáte kód aukce, kontaktujte prosím makléře nemovitosti

Chci se zúčastnit aukce