Translate with 
MENU ZAVŘÍT

Prodej bytu 3+kk v osobním vlastnictví 116 m², Praha 2 - Vinohrady (ID 205-NP12593)

ulice Šumavská, Praha 2 – Vinohrady mapa

23 890 000 Kč ( za nemovitost)
GMimořádně
nehospodárná

kk
3x
116 m2
4/6
Exkluzivně

Byt 3+kk/B Šumavská, Praha 2 Vinohrady

Ve výhradním zastoupení Vám nabízím byt po kompletní a velmi precizní rekonstrukci, situovaný ve 4. nadzemním podlaží reprezentativního neobarokního domu z konce 19. století, v jedné z nejžádanějších částí Prahy – na Vinohradech.
Tato lokalita dlouhodobě patří mezi nejstabilnější a nejhodnotnější rezidenční adresy v metropoli. Kombinuje architektonickou noblesu historických domů, zeleň městských parků a kultivovaný městský život.

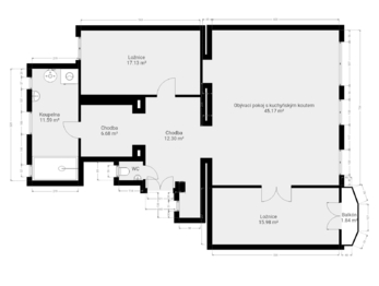
Byt nabízí promyšlenou dispozici: vstupní halu, prostorný obývací pokoj, ložnici s balkonem orientovaným do klidného vnitrobloku, samostatný pokoj/pracovnu, koupelnu se sprchovým koutem, šatnu a oddělenou toaletu.

Rekonstrukce byla realizována s respektem a současně s důrazem na vysoký technický standard:
- dřevěná okna s izolačním trojsklem (schváleno Odborem památkové péče MHMP)
- podlahové vytápění napojené na kondenzační kotel Vaillant včetně ohřevu vody
- nové omítky, štuky a stropní rozety
- sádrokartonové podhledy s protihlukovou izolací
- masivní dubové interiérové dveře včetně obložek
- kuchyňská linka na míru s vestavěnými spotřebiči Siemens
- vestavěné úložné prostory s komfortním úložným prostorem
- nová elektroinstalace
- kvalitní podlahové krytiny – španělská dlažba v hlavních prostorech, vinyl v ložnicích
- stropní svítidla od italských designérů

V bezprostředním okolí naleznete vše, co činí život na Vinohradech výjimečným – Riegrovy sady, Havlíčkovy sady, vyhlášené kavárny, restaurace, kulturní instituce i plnou občanskou vybavenost.
Stanice metra A – Náměstí Míru je dostupná do několika minut chůze, tramvajová zastávka Korunní se nachází v těsné blízkosti domu.

Možnost pronájmu krytého parkovacího stání v nedalekém Korunním dvoře.

Koupi lze financovat hypotečním úvěrem. Kompletní právní a finanční servis je samozřejmostí.

Tato nemovitost představuje kombinaci historické noblesy, moderního komfortu a stabilní investiční hodnoty v jedné z nejprestižnějších částí Prahy.

V případě zájmu o osobní prohlídku mě neváhejte kontaktovat.
Cena:
23 890 000 CZK / za nemovitost
Poznámka k ceně:
Vč. provize RK a kompletního právního servisu
Upozornění:
Prodávající si vyhrazuje právo vybrat kupujícího na základě jím zvolených kritérií.
RX finance

Spočítejte si splátku hypotéky

Na kolik vás vyjde pořízení vlastního bydlení? Zadejte pár informací do naší hypoteční kalkulačky a hned si prohlédněte výsledek.

Kupní cena nemovitosti

23 890 000 Kč

Výše hypotéky

Doba splácení

Vypočítaná měsíční splátka

Úroková sazba 3.6%

260 990 Kč

Hypotéku zařídíme za vás

Ušetřete svůj čas i nervy. Naši makléři zařídí veškeré papírování a dovedou vás až k úspěšnému podpisu smlouvy v bance.

Nechte nám kontakt, náš makléř se v pracovní dny ozve do 24 hodin

* – toto pole je nutné vyplnit
Vlastimil Raška
RE/MAX Alfa
Spálená 97/29
Praha 1 - Nové Město, 11000
Česká republika
Tel. na makléře: +420 733 691 145
Tel. do kanceláře: +420 296 240 400
E-mail: vlastimil.raska@re-max.cz

Potřebujete poradit/máte zájem o prohlídku?

* – toto pole je nutné vyplnit

Podrobné informace

Číslo zakázky:
ID 205-NP12593
Dispozice:
3+kk
Číslo podlaží:
4
Počet podlaží v objektu:
6
Podlahová plocha:
116 m²
Druh objektu:
Cihlová
Stav objektu:
Velmi dobrý
Vlastnictví:
Osobní
Typ nemovitosti:
Byty
Charakter okolní zástavby:
Obytná
Doprava:
MHD
Elektřina:
230 V, 400 V
Odpad:
Kanalizace
Ostatní rozvody:
Kabelová televize
Užitná plocha:
110 m²
Zastavěná plocha:
292 m²
Plyn:
Individuální
Počet podlaží pod zemí:
1
Telekomunikace:
Internet
Umístění objektu:
Centrum obce
Voda:
Dálkový rozvod
Vybaveno:
Ano
Výtah:
Ano
Energetická náročnost budovy:
G