Translate with 
MENU ZAVŘÍT

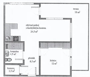
Pronájem bytu 2+kk v osobním vlastnictví 50 m², Praha 5 - Stodůlky (ID 218-NP06998)

ulice Svitákova, Praha 5 – Stodůlky mapa

23 000 Kč ( za měsíc)
CÚsporná

kk
2x
50 m2
2/7
Exkluzivně Rezervace

Pronájem 2+kk, balkon, garáž, Britská čtvrť

Pronájem atraktivního bytu 2 +kk (50 m2) s balkonem (19 m2) a garážovým stáním v zdařilé rezidenční čtvrti Britská čtvrť - v první, nejhezčí etapě výstavby. Byt se nachází v 2NP skvěle udržovaného domu, disponuje nadstandardně velkým, rohovým balkonem o výměře 19 m2. Je po čerstvé rekonstrukci, tedy "voní novotou" a vyhlíží svého prvního nájemce.
Je zde zcela nová kuchyňská linka se spotřebiči (v procesu dokončování), nové podlahy, čerstvé nátěry, žaluzie na oknech, svítidla. Prostorná vstupní chodba s praktickou komorou/šatnou, koupelna s vanou. Je nevybaven nábytkem, možnost dohody s majitelem, lze dodat i pračku či mikrovlnnou troubu. Díky velkým oknům je byt velice slunný a světlý po celý den. Vstup na balkon z obývacího pokoje i ložnice umožňuje nájemcům užívat si propojení interiéru s exteriérem každý den. K bytu náleží garážové stání.
Objekt je 24 h denně střežen ostrahou a bezpečnostními kamerami, vstup do budovy na čipy.
Velmi klidná lokalita s výbornou dostupností do centra, metro B Stodůlky cca 3 min chůzí. V místě je veškerá občanská vybavenost, Nedaleko OC Zličín nebo shopping park Stodůlky (Tesco, Ikea aj.). Prokopské a Dalejské údolí vhodné pro výlety na kole či výcházky v bezprostřední blízkosti. Britská čtrť je vyhledávaná pro svoji lokalitu přímo na metru Stodůlky, zároveň pro blízkost přírodě. Měsíční náklady cca 5.500,- Kč.
Pro sjednání prohlídky či více informací mne neváhejte kontaktovat. Pronajímající si vyhrazuje právo vybrat nájemce na základě jím zvolených kritérií.
Cena:
23 000 CZK / Rezervováno
Mgr. Barbora Brůžková
REMAX Anděl
Ostrovského 253/3
Praha 5 - Smíchov, 15000
Česká republika
Tel. na makléře: +420 731 474 546
Tel. do kanceláře: +420 725 293 030
E-mail: barbora.bruzkova@re-max.cz

Potřebujete poradit/máte zájem o prohlídku?

* – toto pole je nutné vyplnit

Podrobné informace

Číslo zakázky:
ID 218-NP06998
Dispozice:
2+kk
Číslo podlaží:
2
Počet podlaží v objektu:
7
Užitná plocha:
50 m²
Druh objektu:
Smíšená
Stav objektu:
Velmi dobrý
Vlastnictví:
Osobní
Typ nemovitosti:
Byty
K nastěhování:
9. 3. 2026
Garáž:
Ano
Odpad:
Kanalizace
Podlahová plocha:
50 m²
Zastavěná plocha:
790 m²
Plyn:
Plynovod
Výtah:
Ano
Energetická náročnost budovy:
C