Translate with 
MENU ZAVŘÍT

Pronájem bytu 2+kk v osobním vlastnictví 35 m², Praha 5 - Košíře (ID 114-NP10591)

ulice Musílkova, Praha 5 – Košíře mapa

21 800 Kč ( za měsíc)
GMimořádně
nehospodárná

kk
2x
35 m2
3/5
Exkluzivně

Pronájem moderního bytu 2+kk v klidné části Prahy 5

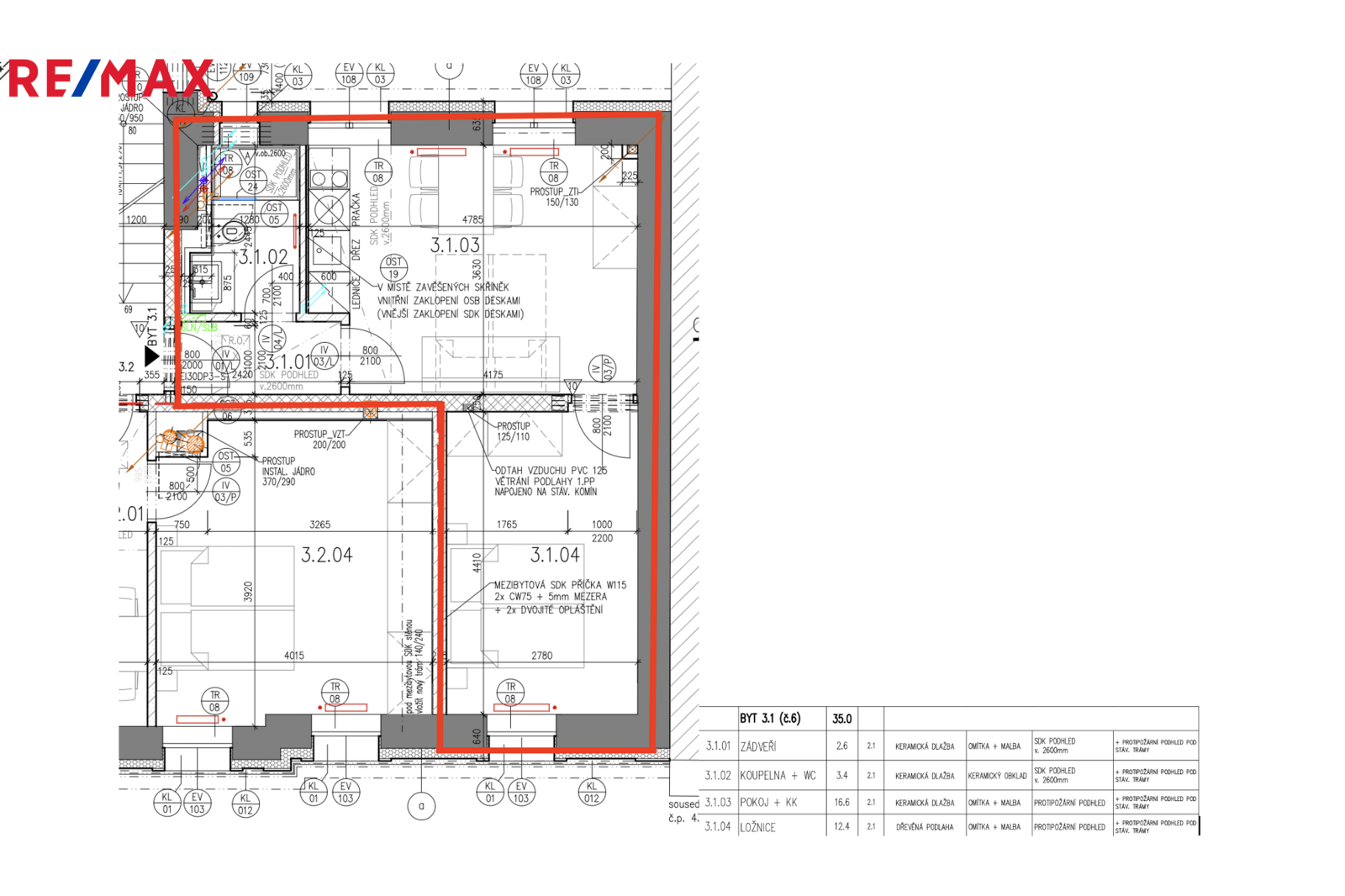
K dlouhodobému pronájmu nabízím nově zrekonstruovaný byt 2+kk o ploše 35 m², jenž je umístěný ve 3. nadzemním podlaží nově zrevitalizovaného cihlového domu s výtahem v ulici Musílkova, v oblíbené části Prahy 5 - Košíře. Dům prošel kompletní rekonstrukcí vč. moderní kotelny (2026) a nabízí celkem 16 nájemních jednotek (14 bytů a 2 ateliéry) navržených s důrazem na moderní, komfortní a dlouhodobé bydlení. Nastěhování je možné ihned.

Dispozice bytu (3.1.) zahrnuje vstupní přesíň, designovou koupelnu se sprchovým koutem, umyvadlem s koupelnovou skříňkou, WC a topným žebříkem. Kuchyně s obývací částí, která disponuje moderní kuchyňskou linkou se spotřebiči - lednicí s mrazákem, troubou, indukční varnou deskou, myčkou, dřezem, pračkou a digestoří. Samostatná ložnice je orientována na jižní stranu. Internetové připojení je řešeno přes O2 / CETIN, v bytě jsou připravené datové zásuvky.

Finanční podmínky:
Nájemné = 21 800 Kč / měsíčně.
Zálohy na služby = 1 osoba = 2.000,- Kč / měs., 2 osoby 3.000,- Kč / měs. Elektřina se převádí na nájemce.
Jistota (kauce) ve výši 21 800 Kč.
Rezervační platba/provize = 26 378,- Kč.

Bytový dům se nachází v klidné a zelené části Košíře, která je vyhledávaná pro svou příjemnou atmosféru a výbornou dopravní dostupnost. V okolí je kompletní občanská vybavenost - obchody, kavárny, restaurace i ostatní služby. Autobusová zastávka "Pod Školou" je do 5 min. chůzí, tramvajová zastávka "Kavalírka" je do 10 min. chůzí od domu a díky tomu se během několika minut pohodlně dostanete do centra města i na stanici metra =B= Anděl.

Rád se s Vámi setkám na osobní prohlídce bytů.
Cena:
21 800 CZK / za měsíc
Poznámka k ceně:
Kompletní informace viz text
Upozornění:
Pronajímající si vyhrazuje právo vybrat nájemce na základě jím zvolených kritérií.
David Smekal
RE/MAX Horizont
Třebešovská 2869/94
Praha 9 - Horní Počernice, 19300
Česká republika
Tel. na makléře: +420 731 682 341
Tel. do kanceláře: +420 733 149 056
E-mail: david.smekal@re-max.cz

Potřebujete poradit/máte zájem o prohlídku?

* – toto pole je nutné vyplnit

Podrobné informace

Číslo zakázky:
ID 114-NP10591
Dispozice:
2+kk
Číslo podlaží:
3
Počet podlaží v objektu:
5
Podlahová plocha:
35 m²
Druh objektu:
Cihlová
Stav objektu:
Po rekonstrukci
Vlastnictví:
Osobní
Typ nemovitosti:
Byty
Charakter okolní zástavby:
Obytná
K nastěhování:
9. 3. 2026
Doprava:
Dálnice, Silnice, MHD, Autobus
Elektřina:
230 V
Odpad:
Kanalizace
Užitná plocha:
35 m²
Rok rekonstrukce:
2026
Telekomunikace:
Internet
Umístění objektu:
Klidná část obce
Voda:
Dálkový rozvod
Výtah:
Ano
Energetická náročnost budovy:
G