Translate with 
MENU ZAVŘÍT

Prodej bytu 2+1 v osobním vlastnictví 63 m², Praha 6 - Dejvice (ID 205-NP12650)

ulice Václavkova, Praha 6 – Dejvice mapa

8 900 000 Kč ( za nemovitost)
GMimořádně
nehospodárná

1x
2x
63 m2
1/5
Exkluzivně

Byt 2+1 Václavkova Praha 6 Dejvice

Dovoluji si Vám exkluzivně nabídnout bytovou jednotku o dispozici 2+1 s užitnou plochou 60 m², která se nachází v centrální části pražských Dejvic, v ulici Václavkova.
Byt je situován v bezpečném 1. nadzemním podlaží domu, který v roce 2018 prošel rekonstrukcí vnějšího pláště, včetně výměny oken za dřevěná špaletová v uliční části.
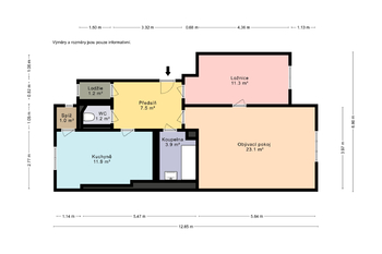
Dispozice bytu nabízí dva neprůchozí pokoje – obývací pokoj o výměře 23,1 m², ložnici 11,3 m², dále kuchyni o velikosti 11,9 m² s komorou (1 m²), koupelnu s vanou (3,9 m²), samostatnou toaletu (1,2 m²), předsíň (7,5 m²) a lodžii (1,2 m²). V 1. podzemním podlaží je k dispozici sklep o velikosti 3 m².
Přidanou hodnotou domu je klidný a bezpečný vnitroblok se společnou zahradou o výměře 323 m², ideální pro relaxaci, trávení času s dětmi či posezení s přáteli.
Vytápění a ohřev teplé vody zajišťuje kondenzační kotel Vaillant, instalovaný včetně rozvodů topení v roce 2017.
Velmi dobrý stav původních interiérových dveří s obložkami podtrhuje autentickou atmosféru bytu. Ostatní technické prvky jsou v původním, avšak udržovaném stavu.
Dům spravuje dobře hospodařící SVJ s nízkými měsíčními náklady, což z této nemovitosti činí zajímavou příležitost i pro investory se záměrem následného pronájmu.
Pražské Dejvice patří mezi nejžádanější rezidenční lokality, které nabízejí vysokou úroveň bezpečnosti, kompletní občanskou vybavenost (obchody, restaurace, školy, školky, dětská hřiště) a výbornou dopravní dostupnost včetně MHD.
Byt je v osobním vlastnictví a jeho koupi lze financovat hypotečním úvěrem, se kterým Vám rádi pomohou naši finanční specialisté.
Součástí kupní ceny je kompletní právní servis a odměna realitní kanceláře.
Prohlídkový den: čtvrtek 26. 3. 2026 od 15:00 do 18:00
V případě zájmu o prohlídku mě neváhejte kontaktovat – rád si s Vámi domluvím konkrétní čas.
Děkuji a těším se na setkání s Vámi. Prodávající si vyhrazuje právo vybrat kupujícího na základě jím zvolených kritérií.
Cena:
8 900 000 CZK / za nemovitost
Poznámka k ceně:
Vč. provize a kompletního právního servisu
Upozornění:
Prodávající si vyhrazuje právo vybrat kupujícího na základě jím zvolených kritérií.
RX finance

Spočítejte si splátku hypotéky

Na kolik vás vyjde pořízení vlastního bydlení? Zadejte pár informací do naší hypoteční kalkulačky a hned si prohlédněte výsledek.

Kupní cena nemovitosti

8 900 000 Kč

Výše hypotéky

Doba splácení

Vypočítaná měsíční splátka

Úroková sazba 3.6%

260 990 Kč

Hypotéku zařídíme za vás

Ušetřete svůj čas i nervy. Naši makléři zařídí veškeré papírování a dovedou vás až k úspěšnému podpisu smlouvy v bance.

Nechte nám kontakt, náš makléř se v pracovní dny ozve do 24 hodin

* – toto pole je nutné vyplnit
Vlastimil Raška
RE/MAX Alfa
Spálená 97/29
Praha 1 - Nové Město, 11000
Česká republika
Tel. na makléře: +420 733 691 145
Tel. do kanceláře: +420 296 240 400
E-mail: vlastimil.raska@re-max.cz

Potřebujete poradit/máte zájem o prohlídku?

* – toto pole je nutné vyplnit

Podrobné informace

Číslo zakázky:
ID 205-NP12650
Dispozice:
2+1
Číslo podlaží:
1
Počet podlaží v objektu:
5
Podlahová plocha:
63 m²
Druh objektu:
Cihlová
Stav objektu:
Před rekonstrukcí
Vlastnictví:
Osobní
Typ nemovitosti:
Byty
Bezbariérový byt:
Ano
Charakter okolní zástavby:
Obytná
Doprava:
Vlak, Silnice, MHD
Elektřina:
230 V
Odpad:
Kanalizace
Užitná plocha:
60 m²
Zastavěná plocha:
251 m²
Plyn:
Individuální
Počet podlaží pod zemí:
1
Umístění objektu:
Centrum obce
Voda:
Dálkový rozvod
Energetická náročnost budovy:
G