Translate with 
MENU ZAVŘÍT

Pronájem bytu 3+kk v osobním vlastnictví 74 m², Brno (ID 268-NP03537)

ulice Slavíčkova, Brno – městská část Brno-sever mapa

20 850 Kč ( za měsíc)
GMimořádně
nehospodárná

kk
3x
74 m2
5/9
Exkluzivně

Pronájem bytu 3+kk s balkónem Brno-Lesná

Hledáte pronájem bytu v klidné lokalitě Brna s výbornou dostupností do centra ,s veškerou občanskou vybaveností a zelení v okolí?
Pak tento byt splňuje vše, co hledáte!
Ve výhradním zastoupení majitelů vám nabízíme k pronájmu částečně zřízený byt 3+kk s prostorným balkónem.
Byt je po rekonstrukci.
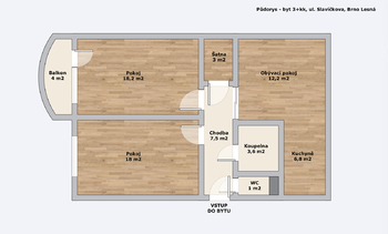
Z prostorné předsíně s botníkem a zrcadlem se dostanete do všech samostatných pokojů o rozloze 18, 18,2 a 12,2 m2. Z největšího z pokojů je vstup i na balkón o rozloze 4 m2, ze kterého je nádherný výhled na Brno a západ slunce.
Z obývacího pokoje se sedací soupravou, konferenčním stolkem, stolkem na televizi, televizí a jídelním stolem se židlemi, je vstup do kuchyně vybavené veškerými spotřebiči (lednice s mrazákem, myčka, plynový sporák s troubou, digestoř) a kuchyňskou linkou s dostatkem úložného prostoru a také snídaňovým pultem.
V ložnici je vestavěná skříň a dvojlůžko se stolky.
Velkým bonusem bytu je i prostorná šatna v předsíni o velikosti 3m2.
V koupelně najdete nejen umývadlo se zrcadlem a skříňkami, ale přijdou si tu na své vyznavači vany i sprchového koutu.
Nájemníci mohou využívat i společnou kolárnu (sklep k dispozici není).

Byt je k dispozici od 1.5.2026 a je vhodný pro 2-3 nájemníky.
Měsíční nájemné je ve výši 20.850,-Kč + zálohy na energie ve výši 4.950,-Kč. Nájemné je včetně internetového připojení.
Majitelé požadují kauci ve výši 25.800,-Kč, RK provizi ve výši 25.800,- + DPH.

Majitelé si vyhrazují právo vybrat si nájemníky na základě svých preferencí.
Pokud máte zájem o více informací a prohlídku, neváhejte kontaktovat makléřku nabídky. Pronajímající si vyhrazuje právo vybrat nájemce na základě jím zvolených kritérií.
Cena:
20 850 CZK / za měsíc
Poznámka k ceně:
+ energie ve výši 4.950,-/ měsíc. Internetové připojení v ceně nájmu
Upozornění:
Pronajímající si vyhrazuje právo vybrat nájemce na základě jím zvolených kritérií.
Bohdana Polgárová
RE/MAX Delux
Křenová 538/22
Brno, 60200
Česká republika
Tel. na makléře: +420 774 231 266
Tel. do kanceláře: +420 602 703 897
E-mail: bohdana.polgarova@re-max.cz

Potřebujete poradit/máte zájem o prohlídku?

* – toto pole je nutné vyplnit

Podrobné informace

Číslo zakázky:
ID 268-NP03537
Dispozice:
3+kk
Číslo podlaží:
5
Počet podlaží v objektu:
9
Podlahová plocha:
74 m²
Druh objektu:
Panelová
Stav objektu:
Velmi dobrý
Vlastnictví:
Osobní
Typ nemovitosti:
Byty
Charakter okolní zástavby:
Obytná
K nastěhování:
1. 3. 2026
Elektřina:
230 V
Odpad:
Kanalizace
Ostatní rozvody:
Kabelová televize
Užitná plocha:
74 m²
Zastavěná plocha:
2 352 m²
Plyn:
Plynovod
Umístění objektu:
Klidná část obce
Voda:
Dálkový rozvod
Vybaveno:
Ano
Výtah:
Ano
Energetická náročnost budovy:
G