Translate with 
MENU ZAVŘÍT

Prodej bytu 3+1 v osobním vlastnictví 55 m², Praha 4 - Chodov (ID 352-NP00133)

ulice Křejpského, Praha 4 – Chodov mapa

7 500 000 Kč ( za nemovitost)
CÚsporná

1x
3x
55 m2
11/15
Exkluzivně

Byt 3+1/L – Křejpského 1531, Praha 11 - Chodov

Exkluzivně Vám nabízíme ke koupi světlý byt v osobním vlastnictví o dispozici 3+1 v ulici Křejpského, Praha – Chodov.
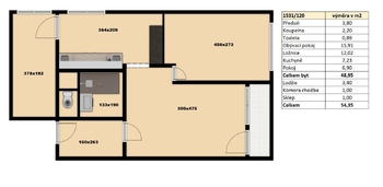
Celková užitná plocha činí 54,5 m² – byt 49 m², lodžie 3,5 m², komora na patře 1 m² a sklep 1 m².
Byt má velmi praktickou dispozici. V chodbě je dostatek prostoru pro vestavěnou skříň. Z obývacího pokoje s klimatizací je vstup na lodžii o výměře 3,5 m². Kuchyně s oknem disponuje prostornou kuchyňskou linkou. Dva světlé pokoje mají samostatný vstup.V koupelně se nachází prostorný sprchový kout a umyvadlo, toaleta je samostatná.
K bytu náleží komora na stejném patře a dále sklepní kóje v posledním patře domu.
Byt je v dobrém stavu a je připraven k okamžitému nastěhování. Rekonstrukce proběhla v roce 2018. Vytápění i ohřev vody jsou centrální.
Dům je zateplený, k dispozici jsou dva výtahy a nepřetržitá ostraha, což zajišťuje bezpečné a klidné bydlení.
Lokalita patří mezi velmi vyhledávané. V pěší vzdálenosti se nachází stanice metra Opatov, obchodní centrum Opatov, Billa, Lidl, několik mateřských škol, základní škola, gymnázium i Waldorfské lyceum. Nechybí ani dětská hřiště, restaurace a kavárny.
Nedaleko domu se nachází Centrální park, ideální místo pro procházky, sport i odpočinek. Park nabízí relaxační zóny, dětská hřiště i cyklostezky.
Parkování je možné přímo před domem, k dispozici je také hlídané parkoviště.
V případě více zájemců si prodávající vyhrazuje právo vybrat nejvýhodnější nabídku.
Těším se na setkání s Vámi na prohlídce. Prodávající si vyhrazuje právo vybrat kupujícího na základě jím zvolených kritérií.
Cena:
7 500 000 CZK / za nemovitost
Poznámka k ceně:
Upozornění:
Prodávající si vyhrazuje právo vybrat kupujícího na základě jím zvolených kritérií.
RX finance

Spočítejte si splátku hypotéky

Na kolik vás vyjde pořízení vlastního bydlení? Zadejte pár informací do naší hypoteční kalkulačky a hned si prohlédněte výsledek.

Kupní cena nemovitosti

7 500 000 Kč

Výše hypotéky

Doba splácení

Vypočítaná měsíční splátka

Úroková sazba 3.6%

260 990 Kč

Hypotéku zařídíme za vás

Ušetřete svůj čas i nervy. Naši makléři zařídí veškeré papírování a dovedou vás až k úspěšnému podpisu smlouvy v bance.

Nechte nám kontakt, náš makléř se v pracovní dny ozve do 24 hodin

* – toto pole je nutné vyplnit
Miroslava Popelková
RE/MAX Ambassador
Cíglerova/metro Rajská zahrada
Praha 9, 19800
Česká republika
Tel. na makléře: +420 776 249 292
Tel. do kanceláře: +420 777 557 700
E-mail: miroslava.popelkova@re-max.cz

Potřebujete poradit/máte zájem o prohlídku?

* – toto pole je nutné vyplnit

Podrobné informace

Číslo zakázky:
ID 352-NP00133
Dispozice:
3+1
Číslo podlaží:
11
Počet podlaží v objektu:
15
Podlahová plocha:
55 m²
Druh objektu:
Panelová
Stav objektu:
Velmi dobrý
Vlastnictví:
Osobní
Typ nemovitosti:
Byty
Charakter okolní zástavby:
Obchodní a obytná
K nastěhování:
12. 3. 2026
Odpad:
Kanalizace
Užitná plocha:
49 m²
Zastavěná plocha:
718 m²
Voda:
Dálkový rozvod
Výtah:
Ano
Energetická náročnost budovy:
C