Translate with 
MENU ZAVŘÍT

Prodej bytu 2+1 v osobním vlastnictví 55 m², Brno (ID 077-NP07000)

ulice Zemědělská, Brno – městská část Brno-sever mapa

6 300 000 Kč ( za nemovitost)
BVelmi
úsporná

1x
2x
55 m2
2/4
Exkluzivně

Byt 2+1, 55 m2 v žádané lokalitě Brno – Černá Pole

Nabízíme byt 2+1 na ulici Zemědělská v jedné z nejoblíbenějších částí Brna – Černá Pole.

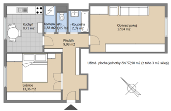
Byt o celkové užitné ploše 57,9 m² včetně sklepa se nachází ve 2. nadzemním podlaží cihlového domu. Dům je bez výtahu, ale 2.nadzemní podlaží není tak vysoko.

Dispozice je prakticky řešená:
• obývací pokoj 17,8 m²
• ložnice 13,4 m²
• samostatná kuchyň 8,7 m²
• prostorná předsíň 10 m²
• komora/šatna, 1,5 m2
• koupelna 2,4 m2
• samostatné WC 1,1 m2
• K bytu náleží sklepní kóje 3 m²

Zálohy na bydlení pro dvě osoby činí 5 744,- Kč měsíčně. (zahrnuje vytápění, vodné- stočné, ohřev vody, správu budovy,
úklid, společné energie, fond oprav).

Byt je v původním, ale udržovaném stavu, elektřina v hliníku.
• V obou pokojích a předsíni oceníte masivní dřevěné parkety v bezvadném stavu.
• Vytápění i ohřev vody jsou centrální, vaří se i peče na plynu.
• K dispozici je také prostorná sušárna 27 m² a kolárna 22,4 m².

Velkým benefitem je uzavřený dvůr pouze pro rezidenty,
s travnatou plochou a dětským hřištěm - ideální místo pro odpočinek i bezpečné zázemí pro děti.

Dům prošel postupnou revitalizací:
zateplení, fasáda, plastová okna, instalace bezpečnostních vchodových dveří,
rozvody a další modernizace zajišťující komfortní a bezproblémové bydlení.
Skvělá lokalita s výbornou dostupností do centra a kompletní občanskou vybaveností v okolí.

Ideální volba pro vlastní bydlení i investici.
Pro více informací nebo prohlídku mě neváhejte kontaktovat.
Prodávající si vyhrazuje právo vybrat kupujícího na základě jím zvolených kritérií. Prodávající si vyhrazuje právo vybrat kupujícího na základě jím zvolených kritérií.
Cena:
6 300 000 CZK / za nemovitost
Poznámka k ceně:
Cena je konečná včetně veškerých poplatků.
Upozornění:
Prodávající si vyhrazuje právo vybrat kupujícího na základě jím zvolených kritérií.
RX finance

Spočítejte si splátku hypotéky

Na kolik vás vyjde pořízení vlastního bydlení? Zadejte pár informací do naší hypoteční kalkulačky a hned si prohlédněte výsledek.

Kupní cena nemovitosti

6 300 000 Kč

Výše hypotéky

Doba splácení

Vypočítaná měsíční splátka

Úroková sazba 3.6%

260 990 Kč

Hypotéku zařídíme za vás

Ušetřete svůj čas i nervy. Naši makléři zařídí veškeré papírování a dovedou vás až k úspěšnému podpisu smlouvy v bance.

Nechte nám kontakt, náš makléř se v pracovní dny ozve do 24 hodin

* – toto pole je nutné vyplnit
Jan Klíma
RE/MAX Pro
Blatného 3
Brno, 61600
Česká republika
Tel. na makléře: +420 736 488 686
Tel. do kanceláře: +420 732 299 929
E-mail: jan.klima@re-max.cz

Potřebujete poradit/máte zájem o prohlídku?

* – toto pole je nutné vyplnit

Podrobné informace

Číslo zakázky:
ID 077-NP07000
Dispozice:
2+1
Číslo podlaží:
2
Počet podlaží v objektu:
4
Podlahová plocha:
55 m²
Druh objektu:
Smíšená
Stav objektu:
Velmi dobrý
Vlastnictví:
Osobní
Typ nemovitosti:
Byty
Charakter okolní zástavby:
Obytná
K nastěhování:
1. 6. 2026
Doprava:
Silnice, MHD, Autobus
Elektřina:
230 V
Odpad:
Kanalizace
Užitná plocha:
55 m²
Plocha zahrady:
1 658 m²
Zastavěná plocha:
946 m²
Plyn:
Plynovod
Umístění objektu:
Klidná část obce
Voda:
Dálkový rozvod
Vybaveno:
Ano
Energetická náročnost budovy:
B
Měrná vypočtená roční spotřeba energie v kWh/m²/rok:
4 193