Translate with 
MENU ZAVŘÍT

Prodej bytu 4+kk v osobním vlastnictví 73 m², Praha 5 - Stodůlky (ID 218-NP07016)

ulice Neustupného, Praha 5 – Stodůlky mapa

10 854 000 Kč ( za nemovitost)
BVelmi
úsporná

kk
4x
83 m2
10/12
Exkluzivně Rezervace

Výjimečný byt 4+kk po kompletní architektonické rekonstrukci – Neustupného, Praha - Stodůlky

***PROHLÍDKY POZASTAVENY - jednání s vážnými zájemci, aukce***

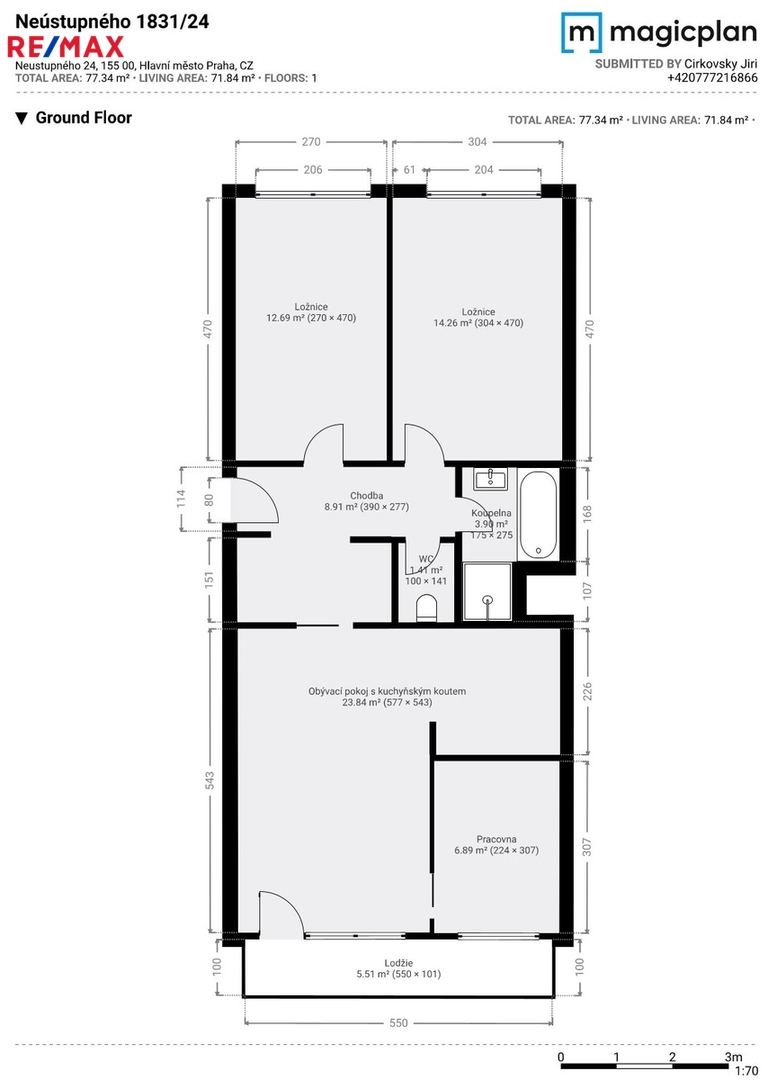
Nabízíme k prodeji zcela unikátní byt 4+kk o celkové ploše 83 m² (včetně lodžie a sklepa) v ulici Neustupného 1831/24, Praha 13 – Stodůlky, jen pár minut chůze od metra B – Luka. Byt byl právě dokončen po mimořádně kvalitní a kompletní rekonstrukci (2025–2026), která svým rozsahem odpovídá novostavbě – zůstaly pouze obvodové stěny a celý byt byl znovu vybudován podle architektonického projektu studia Čtyři stěny s.r.o.. Výsledkem je moderní, nadčasový a velmi kvalitně provedený interiér.

Byt se nachází v 10. nadzemním podlaží a nabízí příjemný otevřený výhled do okolí. Podlahová plocha bytu činí 73 m², k bytu dále náleží zasklená lodžie 7 m² a sklep 3 m² (prakticky umístěný o patro níže v 9. NP). Byt je v osobním vlastnictví a je ihned připraven k nastěhování.

Rekonstrukce byla realizována s důrazem na kvalitu, funkčnost a design. Veškeré vybavení je vyrobeno na míru dle architektonické studie – kuchyňská linka, vestavné skříně i úložné prostory.

Bytový dům je po kompletní revitalizaci a je ve velmi dobrém technickém stavu. Energetická náročnost budovy je velmi dobrá – třída B.

Hospodaření domu je stabilní – SVJ má na účtu přibližně 3,6 mil. Kč a ve fondu oprav více než 3,66 mil. Kč, což představuje solidní finanční rezervu pro další správu domu.

Měsíční náklady:
služby vč. fondu oprav na 1 osobu: 3 756 Kč
z toho fond oprav: 1 154 Kč
elektřina: dle vlastní spotřeby

Velkou výhodou je výborná dopravní dostupnost – metro B Luka je jen několik minut chůze, centrum Prahy je dostupné přibližně za 20 minut. V bezprostředním okolí se nachází kompletní občanská vybavenost – obchody, restaurace, školy, školky, služby i zdravotní péče.

Lokalita je zároveň velmi příjemná pro každodenní život – v okolí je mnoho parků, dětských hřišť a míst pro sport či procházky. Byt je proto ideální jak pro rodinné bydlení, tak jako investice k pronájmu.

Hlavní výhody bytu:
dispozice 4+kk, celková plocha 83 m²
podlahová plocha bytu 73 m²
10. nadzemní podlaží s hezkým výhledem
zasklená lodžie 7 m²
sklep 3 m² (o patro níže – 9. NP)
kompletní rekonstrukce 2025–2026 na úrovni novostavby
architektonický projekt Čtyři stěny s.r.o.
vybavení vyrobené na míru
metro B v pěší vzdálenosti
dům po kompletní revitalizaci
vhodné pro rodinu i investici
Energetická náročnost "B" Prodávající si vyhrazuje právo vybrat kupujícího na základě jím zvolených kritérií.
Cena:
10 854 000 CZK / Rezervováno
Poznámka k ceně:
Včetně kompletních právních služeb, advokátní úschovy i provize RK.
RX finance

Spočítejte si splátku hypotéky

Na kolik vás vyjde pořízení vlastního bydlení? Zadejte pár informací do naší hypoteční kalkulačky a hned si prohlédněte výsledek.

Kupní cena nemovitosti

10 854 000 Kč

Výše hypotéky

Doba splácení

Vypočítaná měsíční splátka

Úroková sazba 3.6%

260 990 Kč

Hypotéku zařídíme za vás

Ušetřete svůj čas i nervy. Naši makléři zařídí veškeré papírování a dovedou vás až k úspěšnému podpisu smlouvy v bance.

Nechte nám kontakt, náš makléř se v pracovní dny ozve do 24 hodin

* – toto pole je nutné vyplnit
Lubomír Polášek
REMAX Anděl
Ostrovského 253/3
Praha 5 - Smíchov, 15000
Česká republika
Tel. na makléře: +420 725 293 031
Tel. do kanceláře: +420 725 293 030
E-mail: lubomir.polasek@re-max.cz

Potřebujete poradit/máte zájem o prohlídku?

* – toto pole je nutné vyplnit

Podrobné informace

Číslo zakázky:
ID 218-NP07016
Dispozice:
4+kk
Číslo podlaží:
10
Počet podlaží v objektu:
12
Užitná plocha:
73 m²
Druh objektu:
Panelová
Stav objektu:
Po rekonstrukci
Vlastnictví:
Osobní
Typ nemovitosti:
Byty
Charakter okolní zástavby:
Obytná
K nastěhování:
1. 4. 2026
Doprava:
Vlak, Dálnice, Silnice, MHD, Autobus
Elektřina:
230 V
Odpad:
Kanalizace
Podlahová plocha:
83 m²
Zastavěná plocha:
842 m²
Počet podlaží pod zemí:
1
Telekomunikace:
Internet
Umístění objektu:
Klidná část obce
Voda:
Dálkový rozvod
Výtah:
Ano
Energetická náročnost budovy:
B
Měrná vypočtená roční spotřeba energie v kWh/m²/rok:
57