Translate with 
MENU ZAVŘÍT

Pronájem kancelářských prostor 91 m², Praha 9 - Vysočany (ID 320-NP00279)

ulice Pechmanových, Praha 9 – Vysočany mapa

41 000 Kč ( za měsíc)
BVelmi
úsporná

91 m2
Exkluzivně

Pronájem kancelářských prostor 91 m² s terasou a zahradou 51 m² + 2 garážová stání + sklep

V exkluzivním zastoupení nabízíme k dlouhodobému pronájmu moderní kancelářské prostory o ploše 91 m² s terasou a soukromou předzahrádkou (51 m²), situované v přízemí novostavby v ulici Pechmanových, Praha 9 – Vysočany, v oblíbené čtvrti Emila Kolbena.

Velkou předností nabízených kanceláří je prostorná terasa a krásně upravená předzahrádka o ploše 51 m², která nabízí příjemné zázemí pro zaměstnance nebo možnost neformálních pracovních setkání. Zahrada je osazena trávníkem, okrasnými keři a vybavena automatickou závlahou.
K prostoru náleží také dvě nadstandardně velká garážová stání (24,5 m² a 28,7 m²) a prostorný sklep o velikosti 12,1 m², vhodný například jako archiv nebo sklad.

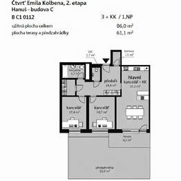
DISPOZICE PROSTOR
Prostory nabízejí praktické členění:
- vstupní hala / recepce (14,8 m²)
- hlavní kancelář / open space (31,2 m²) se vstupem na terasu (9,2 m²) a předzahrádku (51,9 m²)
- samostatná kancelář / jednací místnost (14,7 m²)
- další kancelář / pracovna (17,4 m²)
- koupelna (4,7 m²)
- samostatné WC (1,7 m²)
- serverovna (1,5 m²)
- všechny místnosti jsou přístupné ze vstupní haly

HOTOVÉ KANCELÁŘE / TECHNICKÉ PARAMETRY:
Jedná se o hotovou a vybavenou kancelář, což může budoucí nájemce ocenit zejména z hlediska nižších počátečních nákladů.
Součástí nájmu je kvalitní a praktický kancelářský nábytek: celkem 8 - 10 pracovních míst
V prostoru kanceláře je strukturovaná datová kabeláž a optické internetové připojení o rychlosti až 1 Gb/s s pevnou IP adresou, které je vhodné i pro náročný firemní provoz.
Pro nadšence do cyklistiky je v domě k dispozici kolárna se sprchou pro kola – ideální zázemí pro ty, kteří preferují zdravé dojíždění do práce na kole.
Prostory budou před předáním novému nájemci čerstvě vymalovány na bílo, což poskytuje ideální neutrální základ pro vytvoření vlastního profesionálního brandingu a přizpůsobení interiéru vizuální identitě společnosti.

KANCELÁŘ – BOUTIQUE OFFICE může být ideální například pro:
- rodinné firmy
- architektonické nebo designérské studio
- poradenské a konzultační společnosti
- marketingové a kreativní agentury
- IT firmy nebo startupy

LOKALITA – ČTVRŤ EMILA KOLBENA
Vysočany patří mezi dynamicky se rozvíjející části Prahy a čtvrť Emila Kolbena nabízí moderní městské prostředí s výbornou dopravní dostupností.

V docházkové vzdálenosti se nachází:
- metro B - Kolbenova
- park Zahrádky a cyklostezky podél Rokytky
- nákupní centra Fénix Vysočanská a Galerie Harfa
- restaurace, kavárny, fitness centra a další služby

Lokalita nabízí výbornou dostupnost do centra Prahy a zároveň klidné prostředí vhodné pro menší společnosti nebo klientské kanceláře.

PODMÍNKY NÁJEMNÍ SMLOUVY:
Měsíční nájem: 41.000,- Kč
Poplatky: 4.770,- Kč
Elektřina: dle potřeb kanceláře / převedena na budoucího nájemce
První garážové stání: 2.000,- Kč / měsíc
Druhé garážové stání: 2.000,- Kč / měsíc
Internet není součástí nájemní smlouvy

Těším se na Vás na osobní prohlídce. Pronajímající si vyhrazuje právo vybrat nájemce na základě jím zvolených kritérií.
Cena:
41 000 CZK / za měsíc
Poznámka k ceně:
Upozornění:
Pronajímající si vyhrazuje právo vybrat nájemce na základě jím zvolených kritérií.
Mgr. Marie Gűtlová
RE/MAX Welcome Home
Zenklova 2245/29
Praha 8 - Libeň, 18000
Česká republika
Tel. na makléře: +420 724 670 753
Tel. do kanceláře: +420 602 400 024
E-mail: marie.gutlova@re-max.cz

Potřebujete poradit/máte zájem o prohlídku?

* – toto pole je nutné vyplnit

Podrobné informace

Číslo zakázky:
ID 320-NP00279
Typ nemovitosti:
Komerční prostory
Druh prostor:
Kanceláře
Číslo podlaží:
1
Počet podlaží v objektu:
15
Plocha kanceláří:
91 m²
Druh objektu:
Cihlová
Stav objektu:
Velmi dobrý
Bezbariérový byt:
Ano
Charakter okolní zástavby:
Obchodní a obytná
K nastěhování:
1. 6. 2026
Garáž:
Ano
Odpad:
Kanalizace
Celková plocha:
91 m²
Plocha zahrady:
51 m²
Zastavěná plocha:
91 m²
Plyn:
Plynovod
Počet kanceláří:
3
Počet podlaží pod zemí:
2
Telekomunikace:
Internet
Typ domu:
Přízemní
Umístění objektu:
Centrum obce
Vybavení kanceláří:
Ano
Vybaveno:
Ano
Výtah:
Ano
Energetická náročnost budovy:
B