Translate with 
MENU ZAVŘÍT

Prodej bytu 3+1 v osobním vlastnictví 68 m², Mělník (ID 201-NP03377)

ulice Studentská, Mělník mapa

5 690 000 Kč ( za nemovitost)
GMimořádně
nehospodárná

1x
3x
73 m2
2/4
Exkluzivně

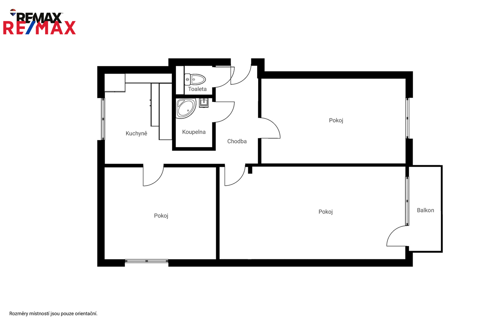
Světlý byt 3+1 s balkonem v klidné ulici nedaleko centra Mělníka

Nabízíme k prodeji světlý byt o dispozici 3+1 a podlahové ploše 67,8 m², který se nachází ve 2. nadzemním podlaží udržovaného domu ze 60. let v klidné ulici Studentská, nedaleko centra Mělníka.

Byt působí velmi příjemným a vzdušným dojmem, nabízí dostatek denního světla a praktickou dispozici se třemi samostatnými pokoji. Obývací pokoj se vstupem na balkon a jeden další pokoj jsou orientovány na jihovýchod, třetí pokoj na jihozápad. Kuchyně je orientována do ulice na severozápad.

Interiér bytu prošel rekonstrukcí přibližně před 10 lety, včetně koupelny, samostatného WC a rozvodů elektřiny. Kuchyň byla také modernizována. V obytných místnostech jsou původní dřevěné parkety ve vzoru rybí kosti, které je vhodné renovovat, čímž lze dále zvýšit celkový standard a styl bydlení.

Byt dále disponuje plastovými okny s dvojskly a náleží k němu sklep o velikosti cca 3 m².

Dům ze 60. let je zateplený a udržovaný. Byt se nachází ve 2. patře ze 4 bez výtahu.

Celkové měsíční náklady na bydlení jsou cca 6.400 Kč včetně fondu oprav a elektřiny v bytě.

Lokalita nabízí klidné bydlení s dobrou dostupností do centra města a kompletní občanskou vybaveností v docházkové vzdálenosti. V okolí je dostatek zeleně i prostoru pro volnočasové aktivity.

Byt je vhodný jak pro vlastní bydlení, tak i jako investice. V dané lokalitě se podobné byty o velikosti 3+1 dlouhodobě pronajímají přibližně kolem 17 000 Kč měsíčně (bez energií), v závislosti na stavu a vybavení.

V případě zájmu o více informací nebo domluvení prohlídky mě neváhejte kontaktovat. Prodávající si vyhrazuje právo vybrat kupujícího na základě jím zvolených kritérií.
Cena:
5 690 000 CZK / za nemovitost
RX finance

Spočítejte si splátku hypotéky

Na kolik vás vyjde pořízení vlastního bydlení? Zadejte pár informací do naší hypoteční kalkulačky a hned si prohlédněte výsledek.

Kupní cena nemovitosti

5 690 000 Kč

Výše hypotéky

Doba splácení

Vypočítaná měsíční splátka

Úroková sazba 3.6%

260 990 Kč

Hypotéku zařídíme za vás

Ušetřete svůj čas i nervy. Naši makléři zařídí veškeré papírování a dovedou vás až k úspěšnému podpisu smlouvy v bance.

Nechte nám kontakt, náš makléř se v pracovní dny ozve do 24 hodin

* – toto pole je nutné vyplnit
Jan Halík
REMAX Atrium
Podolská 811/138
Praha 4 - Podolí, 14700
Česká republika
Tel. na makléře: +420 603 377 791
Tel. do kanceláře: +420 606 726 515
E-mail: jan.halik@re-max.cz

Potřebujete poradit/máte zájem o prohlídku?

* – toto pole je nutné vyplnit

Podrobné informace

Číslo zakázky:
ID 201-NP03377
Dispozice:
3+1
Číslo podlaží:
2
Počet podlaží v objektu:
4
Užitná plocha:
68 m²
Druh objektu:
Panelová
Stav objektu:
Dobrý
Vlastnictví:
Osobní
Typ nemovitosti:
Byty
Charakter okolní zástavby:
Obytná
Doprava:
Vlak, Dálnice, Silnice, MHD, Autobus
Elektřina:
230 V
Odpad:
Kanalizace
Ostatní rozvody:
Kabelová televize, Kabelové rozvody
Podlahová plocha:
73 m²
Plyn:
Plynovod
Telekomunikace:
Telefon, Internet
Umístění objektu:
Klidná část obce
Voda:
Dálkový rozvod
Energetická náročnost budovy:
G