Translate with 
MENU ZAVŘÍT

Prodej domu 199 m², Jílové u Prahy (ID 205-NP12653)

ulice K Rotlevu, Jílové u Prahy mapa

15 950 000 Kč ( za nemovitost)
BVelmi
úsporná

5+
199 m2
844 m2
3
Exkluzivně

Novostavba 2026, rodinný dům 5+kk (199 m2), 844 m2 pozemek

V CENĚ JIŽ ZAHRNUTO: podlahové krytiny, interiérové dveře, kompletní dokončení koupelen včetně obkladů, dlažby a sanity.

--------------------

Pokud hledáte prostornou novostavbu rodinného domu v klidné lokalitě nedaleko Prahy, osloví vás tato nabídka domu o dispozici 5+kk (s možností úpravy na 6+kk) a užitné ploše 199 m² v nové vilové zástavbě v Jílovém u Prahy.

Dům bude dokončen v letošním roce. Nachází se na vlastním pozemku o výměře 844 m² na konci slepé ulice a díky své poloze na kopci nabízí soukromí, klid i otevřený výhled na Jílové. Současně jde o poslední dům z komorního projektu čtyř rodinných domů v ulici K Rotlevu.

Stavba je provedena z tvárnic PORFIX – 300 mm se zateplením z polystyrenu EPS 200 mm. Dům splňuje energetickou třídu B a je vybaven tepelným čerpadlem vzduch–voda, což přispívá k úspornému provozu s předpokládanými měsíčními náklady do 3.000 Kč. Vytápění je řešeno tepelným čerpadlem se zálohou elektrického kotle.

Dům je napojen na elektřinu, obecní vodovod i kanalizaci.

Interiér je navržený prakticky s dostatkem prostoru pro rodinné bydlení. Dům nabízí pět prostorných obytných místností, dvě koupelny a garáž pro dvě auta. Velkoformátová okna přivádějí do interiéru dostatek denního světla, přičemž komfort v letních měsících mohou zajišťovat zabudované předokenní žaluzie na žádost klienta. Součástí domu je také příprava pro nabíjecí stanici na elektromobil, fotovoltaiku a příprava na videotelefon.

Velkou výhodou je i variabilita dispozice — současné řešení 5+kk umožňuje při úpravě dispozice vytvořit i plnohodnotné 6+kk. Dispoziční řešení domu:

1. Nadzemní podlaží (52 m²): garáž pro dva vozy (37 m²), vstupní hala se schodištěm (15 m²)

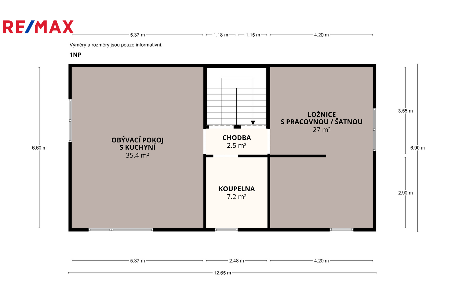
2. Nadzemní podlaží (72,2 m²): obývací pokoj s kuchyňským koutem (35,4 m²), chodba (2,5 m²), pokoj se šatnou / pracovna (27 m²), koupelna (7,2 m²)

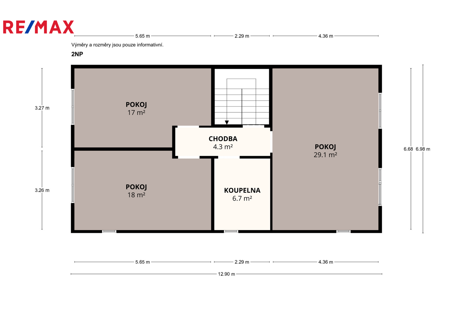
3. Nadzemní podlaží (75 m²): tři pokoje (29,1 m², 18 m² a 17 m²), koupelna (6,7 m²) a chodba (4,3 m²)

Budoucí majitel má zároveň možnost dokončení některých prvků interiéru podle vlastních preferencí. Vybrat si lze konkrétní podlahové krytiny, interiérové dveře i obklad a vybavení koupelen. Tyto položky jsou již zahrnuty v kupní ceně a budou realizovány v rámci předem stanoveného standardu.

Jílové u Prahy leží 20 km jižně od Prahy, v členité krajině na pravém břehu Sázavy. Lokalita je oblíbená pro kombinaci klidného bydlení, okolní přírody a skvělé dostupnosti do Prahy. Ve městě žije více než 5 000 obyvatel a k dispozici je kompletní občanská vybavenost.

Dopravní spojení zajišťuje přímá autobusová linka na metro C Budějovická s dojezdovou dobou 40 minut, nebo spojení do Modřan za 50 minut. Autem se na Pražský okruh dostanete za 15 minut. Další výhodou bude budoucí výstavba dálnice D3, díky níž se již zhruba 2 km od nemovitosti napojíte na dálnici a na Pražský okruh pohodlně dojedete přibližně za 8 minut.

V případě zájmu o více informací či prohlídku mě neváhejte kontaktovat.
Vojtěch Piruchta Prodávající si vyhrazuje právo vybrat kupujícího na základě jím zvolených kritérií.
Cena:
15 950 000 CZK / za nemovitost
Poznámka k ceně:
Upozornění:
Prodávající si vyhrazuje právo vybrat kupujícího na základě jím zvolených kritérií.
RX finance

Spočítejte si splátku hypotéky

Na kolik vás vyjde pořízení vlastního bydlení? Zadejte pár informací do naší hypoteční kalkulačky a hned si prohlédněte výsledek.

Kupní cena nemovitosti

15 950 000 Kč

Výše hypotéky

Doba splácení

Vypočítaná měsíční splátka

Úroková sazba 3.6%

260 990 Kč

Hypotéku zařídíme za vás

Ušetřete svůj čas i nervy. Naši makléři zařídí veškeré papírování a dovedou vás až k úspěšnému podpisu smlouvy v bance.

Nechte nám kontakt, náš makléř se v pracovní dny ozve do 24 hodin

* – toto pole je nutné vyplnit
Bc. Vojtěch Piruchta
RE/MAX Alfa
Spálená 97/29
Praha 1 - Nové Město, 11000
Česká republika
Tel. na makléře: +420 604 668 666
Tel. do kanceláře: +420 296 240 400
E-mail: vojtech.piruchta@re-max.cz

Potřebujete poradit/máte zájem o prohlídku?

* – toto pole je nutné vyplnit

Podrobné informace

Číslo zakázky:
ID 205-NP12653
Poloha objektu:
Samostatný
Počet podlaží v objektu:
3
Užitná plocha:
199 m²
Plocha parcely:
844 m²
Druh objektu:
Cihlová
Stav objektu:
Novostavba
Typ nemovitosti:
Domy a vily
Doprava:
Dálnice, Silnice, MHD, Autobus
Elektřina:
230 V, 400 V
Garáž:
Ano
Odpad:
Kanalizace
Typ domu:
Patrový
Umístění objektu:
Klidná část obce
Voda:
Dálkový rozvod
Energetická náročnost budovy:
B