Translate with 
MENU ZAVŘÍT

Prodej bytu 3+1 v osobním vlastnictví 76 m², Praha 4 - Modřany (ID 228-NP02450)

ulice Mazancova, Praha 4 – Modřany mapa

8 490 000 Kč ( za nemovitost)
DMéně
úsporná

1x
3x
84 m2
2/8
Exkluzivně

Prodej bytu 3+1 s lodžií, Praha 4 - Modřany

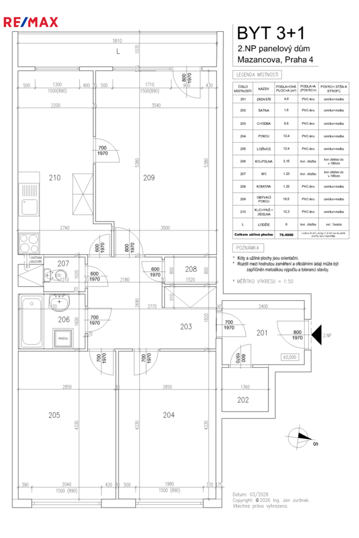
Dovoluji si vám exkluzivně nabídnout ke koupi prostorný a velmi dobře řešený byt o dispozici 3+1 v osobním vlastnictví, situovaný ve vyhledávané a klidné lokalitě pražských Modřan v ulici Mazancova. Bytová jednotka o celkové užitné ploše 76,4 m² se nachází ve 2. nadzemním podlaží revitalizovaného bytového domu s fungujícím SVJ. K bytu náleží příjemná lodžie o velikosti 6 m², která plynule rozšiřuje obytný prostor, a praktická, uzamykatelná sklepní kóje o rozloze cca 2 m² poskytující dostatek dodatečného úložného místa. Každodenní komfort a výbornou dostupnost zajišťuje výtah a dva vchody z protilehlých stran bytového domu. Do bytu je bezbariérový přístup.

Dispoziční řešení bytu je praktické a nabízí skvělý základ pro pohodlné rodinné bydlení. Nabízí se i nespočet dispozičních úprav odstraněním některých příček. Srdcem domova je velkorysý obývací pokoj s přímým vstupem na lodžii, na který navazuje samostatná kuchyně s dostatkem prostoru pro jídelní kout. Klidovou zónu tvoří dvě neprůchozí ložnice. Velkou výhodou tohoto uspořádání je množství úložných prostor přímo v interiéru, kde nechybí vstupní zádveří, samostatná šatna i komora. Byt se nachází v dobře udržovaném původním stavu, což novým majitelům otevírá jedinečnou možnost modernizace interiéru přesně podle vlastních představ. V poslední době proběhla rekonstrukce koupelny s vanou, přípravou pro pračku a samostatné toalety. Pro lepší představu o potenciálu tohoto prostoru jsme do prezentace zahrnuli vizualizace jednotlivých místností a půdorysný plánek s vizualizací nábytku a vybavení.

Modřany představují ideální spojení klidného bydlení s vynikající dostupností přírody a plnou městskou infrastrukturou. Ulice Mazancova těží z naprosto nadstandardní občanské vybavenosti, kde máte vše potřebné doslova na dosah ruky. Přímo v sousedství domu se nachází park s dětským hřištěm i vstup do lesa. V bezprostřední blízkosti pak najdete rozsáhlou obchodní zónu s Kauflandem, supermarkety Billa i Lidl, drogerii i prodejnou Pepco. V docházkové vzdálenosti nechybí ani prodejna OBI pro kutily, čerpací stanice nebo restaurace McDonald's.

Místo je naprosto perfektní pro rodiny s dětmi. Jen několik málo minut chůze od domu se nachází Základní škola prof. Švejcara a v těsném sousedství také Mateřská škola Jahůdka, což zaručuje bezpečné a rychlé ranní cesty. Skvělá je i dopravní obslužnost lokality. Kousek od domu máte k dispozici autobusové zastávky Labe a Družná, které zajišťují rychlé a plynulé spojení k metru i tramvaji a dále do centra Prahy. Modřany jsou navíc vyhlášené svými možnostmi pro aktivní odpočinek, ať už se vydáte na procházku do nedaleké Modřanské rokle, nebo vyrazíte na kolo či brusle na oblíbenou cyklostezku podél Vltavy.

Tato nemovitost představuje vynikající příležitost pro bezpečné rodinné bydlení s veškerým myslitelným komfortem v bezprostředním okolí.

Pokud Vás byt zaujal, neváhejte mě kontaktovat. S radostí odpovím na Vaše dotazy ohledně nemovitosti, a představím byt osobně. Prodávající si vyhrazuje právo vybrat kupujícího na základě jím zvolených kritérií.
Cena:
8 490 000 CZK / za nemovitost
Poznámka k ceně:
Včetně právního servisu i provize.
RX finance

Spočítejte si splátku hypotéky

Na kolik vás vyjde pořízení vlastního bydlení? Zadejte pár informací do naší hypoteční kalkulačky a hned si prohlédněte výsledek.

Kupní cena nemovitosti

8 490 000 Kč

Výše hypotéky

Doba splácení

Vypočítaná měsíční splátka

Úroková sazba 3.6%

260 990 Kč

Hypotéku zařídíme za vás

Ušetřete svůj čas i nervy. Naši makléři zařídí veškeré papírování a dovedou vás až k úspěšnému podpisu smlouvy v bance.

Nechte nám kontakt, náš makléř se v pracovní dny ozve do 24 hodin

* – toto pole je nutné vyplnit
Ing. Jan Juránek
REMAX Ace
Jabloňová 2136/11
Praha 10 - Záběhlice, 10600
Česká republika
Tel. na makléře: +420 733 118 291
Tel. do kanceláře: +420 602 202 452
E-mail: jan.juranek@re-max.cz

Potřebujete poradit/máte zájem o prohlídku?

* – toto pole je nutné vyplnit

Podrobné informace

Číslo zakázky:
ID 228-NP02450
Dispozice:
3+1
Číslo podlaží:
2
Počet podlaží v objektu:
8
Užitná plocha:
76 m²
Druh objektu:
Panelová
Stav objektu:
Před rekonstrukcí
Vlastnictví:
Osobní
Typ nemovitosti:
Byty
Bezbariérový byt:
Ano
Charakter okolní zástavby:
Obytná
K nastěhování:
25. 3. 2026
Doprava:
Silnice, MHD, Autobus
Elektřina:
230 V
Odpad:
Kanalizace
Podlahová plocha:
84 m²
Zastavěná plocha:
265 m²
Plyn:
Plynovod
Počet podlaží pod zemí:
1
Umístění objektu:
Klidná část obce
Voda:
Dálkový rozvod
Výtah:
Ano
Energetická náročnost budovy:
D