Translate with 
MENU ZAVŘÍT

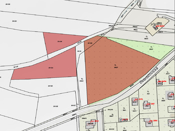
Prodej pozemku 11526 m², Úvaly (ID 205-NP12737)

Úvaly – část obce Úvaly u Prahy mapa

7 115 000 Kč ( za nemovitost)

11526 m2
Exkluzivně Rezervace

Prodej souboru pozemků – Úvaly u Prahy

Nabízíme k prodeji atraktivní soubor pozemků v oblíbené lokalitě Úvaly u Prahy, situovaný na okraji zástavby rodinných domů s příjemným okolím a dobrou dostupností do hlavního města.
Specifikace pozemků:
parc. č. 3663/7 – 7 163 m² (zahrada)
parc. č. 3511/24 – 2 819 m² (orná půda)
parc. č. 3511/26 – 1 260 m² (orná půda)
parc. č. 3511/29 – 284 m² (orná půda)
Celková výměra: 11 526 m²

Pozemek vedený jako zahrada je vhodný zejména k pěstování zeleniny, květin či dalších plodin, případně může sloužit jako okrasná zahrada s travnatými plochami, stromy a keři.

Orná půda je určena k zemědělskému využití – produkci plodin, případně může být dočasně zatravněna nebo ponechána ladem v rámci hospodaření.

Další informace:
K pozemkům je vyhotoven projekt na stavbu sjezdu, do kterého je možné nahlédnout. Navržený sjezd představuje zpevněnou dopravní plochu sloužící k vjezdu a výjezdu vozidel za účelem dopravní obsluhy připojovaného pozemku. Jedná se o stavbu jednoduchého technického charakteru, bez architektonických nároků.

Součástí nabídky je také vydané stavební povolení na studnu.

Hlavní výhody:
velkorysá výměra a souvislý celek pozemků
klidná lokalita na okraji obce
dobrá dostupnost do Prahy (vlakové spojení)
k dispozici projekt sjezdu
potenciál do budoucna

Pozemky představují zajímavou příležitost jak pro soukromé využití, tak jako dlouhodobou investici.
Pro více informací nebo domluvení prohlídky mě neváhejte kontaktovat.
Prodávající si vyhrazuje právo vybrat kupujícího na základě jím zvolených kritérií.
Cena:
7 115 000 CZK / Rezervováno
Poznámka k ceně:
Cena zahrnuje právní servis, advokátní úschovu i provizi realitní kanceláře.
RX finance

Spočítejte si splátku hypotéky

Na kolik vás vyjde pořízení vlastního bydlení? Zadejte pár informací do naší hypoteční kalkulačky a hned si prohlédněte výsledek.

Kupní cena nemovitosti

7 115 000 Kč

Výše hypotéky

Doba splácení

Vypočítaná měsíční splátka

Úroková sazba 3.6%

260 990 Kč

Hypotéku zařídíme za vás

Ušetřete svůj čas i nervy. Naši makléři zařídí veškeré papírování a dovedou vás až k úspěšnému podpisu smlouvy v bance.

Nechte nám kontakt, náš makléř se v pracovní dny ozve do 24 hodin

* – toto pole je nutné vyplnit
Ivana Hilton
REMAX Alfa
Spálená 97/29
Praha 1 - Nové Město, 11000
Česká republika
Tel. na makléře: +420 777 448 880
Tel. do kanceláře: +420 296 240 400
E-mail: ivana.hilton@re-max.cz

Potřebujete poradit/máte zájem o prohlídku?

* – toto pole je nutné vyplnit

Podrobné informace

Číslo zakázky:
ID 205-NP12737
Druh pozemku:
Zahrada
Celková plocha:
11 526 m²
Typ nemovitosti:
Pozemky
Umístění objektu:
Klidná část obce