Translate with 
MENU ZAVŘÍT

Prodej ubytovacího zařízení 435 m², Hřensko (ID 205-NP12758)

Hřensko, okres Děčín mapa

19 875 000 Kč ( za nemovitost)

435 m2
561 m2
194 m2
4
Exkluzivně

Prodej penzionu 435 m², Hřensko

Hřensko – vstupní brána do Národního parku České Švýcarsko.
Malebná pohraniční obec zaměřená na cestovní ruch na soutoku Labe a Kamenice, vyhledávaná turisty z celé Evropy. Místo s nezaměnitelnou atmosférou v každém ročním období.

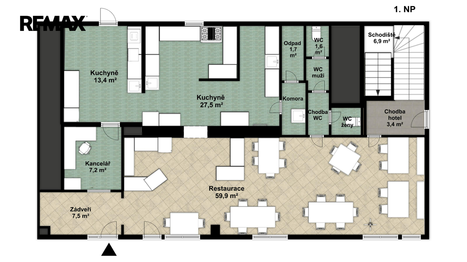
Ve výhradním zastoupení nabízím ke koupi zavedený penzion s restaurací, který již desítky let úspěšně slouží návštěvníkům národního parku. Plně vybavený čtyřpodlažní objekt s prostorným půdním prostorem je připravený k okamžitému převzetí.

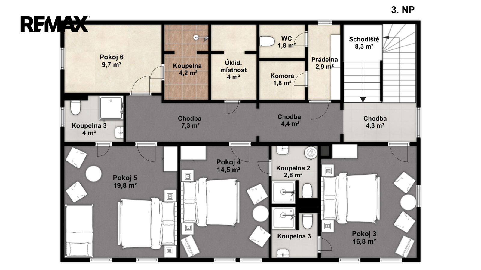
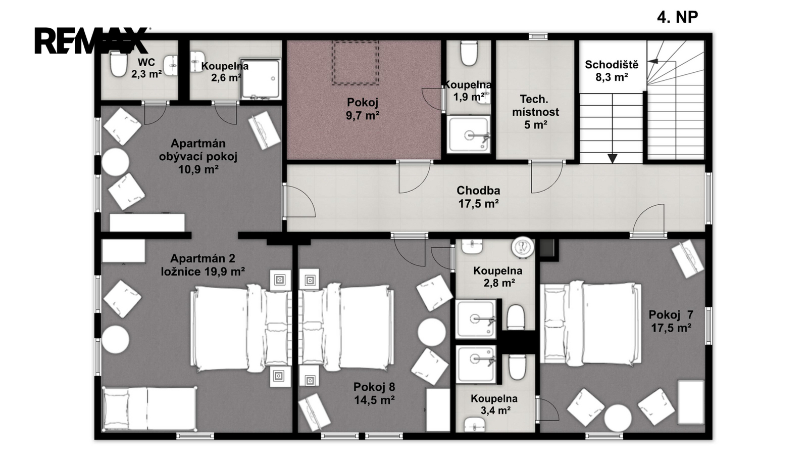
- Celkem 11 ubytovacích jednotek (vč. 2 apartmánů)
- Ubytovací kapacita: 27 osob
- Restaurace: 45 míst
- Předzahrádka: 24 míst + pergola
- 8 parkovacích stání

Výměry ploch:
Celková užitná plocha: 435 m²
Podlahová plocha: 556 m²
Zastavěná plocha: 139 m²
Celková velikost pozemku: 561 m²
Půda: 116 m²

Na pozemku se nachází vlastní parkoviště, technické zázemí pro údržbu, úschovna kol a sportovního vybavení a pergola pro hosty, které rozšiřují možnosti využití objektu a zvyšují komfort návštěvníků.

Kompletní fotodokumentace a veškeré podklady k nabídce jsou k dispozici na vyžádání.

Zaujal vás potenciál této nemovitosti? Neváhejte mě kontaktovat, nemovitost Vám rád osobně představím.
Prodávající si vyhrazuje právo vybrat kupujícího na základě jím zvolených kritérií. Prodávající si vyhrazuje právo vybrat kupujícího na základě jím zvolených kritérií.
Cena:
19 875 000 CZK / za nemovitost
Poznámka k ceně:
včetně právního a administrativního servisu
RX finance

Spočítejte si splátku hypotéky

Na kolik vás vyjde pořízení vlastního bydlení? Zadejte pár informací do naší hypoteční kalkulačky a hned si prohlédněte výsledek.

Kupní cena nemovitosti

19 875 000 Kč

Výše hypotéky

Doba splácení

Vypočítaná měsíční splátka

Úroková sazba 3.6%

260 990 Kč

Hypotéku zařídíme za vás

Ušetřete svůj čas i nervy. Naši makléři zařídí veškeré papírování a dovedou vás až k úspěšnému podpisu smlouvy v bance.

Nechte nám kontakt, náš makléř se v pracovní dny ozve do 24 hodin

* – toto pole je nutné vyplnit
Mgr. Jakub Olach
REMAX Alfa
Spálená 97/29
Praha 1 - Nové Město, 11000
Česká republika
Tel. na makléře: +420 776 307 562
Tel. do kanceláře: +420 296 240 400
E-mail: jakub.olach@re-max.cz

Potřebujete poradit/máte zájem o prohlídku?

* – toto pole je nutné vyplnit

Podrobné informace

Číslo zakázky:
ID 205-NP12758
Počet podlaží v objektu:
4
Užitná plocha:
435 m²
Plocha parcely:
561 m²
Druh objektu:
Cihlová
Stav objektu:
Velmi dobrý
Typ nemovitosti:
Hotely, penziony a restaurace
K nastěhování:
14. 4. 2026
Doprava:
Silnice, Autobus
Elektřina:
120 V, 230 V
Odpad:
Kanalizace
Celková plocha:
435 m²
Zastavěná plocha:
194 m²
Plyn:
Plynovod
Počet parkovacích míst:
8
Telekomunikace:
Internet
Typ domu:
Patrový
Umístění v chráněných lokalitách:
Ochranné pásmo
Voda:
Dálkový rozvod
Vybaveno:
Ano