Translate with 
MENU ZAVŘÍT

Prodej chaty / chalupy 93 m², Veselí nad Lužnicí (ID 205-NP12799)

Veselí nad Lužnicí, okres Tábor mapa

6 900 000 Kč ( za nemovitost)
GMimořádně
nehospodárná

3x
93 m2
654 m2
2
Exkluzivně

Rekreační dům 3+1/T Krkavec Veselí nad Lužnicí II.

Zděný rekreační dům u řeky Nežárky v CHKO Třeboňsko | klid, příroda a investiční potenciál
Dovoluji si Vám exkluzivně nabídnout ke koupi zděný rekreační dům, situovaný v jedinečné přírodní lokalitě CHKO Třeboňsko, nad řekou Nežárkou.
Jedná se o místo, které nabízí klid, soukromí a bezprostřední kontakt s přírodou, a zároveň představuje zajímavou příležitost jak pro vlastní rekreaci, tak i pro investiční využití.
Nemovitost je ve velmi dobrém technickém stavu a je připravena k okamžitému užívání bez nutnosti dalších investic.
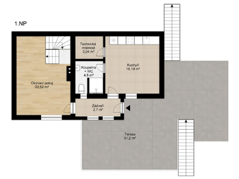
Dispozice domu nabízí v přízemí samostatnou kuchyni se základní výbavou spotřebičů, obývací pokoj, koupelnu se sprchovým koutem a toaletou, technickou místnost a zádveří. V podkroví se nachází hlavní ložnice a samostatný dětský pokoj. Jednotlivá podlaží jsou propojena schodištěm z ocelové konstrukce s dřevěnými stupni.
Venkovní část domu přirozeně navazuje na jeho charakter – k dispozici je prostorná bezúdržbová terasa ze sibiřského dubu s pergolou a příjemným posezením. Milovníci grilování ocení venkovní gril, nechybí ani dřevěný sklad pro uložení sezónních věcí a nářadí.
Bezprostřední blízkost řeky ocení zejména milovníci přírody, rybolovu a vodních sportů. V takovém prostředí si velmi rychle uvědomíte, proč lidé hledají únik z města právě do této části jižních Čech.
Dům je napojen na elektřinu, vody se odebírá ze dvou studní s dostatečnou kapacitou, odpad je řešen jímkou.
Vytápění je zajištěno elektrickým podlahovým topením, ohřev vody bojlerem.
Součástí prodeje je i kompletní vybavení, což umožňuje okamžité užívání či navázání na stávající provoz.
Nemovitost byla v minulosti úspěšně využívána ke krátkodobým pronájmům s plnou obsazeností v hlavní sezóně, což představuje zajímavý investiční potenciál pro budoucího vlastníka.
Lokalita si dlouhodobě díky CHKO zachovává svůj přírodní charakter, což z této nabídky činí nejen příjemné místo pro trávení volného času, ale i stabilní hodnotu do budoucna. V nedalekém Veselí nad Lužnicí je dostupná kompletní občanská vybavenost.
Budova je vedena jako objekt pro rodinnou rekreaci, a proto se na ni dle § 7a odst. 5 zákona č. 406/2000 Sb. nevztahuje povinnost zpracování průkazu energetické náročnosti budovy (PENB).
Přístup k nemovitosti je zajištěn vlastnickým právem k příjezdové komunikaci.
Koupi nemovitosti je možné financovat hypotečním úvěrem, s jehož vyřízením Vám rádi pomůžeme.
V případě zájmu mě neváhejte kontaktovat. Rád Vám tuto nemovitost osobně představím a domluvíme vhodný termín. Prodávající si vyhrazuje právo vybrat kupujícího na základě jím zvolených kritérií.
Cena:
6 900 000 CZK / za nemovitost
Poznámka k ceně:
vč. provize RK a kompletního právního servisu
RX finance

Spočítejte si splátku hypotéky

Na kolik vás vyjde pořízení vlastního bydlení? Zadejte pár informací do naší hypoteční kalkulačky a hned si prohlédněte výsledek.

Kupní cena nemovitosti

6 900 000 Kč

Výše hypotéky

Doba splácení

Vypočítaná měsíční splátka

Úroková sazba 3.6%

260 990 Kč

Hypotéku zařídíme za vás

Ušetřete svůj čas i nervy. Naši makléři zařídí veškeré papírování a dovedou vás až k úspěšnému podpisu smlouvy v bance.

Nechte nám kontakt, náš makléř se v pracovní dny ozve do 24 hodin

* – toto pole je nutné vyplnit
Vlastimil Raška
REMAX Alfa
Spálená 97/29
Praha 1 - Nové Město, 11000
Česká republika
Tel. na makléře: +420 733 691 145
Tel. do kanceláře: +420 296 240 400
E-mail: vlastimil.raska@re-max.cz

Potřebujete poradit/máte zájem o prohlídku?

* – toto pole je nutné vyplnit

Podrobné informace

Číslo zakázky:
ID 205-NP12799
Poloha objektu:
Samostatný
Počet podlaží v objektu:
2
Užitná plocha:
93 m²
Plocha parcely:
654 m²
Druh objektu:
Cihlová
Stav objektu:
Velmi dobrý
Typ nemovitosti:
Chaty a rekreační objekty
Charakter okolní zástavby:
Rekreační
K nastěhování:
1. 6. 2026
Elektřina:
230 V, 400 V
Celková plocha:
93 m²
Plocha zahrady:
557 m²
Zastavěná plocha:
97 m²
Typ domu:
Patrový
Umístění v chráněných lokalitách:
Ochranné pásmo
Vybaveno:
Ano
Energetická náročnost budovy:
G