Translate with 
MENU ZAVŘÍT

Prodej bytu 2+1 v osobním vlastnictví 52 m², Praha 3 - Žižkov (ID 218-NP07119)

ulice Lucemburská, Praha 3 – Žižkov mapa

7 400 000 Kč ( za nemovitost)
DMéně
úsporná

1x
2x
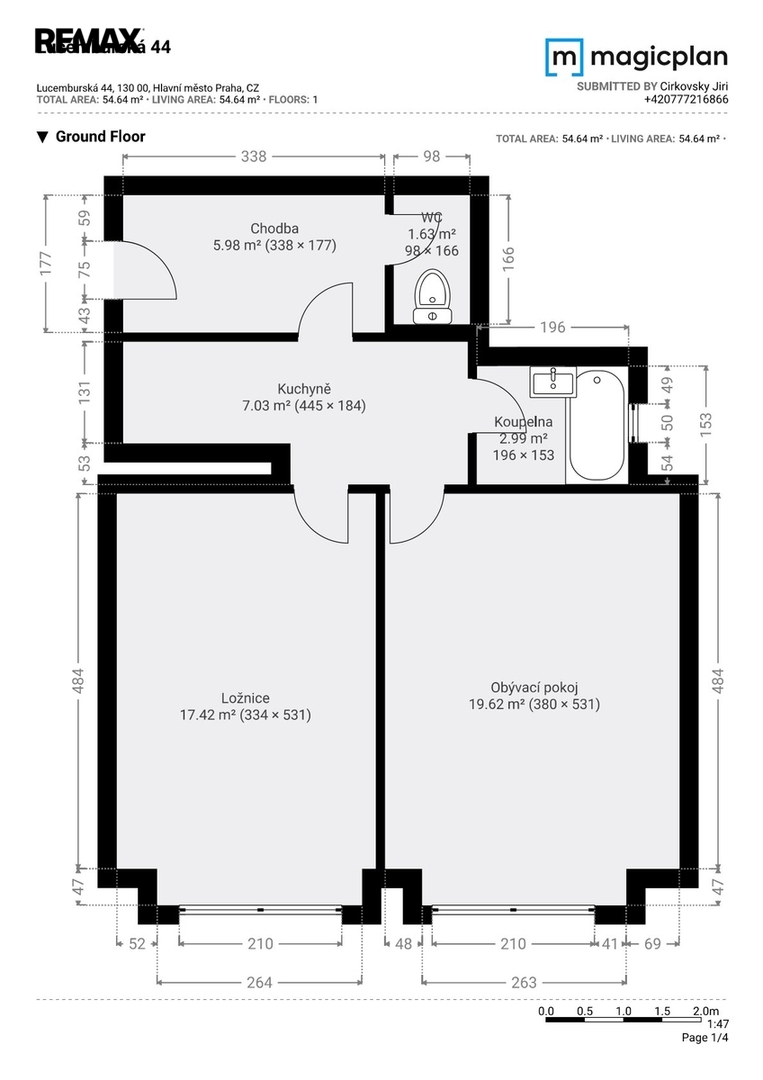
54 m2
1/7
Exkluzivně

Prodej bytu 2+1 k rekonstrukci 52 m², Lucemburská Praha 3 – Žižkov, METRO B

Nabízíme k prodeji byt 2+1 o velikosti 52 m² + sklep 2 m², v osobním vlastnictví, situovaný ve vyhledávané lokalitě Praha 3 – Žižkov, ulice Lucemburská.

Byt je v původním stavu – ideální příležitost pro rekonstrukci dle vlastních představ nebo jako investice s potenciálem zhodnocení.

Klíčové výhody:

skvělá dopravní dostupnost – tramvaj pár kroků od domu, rychlé spojení do centra
metro B (Florenc / Křižíkova) v docházkové vzdálenosti
kompletní občanská vybavenost v okolí – obchody, potraviny, restaurace, služby
oblíbená městská lokalita s vysokou poptávkou po nájmech

Dům a SVJ:

udržovaný bytový dům
v posledních letech proběhly investice (výtah, vodoměry, izolace)
SVJ bez zásadních plánovaných rekonstrukcí
velmi dobrá finanční kondice – ve fondu oprav cca 1,9 mil. Kč

Náklady:

3 191 Kč/měs. služby + 1 560 Kč fond oprav
elektřina a plyn dle spotřeby

Energetická náročnost: třída D
Prodávající si vyhrazuje právo vybrat kupujícího na základě jím zvolených kritérií.
Cena:
7 400 000 CZK / za nemovitost
Poznámka k ceně:
Včetně kopletních právních služeb vč. přepisu na katastru, včetně provize RK.
RX finance

Spočítejte si splátku hypotéky

Na kolik vás vyjde pořízení vlastního bydlení? Zadejte pár informací do naší hypoteční kalkulačky a hned si prohlédněte výsledek.

Kupní cena nemovitosti

7 400 000 Kč

Výše hypotéky

Doba splácení

Vypočítaná měsíční splátka

Úroková sazba 3.6%

260 990 Kč

Hypotéku zařídíme za vás

Ušetřete svůj čas i nervy. Naši makléři zařídí veškeré papírování a dovedou vás až k úspěšnému podpisu smlouvy v bance.

Nechte nám kontakt, náš makléř se v pracovní dny ozve do 24 hodin

* – toto pole je nutné vyplnit
Lubomír Polášek
REMAX Anděl
Ostrovského 253/3
Praha 5 - Smíchov, 15000
Česká republika
Tel. na makléře: +420 725 293 031
Tel. do kanceláře: +420 725 293 030
E-mail: lubomir.polasek@re-max.cz

Potřebujete poradit/máte zájem o prohlídku?

* – toto pole je nutné vyplnit

Podrobné informace

Číslo zakázky:
ID 218-NP07119
Dispozice:
2+1
Číslo podlaží:
1
Počet podlaží v objektu:
7
Užitná plocha:
52 m²
Druh objektu:
Smíšená
Stav objektu:
Před rekonstrukcí
Vlastnictví:
Osobní
Typ nemovitosti:
Byty
Charakter okolní zástavby:
Obytná
K nastěhování:
1. 5. 2026
Doprava:
Vlak, Dálnice, Silnice, MHD, Autobus
Elektřina:
230 V
Odpad:
Kanalizace
Podlahová plocha:
54 m²
Zastavěná plocha:
459 m²
Plyn:
Plynovod
Umístění objektu:
Centrum obce
Voda:
Dálkový rozvod
Vybaveno:
Ano
Výtah:
Ano
Energetická náročnost budovy:
D
Měrná vypočtená roční spotřeba energie v kWh/m²/rok:
167