Translate with 
MENU ZAVŘÍT

Prodej domu 318 m², Břeclav (ID 077-NP07033)

ulice Sovadinova, Břeclav mapa

9 900 000 Kč ( za nemovitost)
GMimořádně
nehospodárná

5+
318 m2
223 m2
2
Exkluzivně

Prodej domu, ul. Sovadinova, Břeclav

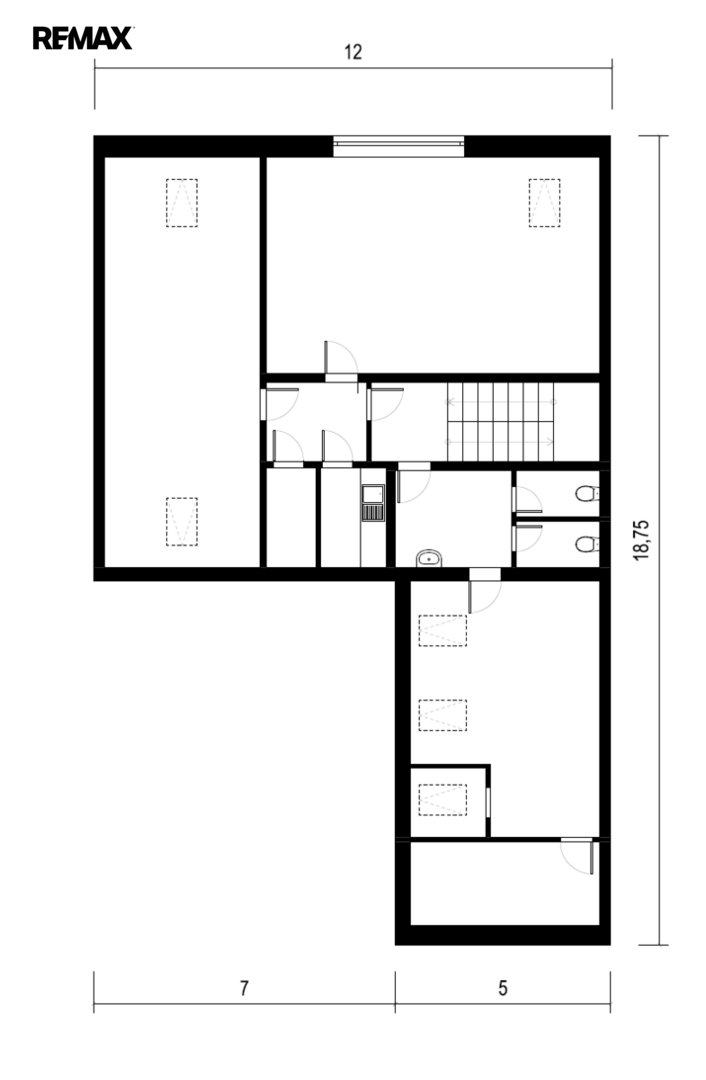
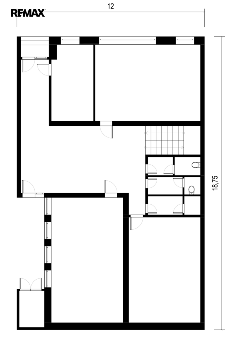
Nabízíme k prodeji řadový dům na ulici Sovadinova v Břeclavi. Stavba je nepodsklepená, má jedno nadzemní podlaží a využité podkroví, a nachází se na pozemku o výměře 223 m².

Dům byl postaven v roce 1997, je napojen na všechny inženýrské sítě a je průběžně dobře udržován. V bezprostřední blízkosti (cca 30 m) se nachází dvě velká parkoviště na městských pozemcích.

Objekt aktuálně slouží jako zázemí autoškoly, podkroví je využíváno jako nebytové prostory k pronájmu (služby, kanceláře). Díky výborné viditelnosti a poloze nabízí široké možnosti využití – sídlo firmy s administrativou, drobnou výrobou, investiční pronájem nebo přestavbu na 4 bytové jednotky dle připravené studie:

- 1. NP: byt 2+kk (45 m²)
- 1. NP: byt 3+kk (85 m²) s terasou
- 2. NP: byt 3+kk (85 m²)
- 2. NP: byt 2+kk (45 m²) s terasou

Nemovitost představuje zajímavou příležitost pro podnikání, investici i kombinaci bydlení s komerčním využitím.

Pro více informací nebo sjednání prohlídky nás neváhejte kontaktovat. Rádi Vám dům osobně představíme.
Prodávající si vyhrazuje právo vybrat kupujícího na základě jím zvolených kritérií.
Cena:
9 900 000 CZK / za nemovitost
Poznámka k ceně:
cena je konečná – včetně provize realitní kanceláři, právního a poprodejního servisu
RX finance

Spočítejte si splátku hypotéky

Na kolik vás vyjde pořízení vlastního bydlení? Zadejte pár informací do naší hypoteční kalkulačky a hned si prohlédněte výsledek.

Kupní cena nemovitosti

9 900 000 Kč

Výše hypotéky

Doba splácení

Vypočítaná měsíční splátka

Úroková sazba 3.6%

260 990 Kč

Hypotéku zařídíme za vás

Ušetřete svůj čas i nervy. Naši makléři zařídí veškeré papírování a dovedou vás až k úspěšnému podpisu smlouvy v bance.

Nechte nám kontakt, náš makléř se v pracovní dny ozve do 24 hodin

* – toto pole je nutné vyplnit
Ing. Michal Stehlík
REMAX Pro
Blatného 3
Brno, 61600
Česká republika
Tel. na makléře: +420 733 679 940
Tel. do kanceláře: +420 732 299 929
E-mail: michal.stehlik@re-max.cz

Potřebujete poradit/máte zájem o prohlídku?

* – toto pole je nutné vyplnit

Podrobné informace

Číslo zakázky:
ID 077-NP07033
Poloha objektu:
Řadový
Počet podlaží v objektu:
2
Užitná plocha:
318 m²
Plocha parcely:
223 m²
Druh objektu:
Cihlová
Stav objektu:
Velmi dobrý
Typ nemovitosti:
Domy a vily
Charakter okolní zástavby:
Obchodní a obytná
K nastěhování:
23. 4. 2026
Doprava:
Vlak, Dálnice, Silnice, MHD, Autobus
Elektřina:
230 V
Odpad:
Kanalizace
Plocha zahrady:
8 m²
Zastavěná plocha:
212 m²
Plyn:
Plynovod
Telekomunikace:
Internet
Typ domu:
Patrový
Umístění objektu:
Rušná část obce
Voda:
Dálkový rozvod
Vybaveno:
Ano
Energetická náročnost budovy:
G