Translate with 
MENU ZAVŘÍT

Pronájem kancelářských prostor 52 m², Praha 1 - Nové Město (ID 228-NP02459)

ulice Washingtonova, Praha 1 – Nové Město mapa

250 Kč (vč. DPH, m²/měsíc)
GMimořádně
nehospodárná

52 m2
Exkluzivně

Exkluzivní nabídku dlouhodobého pronájmu kanceláří

Exkluzivně Vám nabízím dlouhodobý pronájem dvou kanceláří se zázemím v 7.NP domu na frekventované ulici Washingtonova jen pár kroků od Václavského náměstí.
Z oken kanceláří je nádherný výhled na pražské střechy až po Pražský hrad.
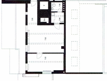
Prostory o celkové výměře 51,4 m2 zaujímají polovinu 7.NP .
Vnitřní uspořádání : zádveří, které přechází v kancelář o výměře 30 m2 , za touto kanceláří je další kancelář 15,6 m2. Součástí prostoru je i kuchyňka a koupelna s WC.
Prostory mají snížený strop.
Budova je zděná, má výtah a nájemcům je k dispozici recepce.
Vstupní prostory do budovy působí velmi reprezentativně.

Těsně před vstupem do domu je placený parkovací pruh, nad ním je prostorné placené parkoviště, minutu od domu je vstup do metra - stanice Muzeum.
Prostory jsou určené pouze pro dlouhodobý pronájem a budou připravené k nastěhování od 1.7. 2026.
V případě zájmu pro Vás zajistím prohlídku předmětných prostor.
Pronajímající si vyhrazuje právo vybrat nájemce na základě jím zvolených kritérií.
Cena:
250 CZK / m2/měsíc
Poznámka k ceně:
Zálohy na služby ve výši 5.000,- Kč. Bezpečnostní jistota ve výši 15.000,- Kč.
Ing. Jana Veselá
REMAX Ace
Jabloňová 2136/11
Praha 10 - Záběhlice, 10600
Česká republika
Tel. na makléře: +420 602 202 452
Tel. do kanceláře: +420 602 202 452
E-mail: jana.vesela@re-max.cz

Potřebujete poradit/máte zájem o prohlídku?

* – toto pole je nutné vyplnit

Podrobné informace

Číslo zakázky:
ID 228-NP02459
Typ nemovitosti:
Komerční prostory
Druh prostor:
Kanceláře
Číslo podlaží:
7
Počet podlaží v objektu:
7
Plocha kanceláří:
52 m²
Druh objektu:
Kamenná
Stav objektu:
Po rekonstrukci
Charakter okolní zástavby:
Obchodní
K nastěhování:
1. 7. 2026
Doprava:
Vlak, Dálnice, Silnice, MHD
Odpad:
Kanalizace
Zastavěná plocha:
52 m²
Počet kanceláří:
2
Telekomunikace:
Internet
Typ domu:
Patrový
Umístění objektu:
Centrum obce
Voda:
Dálkový rozvod
Výtah:
Ano
Energetická náročnost budovy:
G