Translate with 
MENU ZAVŘÍT

Pronájem bytu 1+kk v osobním vlastnictví 33 m², Praha 9 - Vysočany (ID 205-NP12822)

ulice Pod Harfou, Praha 9 – Vysočany mapa

16 000 Kč ( za měsíc)
BVelmi
úsporná

kk
1x
46 m2
4/8
Exkluzivně

Pronájem bytu 1+kk v osobním vlastnictví 33 m², Praha 9 - Vysočany

V rezidenčním projektu Harfa Living nabízím k pronájmu útulný byt o dispozici 1+kk s balkonem a vlastním garážovým stáním.
Byt se nachází ve 4. nadzemním podlaží moderní novostavby s výtahem, která splňuje všechny současné standardy komfortního a úsporného bydlení.
Projekt je navržen s prvky eko‑smart řešení a obklopen dostatkem zeleně, což vytváří příjemné a klidné prostředí pro život.

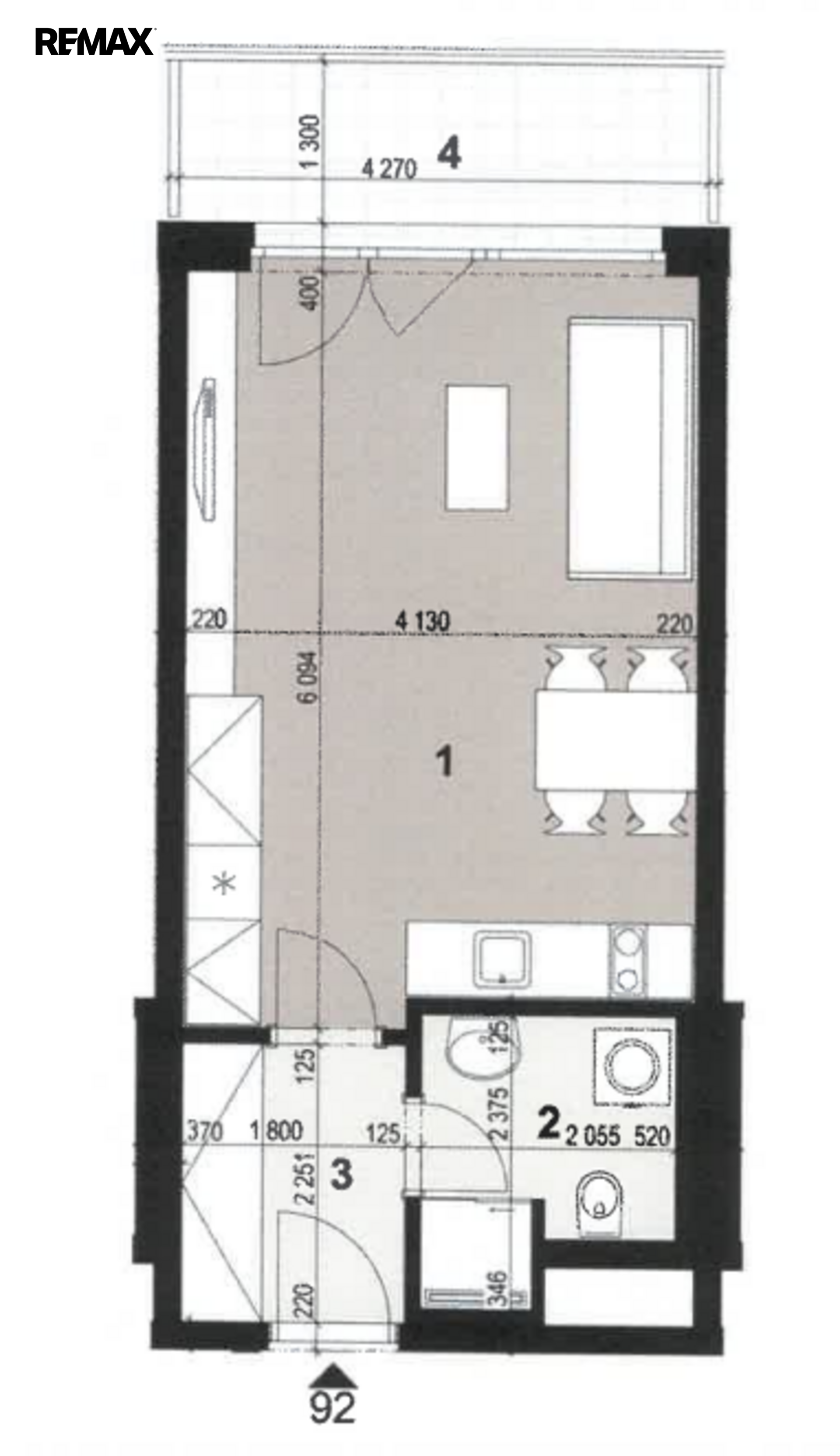
Užitná plocha bytu: 32,8 m²
Podlahová plocha bytu: 35 m²

- Obývací pokoj s kuchyňským koutem: 24,7 m²
- Koupelna s WC: 4 m²
- Předsíň: 4,1 m²
- Balkon: 6,2 m²
- Sklepní kóje: 5,1 m²
- Součástí nájmu je také vlastní garážové stání.

Kuchyňský kout je vybaven kvalitními vestavěnými spotřebiči značky Electrolux:
indukční varná deska, digestoř, horkovzdušná trouba, mikrovlnná trouba a myčka nádobí.
Na vyžádání lze byt dovybavit lednicí a pračkou.

Obývací pokoj i předsíň jsou vybaveny měkkým kobercem, který interiéru dodává elegantní vzhled a pocit pohodlí.
Západně orientovaná okna s trojskly a předokenními žaluziemi zajišťují příjemné odpolední světlo i možnost regulace tepla.
V předsíni se nachází vestavěná šatní skříň, která poskytuje dostatek úložného prostoru pro dvě osoby.

PENB – B (Velmi úsporná)
Lokalita vyniká skvělou dopravní dostupností a širokou občanskou vybaveností v bezprostředním okolí.

Nájemné: 16.000,- Kč/měs.
Zálohy na služby: 3.000,- Kč/měs.
Elektřina se převádí na nájemce.
Provize: 1x měs. nájemné + DPH v zákonné výši

Zaujala vás tato nabídka? Neváhejte mě kontaktovat, nemovitost vám rád osobně představím.
Pronajímající si vyhrazuje právo vybrat nájemce na základě jím zvolených kritérií.
Cena:
16 000 CZK / za měsíc
Poznámka k ceně:
včetně převodu energií a pojištění domácnosti
Mgr. Jakub Olach
REMAX Alfa
Spálená 97/29
Praha 1 - Nové Město, 11000
Česká republika
Tel. na makléře: +420 776 307 562
Tel. do kanceláře: +420 296 240 400
E-mail: jakub.olach@re-max.cz

Potřebujete poradit/máte zájem o prohlídku?

* – toto pole je nutné vyplnit

Podrobné informace

Číslo zakázky:
ID 205-NP12822
Dispozice:
1+kk
Číslo podlaží:
4
Počet podlaží v objektu:
8
Užitná plocha:
33 m²
Druh objektu:
Cihlová
Stav objektu:
Velmi dobrý
Vlastnictví:
Osobní
Typ nemovitosti:
Byty
Bezbariérový byt:
Ano
Charakter okolní zástavby:
Obytná
K nastěhování:
27. 4. 2026
Doprava:
Vlak, Dálnice, Silnice, MHD, Autobus
Elektřina:
400 V
Garáž:
Ano
Odpad:
Kanalizace
Podlahová plocha:
46 m²
Zastavěná plocha:
35 m²
Počet podlaží pod zemí:
4
Umístění objektu:
Rušná část obce
Voda:
Dálkový rozvod
Vybaveno:
Ano
Výtah:
Ano
Energetická náročnost budovy:
B