Translate with 
MENU ZAVŘÍT

Prodej bytu 2+1 v osobním vlastnictví 53 m², Praha 9 - Hloubětín (ID 205-NP12850)

ulice Sadská, Praha 9 – Hloubětín mapa

6 390 000 Kč ( za nemovitost)
GMimořádně
nehospodárná

1x
2x
56 m2
4/4
Exkluzivně

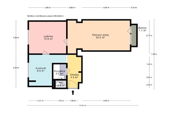
Byt 2+1 51 m² s balkonem

Nabízím k prodeji byt v osobním vlastnictví o dispozici 2+1 a podlahové ploše 51 m², situovaný ve 4. patře ze 4. K bytu náleží balkon o výměře 2 m² a sklep o výměře 2 m².

Po vstupu do bytu se po levé straně nachází toaleta a koupelna. Dále se v bytě nachází samostatná kuchyň a dva neprůchozí pokoje. Z obývacího pokoje je vstup na balkon.

Byt je před kompletní rekonstrukcí. Obývací pokoj s balkonem je orientovaný na jih. Kuchyně a ložnice jsou orientované na sever. Okna jsou plastová. Dům je zateplený. Energetická náročnost budovy je třídy C – úsporná.

Plyn na vaření: 350 Kč měsíčně
Elektřina: 1 000 Kč měsíčně
Poplatky do SVJ včetně fondu oprav: 5 500 Kč měsíčně
Z toho fond oprav: 1 710 Kč měsíčně
Celkové měsíční náklady: 6 850 Kč měsíčně

Prohlídky budou dne: pondělí 11. 5. od 14:00 do 16:00.

Pokud máte zájem o prohlídku, prosím vyplňte formulář pod inzerátem a budeme vás kontaktovat s možnými termíny.

V případě většího zájmu bude nemovitost prodána nejlepší nabídce.
Prodávající si vyhrazuje právo vybrat kupujícího na základě jím zvolených kritérií.
Cena:
6 390 000 CZK / za nemovitost
Poznámka k ceně:
vč. provize a právního servisu
RX finance

Spočítejte si splátku hypotéky

Na kolik vás vyjde pořízení vlastního bydlení? Zadejte pár informací do naší hypoteční kalkulačky a hned si prohlédněte výsledek.

Kupní cena nemovitosti

6 390 000 Kč

Výše hypotéky

Doba splácení

Vypočítaná měsíční splátka

Úroková sazba 3.6%

260 990 Kč

Hypotéku zařídíme za vás

Ušetřete svůj čas i nervy. Naši makléři zařídí veškeré papírování a dovedou vás až k úspěšnému podpisu smlouvy v bance.

Nechte nám kontakt, náš makléř se v pracovní dny ozve do 24 hodin

* – toto pole je nutné vyplnit
Nejbližší termín prohlídky:

11. 5. 2026, 14:00–16:00 hod.


REMAX Alfa
Detail

Jan Pohořelický
REMAX Alfa
Spálená 97/29
Praha 1 - Nové Město, 11000
Česká republika
Tel. na makléře: +420 277 277 001
Tel. do kanceláře: +420 296 240 400
E-mail: jan.pohorelicky@re-max.cz

Potřebujete poradit/máte zájem o prohlídku?

* – toto pole je nutné vyplnit

Podrobné informace

Číslo zakázky:
ID 205-NP12850
Dispozice:
2+1
Číslo podlaží:
4
Počet podlaží v objektu:
4
Užitná plocha:
53 m²
Druh objektu:
Cihlová
Stav objektu:
Před rekonstrukcí
Vlastnictví:
Osobní
Typ nemovitosti:
Byty
K nastěhování:
11. 5. 2026
Doprava:
Vlak, Dálnice, Silnice, MHD, Autobus
Elektřina:
230 V
Odpad:
Kanalizace
Ostatní rozvody:
Kabelové rozvody
Podlahová plocha:
56 m²
Zastavěná plocha:
591 m²
Plyn:
Plynovod
Počet podlaží pod zemí:
1
Telekomunikace:
Internet
Umístění objektu:
Klidná část obce
Voda:
Dálkový rozvod
Vybaveno:
Ano
Energetická náročnost budovy:
G