Translate with 
MENU ZAVŘÍT

Prodej bytu 3+1 v osobním vlastnictví 192 m², Otvovice (ID 253-NP02252)

Otvovice, okres Kladno mapa

7 600 000 Kč ( za nemovitost)
GMimořádně
nehospodárná

1x
3x
192 m2
2/3
Exkluzivně

Prodej bytu 3+1+ateliér (147 m2), kůlna/garáž (40m2), park. stání ve dvoře a zahrada 82 m2, Otvovice

V exkluzivním zastoupení majitele nemovitosti Vám nabízíme prodej bytové jednotky v osobním vlastnictví, včetně užívání zahrady u domu, 1 parkovacího stání v uzavřeném dvoře, kůlny /garáž a užívání sklepní kóje v rodinném domě Otvovice, okr. Kladno. Otvovice nabízí klidné bydlení s výbornou dostupností do hl. města, bohatou infrastrukturou a možnostmi aktivního odpočinku v přírodě i sportovních areálech. V obci se nachází obecní úřad, MŠ, ZŠ, ordinace praktického lékaře, pošta, obchody se smíšeným zbožím, restaurace, obecní knihovna a kulturní sál, který nabízí společenský život. Otvovice mají velmi dobrou dopravní dostupnost do Prahy a okolí díky vlakovému spojení Masarykovo n.-Kralupy n/Vlt-Kladno (pravidelné intervaly) a bus lince č. 856 Kralupy-Tursko-Zákolany a lince č. 316 Tursko-Praha Bořislavka. Autem je Praha dostupná do 30 minut (cca 21 km). V obci naleznete také moderní sportovní areál s koupalištěm, multifunkčním a fotbalovým hřištěm. Areál nabízí možnost koupání a sportovních aktivit pro děti i dospělé. V okolí se nachází dětské i venkovní hřiště, tipy na výlety do přírody včetně blízkosti lesů, cyklostezky a atraktivní turistické trasy.

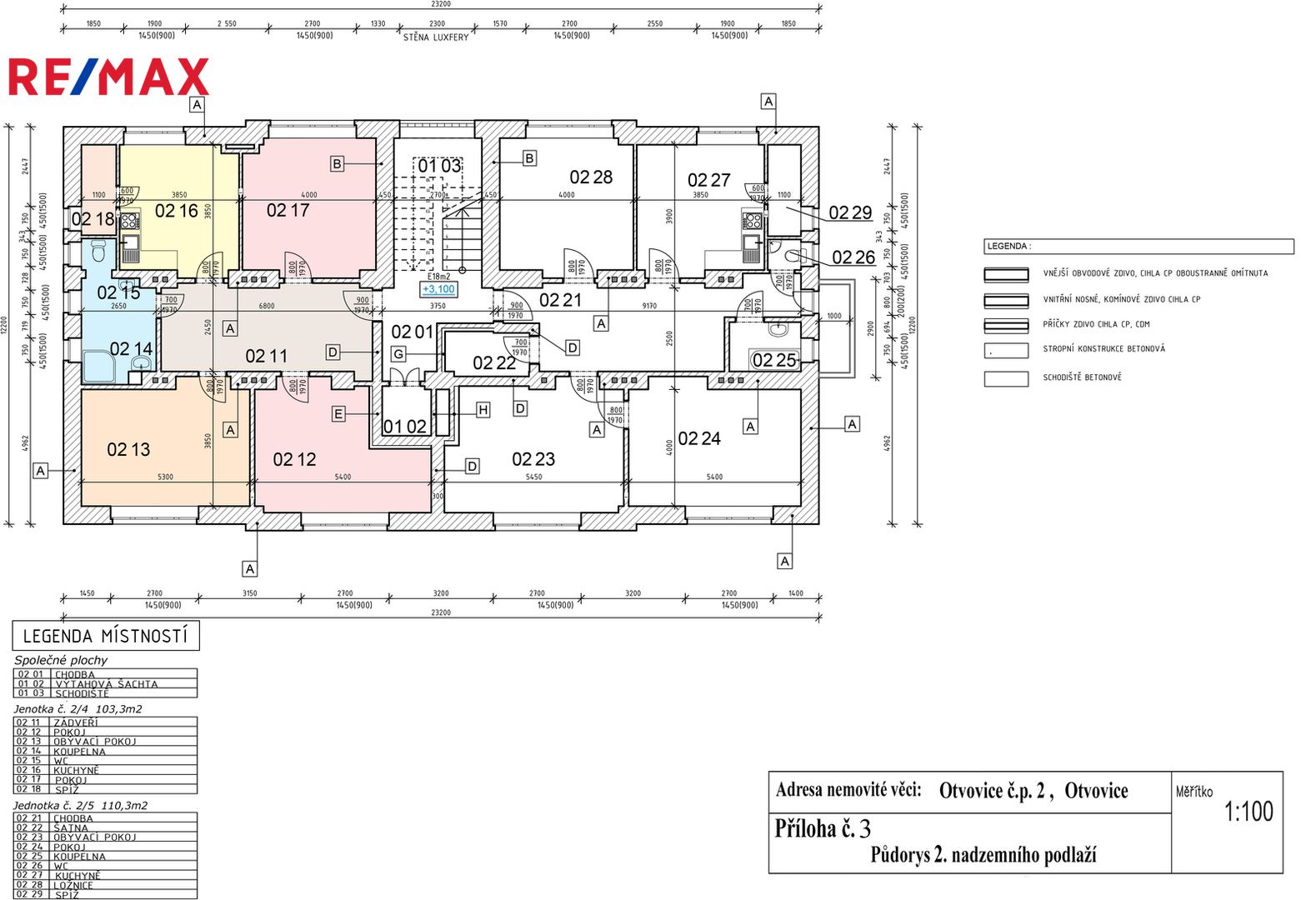
Bytová jednotka v 2. nadzemním podlaží, o dispozici 3+1 (103,3 m2) Vám nabízí velmi prostornou vstupní chodbu s možností úložných prostor, dvě samostatné neprůchozí ložnice, velmi prostorný obývací pokoj, kuchyň s jídelnou a samostatnou komorou na potraviny (špíz)a velkou koupelnu s vanou a toaletou. V bytě jsou nová plastová okna + nové vstupní dveře. Byt prošel úpravou 2019/2020: sádrokartonové stropy v celém bytě, nové osvětlení, oprava omítek, nové plov. podlahy + olištování a kuchyňská linka včetně spotřebičů (sklokeramická varná deska, digestoř, elektrická trouba a mikrovlnná trouba) a nové interiérové dveře. Topení a ohřev vodu zajištěno novým plynovým kondenzačním kotlem. Kotel se nachází v koupelně bytu, s pravidelnou údržbou /servisní kontrolou. Byt je velmi světlý a slunný.

Součástí prodeje bytové jednotky č. 2/4 je:
1) výlučné užívání ateliéru o výměře 43,5 m2 (ateliér č. 0311, soc. zařízení č. 0312 a komora č. 0313) umístěný v 3. nadzemním podlaží = ateliér se nachází přímo nad prodávaným bytem, možnost rekonstrukce prostor pro vlastní bytové či podnikatelské potřeby nebo následný pronájem
2) výlučné užívání kůlny č. 5 o výměře 40,4 m2 (možnost parkování dvou aut)
3) výlučné užívání parkovacího stání č. 5 o výměře 11 m2
4) výlučné užívání zahrady č. Z1 o výměře 82 m2
5) společné užívání komory č. P103 o výměře 10 m2 umístěné v 1. podzemním podlaží

Aktuální měsíční náklady na bydlení:
- záloha na služby 450,- Kč/ 1 osoba (70,- Kč elektřina spol. prostor, vodné 200,- Kč, jímka 180,- Kč), 900,- Kč/ 2 os., 1.350,- Kč/ 3 os., 1.800,- Kč/ 4 os.
- záloha elektřina bytu dle vlastní spotřeby
- záloha plyn (topení a ohřev vody) dle vlastní spotřeby, doporučená záloha pro rodinu cca ve výši 3.500,- Kč

Pro více informací a sjednání termínu prohlídky neváhejte kontaktovat makléřku nemovitosti.
Cena:
7 600 000 CZK / za nemovitost
Poznámka k ceně:
Upozornění:
Prodávající si vyhrazuje právo vybrat kupujícího na základě jím zvolených kritérií.
RX finance

Spočítejte si splátku hypotéky

Na kolik vás vyjde pořízení vlastního bydlení? Zadejte pár informací do naší hypoteční kalkulačky a hned si prohlédněte výsledek.

Kupní cena nemovitosti

7 600 000 Kč

Výše hypotéky

Doba splácení

Vypočítaná měsíční splátka

Úroková sazba 3.6%

260 990 Kč

Hypotéku zařídíme za vás

Ušetřete svůj čas i nervy. Naši makléři zařídí veškeré papírování a dovedou vás až k úspěšnému podpisu smlouvy v bance.

Nechte nám kontakt, náš makléř se v pracovní dny ozve do 24 hodin

* – toto pole je nutné vyplnit
Ing. Mgr. Veronika Černá
RE/MAX Ambassador
Cíglerova/metro Rajská zahrada
Praha 9 - Černý Most, 19800
Česká republika
Tel. na makléře: +420 603 841 020
Tel. do kanceláře: +420 603 295 748
E-mail: veronika.cerna@re-max.cz

Potřebujete poradit/máte zájem o prohlídku?

* – toto pole je nutné vyplnit

Podrobné informace

Číslo zakázky:
ID 253-NP02252
Dispozice:
3+1
Číslo podlaží:
2
Počet podlaží v objektu:
3
Podlahová plocha:
192 m²
Druh objektu:
Cihlová
Stav objektu:
Dobrý
Vlastnictví:
Osobní
Typ nemovitosti:
Byty
Charakter okolní zástavby:
Obytná
K nastěhování:
1. 12. 2025
Doprava:
Vlak, Silnice, Autobus
Garáž:
Ano
Občanská vybavenost:
Škola, Školka, Zdravotnická zařízení, Pošta, Supermarket
Užitná plocha:
192 m²
Plocha zahrady:
82 m²
Plyn:
Plynovod
Počet parkovacích míst:
1
Umístění objektu:
Centrum obce
Voda:
Zdroj pro celý objekt, Dálkový rozvod
Energetická náročnost budovy:
G