Translate with 
MENU ZAVŘÍT

Prodej bytu 3+1 v osobním vlastnictví 60 m², Praha 4 - Modřany (ID 218-NP06713)

ulice U zastávky, Praha 4 – Modřany mapa

6 600 000 Kč ( za nemovitost)
CÚsporná

1x
3x
60 m2
6/10
Exkluzivně Rezervace

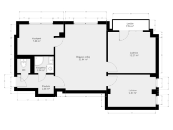
Prodej bytu 3+1, 57 m2 + balkon, OV, panel, k rekonstrukci, U zastávky Praha - Modřany.

***PROHLÍDKY POZASTAVENY Z DŮVODU JEDNÁNÍ O REZERVACI***
Exkluzivně nabízíme k prodeji byt 3+1 v osobním vlastnictví o celkové podlahové ploše 60 m2 (57 m2 byt a 2,8 m2 balkon) na adrese U zastávky 1535/1, 143 00 Praha 12 - Modřany. Byt je v původním, udržovaném stavu a je určen ke kompletní rekonstrukci. Nachází se v šestém nadzemním podlaží (5 patro) deseti podlažního panelového domu z roku 1970. Nemovitost je ideální pro příjemné bydlení nebo jako investice k dlouhodobému pronájmu.

Lokalita nabízí ideální kombinaci přírody, jako jsou cyklostezky podél řeky a nedaleké parky, s rychlým přístupem do centra Prahy – autem za 10–15 minut, tramvají za přibližně 25 minut až na Václavské náměstí nebo Karlovo náměstí.
Výhody:
Klidné prostředí vhodné pro rodiny.
Nízká hlučnost oproti centru.
Rostoucí potenciál investic díky novým projektům.
Adresa U zastávky 1535/1 leží přímo u zastávky MHD, což zajišťuje okamžitou dostupnost veřejné dopravy.

Vynikajicí občanská vybavenost v docházkové vzdálenosti. Najdete zde mateřské a základní školy, zdravotní střediska, lékárny, supermarkety (Albert, KIK přes ulici), menší obchody, restaurace, kavárny, poštu, kino i lékařské ordinace – vše potřebné pro pohodlný každodenní život.

Popis bytu a SVJ:
Byt je v původním, udržovaném stavu s možností okamžitého bydlení. Je vybavený plastovými okny a balkonem orientovanými na východ což zajišťuje příjemné osvětlení, klid a příjemný výhled. Byt je nabízen ve stavu k rekonstrukci (původní elektřina, kuchyňská linka, koupelna je po rekonstrukci). Topení dálkové včetně ohřevu teplé vody. Měsíční poplatky za služby činí 4 120 Kč (z toho 1103 Kč do FO) + elektřina a plyn dle individuální spotřeby. Společenství vlastníků jednotek (SVJ) funguje bez úvěrů a opravy jsou hrazeny z naspořených prostředků fondu oprav.

Nemovitost lze financovat hypotečním úvěrem, se kterým vám rádi pomohou naši hypoteční specialisté.

První prohlídky proběhnou v neděli 26.10.2025 od 18:00 h do 19:00 h formou otevřených dveří. Zájem o prohlídku si prosím domluvte s makléřem e-mailem.
Cena:
6 600 000 CZK / Rezervováno
Poznámka k ceně:
Včetně provize RK a kompletních právních služeb a poplatků.
Upozornění:
Prodávající si vyhrazuje právo vybrat kupujícího na základě jím zvolených kritérií.
RX finance

Spočítejte si splátku hypotéky

Na kolik vás vyjde pořízení vlastního bydlení? Zadejte pár informací do naší hypoteční kalkulačky a hned si prohlédněte výsledek.

Kupní cena nemovitosti

6 600 000 Kč

Výše hypotéky

Doba splácení

Vypočítaná měsíční splátka

Úroková sazba 3.6%

260 990 Kč

Hypotéku zařídíme za vás

Ušetřete svůj čas i nervy. Naši makléři zařídí veškeré papírování a dovedou vás až k úspěšnému podpisu smlouvy v bance.

Nechte nám kontakt, náš makléř se v pracovní dny ozve do 24 hodin

* – toto pole je nutné vyplnit
Lubomír Polášek
RE/MAX Anděl
Ostrovského 253/3
Praha 5 - Smíchov, 15000
Česká republika
Tel. na makléře: +420 725 293 031
Tel. do kanceláře: +420 725 293 030
E-mail: lubomir.polasek@re-max.cz

Potřebujete poradit/máte zájem o prohlídku?

* – toto pole je nutné vyplnit

Podrobné informace

Číslo zakázky:
ID 218-NP06713
Dispozice:
3+1
Číslo podlaží:
6
Počet podlaží v objektu:
10
Podlahová plocha:
60 m²
Druh objektu:
Panelová
Stav objektu:
Před rekonstrukcí
Vlastnictví:
Osobní
Typ nemovitosti:
Byty
Charakter okolní zástavby:
Obytná
K nastěhování:
1. 11. 2025
Doprava:
Vlak, Dálnice, Silnice, MHD, Autobus
Elektřina:
230 V
Odpad:
Kanalizace
Užitná plocha:
57 m²
Zastavěná plocha:
317 m²
Plyn:
Plynovod
Telekomunikace:
Internet
Umístění objektu:
Klidná část obce
Voda:
Dálkový rozvod
Vybaveno:
Ano
Výtah:
Ano
Energetická náročnost budovy:
C
Měrná vypočtená roční spotřeba energie v kWh/m²/rok:
108