Translate with 
MENU ZAVŘÍT

Pronájem bytu 4+1 v družstevním vlastnictví 94 m², Brno (ID 268-NP03510)

ulice Stará osada, Brno – městská část Brno-Židenice mapa

22 000 Kč ( za měsíc)
CÚsporná

1x
4x
94 m2
2/12
Exkluzivně

Pronájem bytu 4+1, Stará Osada - Brno

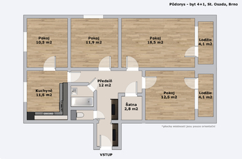
Nabízíme k pronájmu pěkný, světlý, prostorný byt o dispozici 4+1 po zdařilé kompletní rekonstrukci, nacházející se v žádané lokalitě Brno – Stará Osada s výbornou dostupností do centra a veškerou občanskou vybaveností v bezprostředním okolí. Byt má praktické dispoziční řešení, všechny pokoje jsou samostatné a neprůchozí, což zajišťuje dostatek soukromí i komfortu pro rodinu či spolubydlení.

Součástí bytu je prostorné zádveří s předsíňovou skříní, které navazuje na chodbu se samostatnou šatní skříní. Byt nabízí dostatek úložného prostoru i v podobě samostatné šatny (2,8 m²).

Kuchyň je vybavena kuchyňskou linkou na míru s plynovou varnou deskou a vestavěnou elektrickou troubou, digestoří, lednicí s mrazákem a pračkou. Koupelna disponuje vanou, umyvadlovou skříňkou a zrcadlem, toaleta je samostatná. Ze dvou pokojů je přímý vstup na lodžie o celkové výměře 8,2 m². K bytu náleží menší zděná sklepní kóje.

Byt nabízí moderní a komfortní bydlení, které je vhodné pro dlouhodobý pronájem.

Měsíční nájemné 22.000 Kč + zálohy na služby a energie (celkem 8.174 Kč/měsíc). Vratná kauce 40.000 Kč.

Pro více informací či domluvení prohlídky neváhejte kontaktovat makléřku nabídky.
Cena:
22 000 CZK / za měsíc
Poznámka k ceně:
+ služby a energie, provize RK
Upozornění:
Pronajímající si vyhrazuje právo vybrat nájemce na základě jím zvolených kritérií.
Veronika Zbořilová
RE/MAX Delux
Křenová 538/22
Brno, 60200
Česká republika
Tel. na makléře: +420 775 674 320
Tel. do kanceláře: +420 602 703 897
E-mail: veronika.zborilova@re-max.cz

Potřebujete poradit/máte zájem o prohlídku?

* – toto pole je nutné vyplnit

Podrobné informace

Číslo zakázky:
ID 268-NP03510
Dispozice:
4+1
Číslo podlaží:
2
Počet podlaží v objektu:
12
Podlahová plocha:
94 m²
Druh objektu:
Panelová
Stav objektu:
Velmi dobrý
Vlastnictví:
Družstevní
Typ nemovitosti:
Byty
K nastěhování:
24. 2. 2026
Odpad:
Kanalizace
Užitná plocha:
85 m²
Plyn:
Plynovod
Umístění objektu:
Centrum obce
Výtah:
Ano
Energetická náročnost budovy:
C