Translate with 
MENU ZAVŘÍT

Prodej bytu 6 a více v osobním vlastnictví 240 m², Praha 9 - Újezd nad Lesy (ID 114-NP10589)

ulice Okenská, Praha 9 – Újezd nad Lesy mapa

Cena na vyžádání v kanceláři
GMimořádně
nehospodárná

1x
6x
240 m2
2/2
Exkluzivně

Prodej rodinného domu 178 m2 Okenská Praha 9 - Újezd nad Lesy

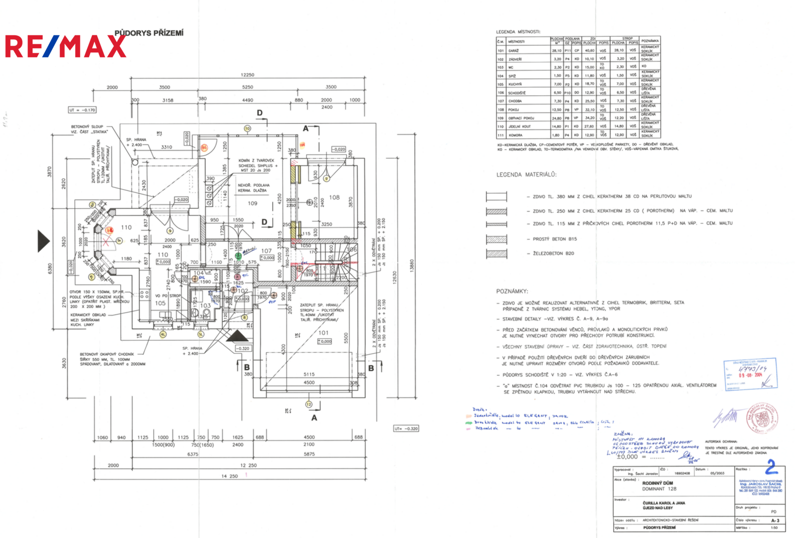
Exkluzivně nabízíme cihlový dům 5+1, s garáží ve velice klidné lokalitě rezidenční části Prahy 9 - Újezd nad Lesy, v ulici Okenská.
Dvoupodlažní samostatně stojící dům ve výborném stavu (o užitné ploše 206 m2) byl kolaudován v roce 2005. Poskytuje dostatek prostoru i pro početnější rodinu. Jsou zde dvě koupelny a tři toalety.
Ze vstupní chodby se vchází do garáže a prostorné místnosti, kde je samostatná toaleta s přípravou pro pračku a sušičku.
V přízemí se nachází světlá kuchyně s prostornou jídelnou, ze které se vstupuje na terasu. U kuchyně je také spíž, dále je zde technická místnost a v chodbě jsou vestavěné skříně.
Obývací pokoj s krbem je velmi prostorný a orientovaný do zahrady.
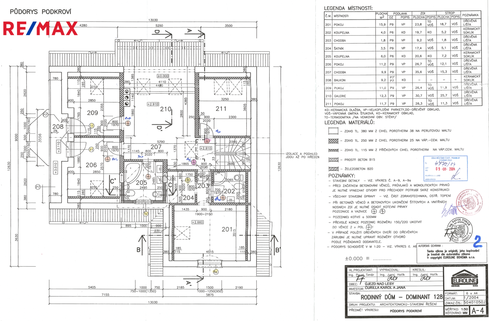
V patře jsou 3 samostatné ložnice, dvě koupelny, galerie a schodiště.
Bonusem tohoto domu je samostatný pokoj s koupelnou a šatnou, který může sloužit pro prarodiče nebo pro návštěvy, je umístěn ve 2. NP.
Celý dům má venkovní žaluzie, v patře jsou také vnitřní žaluzie, je napojen na kanalizaci a vodovodní řád, vytápění a ohřev vody je zajištěn plynovým kotlem a bojlerem, přičemž v celém domě jsou instalována topná tělesa ve formě radiátorů, v kuchyni a v koupelnách je podlahové topení.
Na pozemku před garáží je možné parkovat druhý automobil a také na dvou parkovacích místech na ulici před domem.
Dopravní dostupnost je vynikající, dům je snadno dostupný jak vlakem (do Běchovic nebo Klánovic - Praha 9), nebo prostřednictvím MHD.
Je zde veškerá občanská vybavenost - školy, školky, lékaři, obchody, kavárny, restaurace, služby.
Atraktivní rezidenční lokalita je ideální volbou pro rodiny s dětmi, které mají vše ve výborné dostupnosti, vyhledávají klid a přírodu ale preferují veškerou možnou občanskou vybavenost.
Energetický štítek bude dodán.
Dům je možné financovat hypotečním úvěrem se kterým Vám zdarma rádi pomůžeme.
V případě zájmu o prohlídku volejte makléři nabídky.
Cena:
Cena na vyžádání v kanceláři
Poznámka k ceně:
Upozornění:
Prodávající si vyhrazuje právo vybrat kupujícího na základě jím zvolených kritérií.
Dagmar Beránková
RE/MAX Horizont
Třebešovská 2869/94
Praha 9 - Horní Počernice, 19300
Česká republika
Tel. na makléře: +420 605 238 988
Tel. do kanceláře: +420 733 149 056
E-mail: dagmar.berankova@re-max.cz

Potřebujete poradit/máte zájem o prohlídku?

* – toto pole je nutné vyplnit

Podrobné informace

Číslo zakázky:
ID 114-NP10589
Dispozice:
6 a více
Číslo podlaží:
2
Počet podlaží v objektu:
2
Podlahová plocha:
240 m²
Druh objektu:
Cihlová
Stav objektu:
Velmi dobrý
Vlastnictví:
Osobní
Typ nemovitosti:
Byty
Charakter okolní zástavby:
Obytná
K nastěhování:
9. 3. 2026
Doprava:
Silnice, MHD
Elektřina:
230 V
Garáž:
Ano
Odpad:
Kanalizace
Užitná plocha:
206 m²
Plocha zahrady:
579 m²
Zastavěná plocha:
143 m²
Plyn:
Plynovod
Počet parkovacích míst:
2
Umístění objektu:
Klidná část obce
Voda:
Dálkový rozvod
Energetická náročnost budovy:
G