Translate with 
MENU ZAVŘÍT

Prodej bytu 2+kk v osobním vlastnictví 36 m², Praha 10 - Záběhlice (ID 228-NP02441)

ulice Jabloňová, Praha 10 – Záběhlice mapa

5 560 000 Kč ( za nemovitost)
GMimořádně
nehospodárná

kk
2x
36 m2
14/22
Exkluzivně Rezervace

Byt 2+KK/lodžie s krásným výhledem na Prahu

Prohlídky u tohoto bytu jsou z důvodu velkého zájmu pozastavené, dokud nedoběhne výběrové řízení.
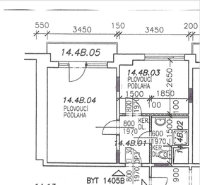
Nabízím byt ve 14. patře domu v Praze 10 - Zahradní Město.
Byt má zádveří, samostatné WC, koupelnu se sprchovým koutem, obývací pokoj s kuchyňským koutem, ložnici a zasklenou lodžii, ze které je krásný výhled na Prahu.

Byt je v osobním vlastnictví, je prázdný a čeká na svého nového majitele.
Koupi bytu lze financovat hypotečním úvěrem, s jehož vyřízením Vám rádi pomůžeme. Prodávající si vyhrazuje právo vybrat kupujícího na základě jím zvolených kritérií.
Cena:
5 560 000 CZK / Rezervováno
Poznámka k ceně:
včetně provize a právního servisu
RX finance

Spočítejte si splátku hypotéky

Na kolik vás vyjde pořízení vlastního bydlení? Zadejte pár informací do naší hypoteční kalkulačky a hned si prohlédněte výsledek.

Kupní cena nemovitosti

5 560 000 Kč

Výše hypotéky

Doba splácení

Vypočítaná měsíční splátka

Úroková sazba 3.6%

260 990 Kč

Hypotéku zařídíme za vás

Ušetřete svůj čas i nervy. Naši makléři zařídí veškeré papírování a dovedou vás až k úspěšnému podpisu smlouvy v bance.

Nechte nám kontakt, náš makléř se v pracovní dny ozve do 24 hodin

* – toto pole je nutné vyplnit
Ing. Jana Veselá
REMAX Ace
Jabloňová 2136/11
Praha 10 - Záběhlice, 10600
Česká republika
Tel. na makléře: +420 602 202 452
Tel. do kanceláře: +420 602 202 452
E-mail: jana.vesela@re-max.cz

Potřebujete poradit/máte zájem o prohlídku?

* – toto pole je nutné vyplnit

Podrobné informace

Číslo zakázky:
ID 228-NP02441
Dispozice:
2+kk
Číslo podlaží:
14
Počet podlaží v objektu:
22
Užitná plocha:
36 m²
Druh objektu:
Panelová
Stav objektu:
Velmi dobrý
Vlastnictví:
Osobní
Typ nemovitosti:
Byty
Charakter okolní zástavby:
Obytná
Doprava:
Silnice, MHD, Autobus
Odpad:
Kanalizace
Podlahová plocha:
36 m²
Zastavěná plocha:
36 m²
Umístění objektu:
Klidná část obce
Voda:
Dálkový rozvod
Vybaveno:
Ano
Výtah:
Ano
Energetická náročnost budovy:
G