Translate with 
MENU ZAVŘÍT

Prodej bytu 2+kk v osobním vlastnictví 52 m², Praha 10 - Vršovice (ID 218-NP07065)

ulice Bělocerkevská, Praha 10 – Vršovice mapa

7 540 000 Kč ( za nemovitost)
BVelmi
úsporná

kk
2x
52 m2
1/8
Exkluzivně Rezervace

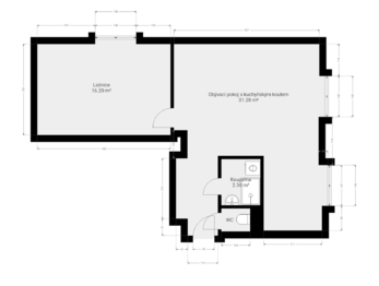
Prodej investičního bytu 2+kk, 50 m² + sklep, Praha 10 – Vršovice

***PROHLÍDKY POZASTAVENY - JEDNÁNÍ O REZERVACI***
Nabízíme byt 2+kk v osobním vlastnictví o ploše 50 m² + sklep 2 m², na adrese Bělocerkevská 1303/30, Praha 10 – Vršovice. Byt je po kompletní rekonstrukci z roku 2017 a nachází se v revitalizovaném domě s dobře fungujícím SVJ.

Byt je aktuálně pronajat prověřenému a bezproblémovému nájemníkovi a nájemní smlouva mu končí na konci října 2026. Nájemník dlouhodobě a spolehlivě hradí nájemné 20 000 Kč/měsíc + energie. Ideální volba pro investora hledajícího okamžitý a stabilní výnos bez starostí.
Nemovitost je vhodná jako investice, nebo také k pohodovému rodinnému bydlení.

Dům a technický stav:
kompletní revitalizace: zateplená fasáda, dřevěná okna, nová střecha
nové domovní rozvody elektřiny
SVJ splácí úvěr na revitalizaci (zbývá cca 14 mil. Kč z původních 20 mil. Kč)
fond oprav pravidelně navyšován o inflaci
žádné další zásadní opravy nejsou aktuálně plánovány

Náklady:
poplatky: 5 451 Kč + fond oprav: 2 951 Kč
elektřina a plyn dle skutečné spotřeby (hrazeno nájemníkem)

Lokalita:
výborná dostupnost do centra – tramvaje a autobusy v docházkové vzdálenosti
smíšené zboží přímo v domě, Tesco Express v bezprostředním okolí
kompletní občanská vybavenost, restaurace, kavárny a služby
dlouhodobě velmi žádaná rezidenční lokalita s vysokou poptávkou po nájmu

Shrnutí:
osobní vlastnictví
stabilní výnos
dům po revitalizaci
výborná investiční lokalita
Prodávající si vyhrazuje právo vybrat kupujícího na základě jím zvolených kritérií.
Cena:
7 540 000 CZK / Rezervováno
RX finance

Spočítejte si splátku hypotéky

Na kolik vás vyjde pořízení vlastního bydlení? Zadejte pár informací do naší hypoteční kalkulačky a hned si prohlédněte výsledek.

Kupní cena nemovitosti

7 540 000 Kč

Výše hypotéky

Doba splácení

Vypočítaná měsíční splátka

Úroková sazba 3.6%

260 990 Kč

Hypotéku zařídíme za vás

Ušetřete svůj čas i nervy. Naši makléři zařídí veškeré papírování a dovedou vás až k úspěšnému podpisu smlouvy v bance.

Nechte nám kontakt, náš makléř se v pracovní dny ozve do 24 hodin

* – toto pole je nutné vyplnit
Lubomír Polášek
REMAX Anděl
Ostrovského 253/3
Praha 5 - Smíchov, 15000
Česká republika
Tel. na makléře: +420 725 293 031
Tel. do kanceláře: +420 725 293 030
E-mail: lubomir.polasek@re-max.cz

Potřebujete poradit/máte zájem o prohlídku?

* – toto pole je nutné vyplnit

Podrobné informace

Číslo zakázky:
ID 218-NP07065
Dispozice:
2+kk
Číslo podlaží:
1
Počet podlaží v objektu:
8
Užitná plocha:
52 m²
Druh objektu:
Smíšená
Stav objektu:
Velmi dobrý
Vlastnictví:
Osobní
Typ nemovitosti:
Byty
Charakter okolní zástavby:
Obytná
Doprava:
Vlak, Dálnice, Silnice, MHD, Autobus
Elektřina:
230 V
Odpad:
Kanalizace
Celková plocha:
52 m²
Zastavěná plocha:
634 m²
Plyn:
Plynovod
Telekomunikace:
Internet
Umístění objektu:
Centrum obce
Voda:
Dálkový rozvod
Vybaveno:
Ano
Výtah:
Ano
Energetická náročnost budovy:
B
Měrná vypočtená roční spotřeba energie v kWh/m²/rok:
95